1. トップページ
  2. 川崎市中原区小杉御殿町2丁目 新築一戸建 12990万円 No.1

川崎市中原区小杉御殿町2丁目 新築一戸建 12990万円 No.1

価格
12,990万円
物件種別
新築一戸建て
間取り
3SLDK
所在地
川崎市中原区 小杉御殿町2丁目
交通
  • 東急東横線「新丸子」駅 徒歩 13 分
  • 東急東横線「武蔵小杉」駅 徒歩 15 分
土地面積
79.49㎡
建物面積
145.93㎡
  • 前回情報更新日 2026.04.09
  • 次回情報更新予定日 2026.04.23
資料請求 現地見学 電話でお問い合わせ
0120-046-690
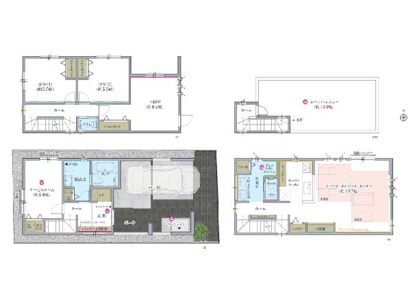
間取り
間取り
大切なご家族が集まるからこそLDKにはこだわりたいですよね!休日はおひさまの光をたっぷりと取りこめるリビングでゆったりと過ごしませんか?
大切なご家族が集まるからこそLDKにはこだわりたいですよね!休日はおひさまの光をたっぷりと取りこめるリビングでゆったりと過ごしませんか?
光が取り込みやすい2面採光の居室。日当たり良好です。しっかりとした大きさのクローゼットを完備し、収納スペースも十分。
光が取り込みやすい2面採光の居室。日当たり良好です。しっかりとした大きさのクローゼットを完備し、収納スペースも十分。
居室空間をすっきり保てる、ウォークインクローゼット付です。広いため、使い慣れた収納家具をこの空間に設置することもできます。鞄や帽子から小物、かさばるスーツケースなど幅広く収納できます。
居室空間をすっきり保てる、ウォークインクローゼット付です。広いため、使い慣れた収納家具をこの空間に設置することもできます。鞄や帽子から小物、かさばるスーツケースなど幅広く収納できます。
外観:毎日のお散歩も快適な緑に恵まれた閑静な住宅地は、伸び伸びスローライフを叶えてくれます。自然豊富な季節の移ろいを身近に感じられる環境で子育てすれば、お子様もきっと素直に成長してくれるはずです!
外観:毎日のお散歩も快適な緑に恵まれた閑静な住宅地は、伸び伸びスローライフを叶えてくれます。自然豊富な季節の移ろいを身近に感じられる環境で子育てすれば、お子様もきっと素直に成長してくれるはずです!
外観:お洗濯物を干すだけのスペースではもったいない多用途にご利用いただける大型ルーフバルコニーです。天気の良い日にはテーブルとイスを並べて外でお食事なども楽しめ、ご家族憩いの場としてもご利用いただけます。
外観:お洗濯物を干すだけのスペースではもったいない多用途にご利用いただける大型ルーフバルコニーです。天気の良い日にはテーブルとイスを並べて外でお食事なども楽しめ、ご家族憩いの場としてもご利用いただけます。
ゆとりの洗面スペースで朝の身支度も快適スムーズに。面鏡で髪のセットやお化粧もストレスなくこなせ、朝から気分良く通勤通学に向かえそうですね!鏡の裏にはたっぷりと収納スペースを標準装備!
ゆとりの洗面スペースで朝の身支度も快適スムーズに。面鏡で髪のセットやお化粧もストレスなくこなせ、朝から気分良く通勤通学に向かえそうですね!鏡の裏にはたっぷりと収納スペースを標準装備!
毎日使うキッチン周りが綺麗で清潔に保たれていると、お料理を作るのも楽しくなりますよね。おしゃれなペンダントライトや飾り棚など、機能性とデザイン性を持たせたキッチンで気持ちよくお料理が出来そうです。
毎日使うキッチン周りが綺麗で清潔に保たれていると、お料理を作るのも楽しくなりますよね。おしゃれなペンダントライトや飾り棚など、機能性とデザイン性を持たせたキッチンで気持ちよくお料理が出来そうです。
鏡の裏に豊富な収納量を確保した、三面鏡タイプの洗面化粧台。化粧品やティッシュボックス、歯ブラシなどを機能的に収納できるスペースを設えました。いつも清潔に保ちたい洗面室の整頓にも役立ちますね。
鏡の裏に豊富な収納量を確保した、三面鏡タイプの洗面化粧台。化粧品やティッシュボックス、歯ブラシなどを機能的に収納できるスペースを設えました。いつも清潔に保ちたい洗面室の整頓にも役立ちますね。
四季を通じて自然と触れ合えるスポットが周辺には盛りだくさん!お散歩やジョギング、週末のご家族での遊びに最適です。目の前に広がる開放感とゆとり、暮らしの夢を育む理想の住まいがここにはあります。
四季を通じて自然と触れ合えるスポットが周辺には盛りだくさん!お散歩やジョギング、週末のご家族での遊びに最適です。目の前に広がる開放感とゆとり、暮らしの夢を育む理想の住まいがここにはあります。
オープンでのびやかな空間を生み出す、こだわりの広がりとゆとり。家族と過ごす時間を大切にしたい方にぴったりの明るくゆとりある住空間です。南側の窓からの日差しがリビングの隅々までしっかりと届きます!
オープンでのびやかな空間を生み出す、こだわりの広がりとゆとり。家族と過ごす時間を大切にしたい方にぴったりの明るくゆとりある住空間です。南側の窓からの日差しがリビングの隅々までしっかりと届きます!
ご家族だんらんのスペースとなるリビング。家具の配置がしやすい広さを確保しつつ、窓が多い設計は色々な角度から光が取り込めるこだわりの間取りです。明るいリビングで寛ぐ新しい生活をスタートさせてみませんか。
ご家族だんらんのスペースとなるリビング。家具の配置がしやすい広さを確保しつつ、窓が多い設計は色々な角度から光が取り込めるこだわりの間取りです。明るいリビングで寛ぐ新しい生活をスタートさせてみませんか。
大容量のウォークインシューズクローゼットが嬉しい住まい。ご家族全員の靴はもちろん、お子様のおもちゃやベビーカー、パパのゴルフバック、カー用品などかさ張る物もスッキリまとめておしまい頂けます
大容量のウォークインシューズクローゼットが嬉しい住まい。ご家族全員の靴はもちろん、お子様のおもちゃやベビーカー、パパのゴルフバック、カー用品などかさ張る物もスッキリまとめておしまい頂けます
家族の一体感を感じられる広々としたスペース。家族と過ごす時間を大切にする方にピッタリのゆとりの住空間です。お子様が元気に走り回っても安心して見守れます。家族の笑い声が今にも目に浮かびそう。
家族の一体感を感じられる広々としたスペース。家族と過ごす時間を大切にする方にピッタリのゆとりの住空間です。お子様が元気に走り回っても安心して見守れます。家族の笑い声が今にも目に浮かびそう。
システムキッチンと一体感あるカラーでまとまった、カップボード付です。新生活に伴い、家具選びの時間と費用の面でもうれしい設備仕様です。
システムキッチンと一体感あるカラーでまとまった、カップボード付です。新生活に伴い、家具選びの時間と費用の面でもうれしい設備仕様です。
スライド収納付きのシステムキッチン。パスタ鍋や圧力鍋、フライパンなどもおしまい頂け、出し入れもスムーズ。収納たっぷりなので料理器具や調味料など細かな物も取りやすく、お子様と一緒にお料理も楽しめます。
スライド収納付きのシステムキッチン。パスタ鍋や圧力鍋、フライパンなどもおしまい頂け、出し入れもスムーズ。収納たっぷりなので料理器具や調味料など細かな物も取りやすく、お子様と一緒にお料理も楽しめます。
全居室には大型の収納クローゼットを完備!普段使いのお洋服や小物はもちろん、季節物のお洋服などもしっかりと整理整頓おしまい頂けます。居室空間をより広く隅々までお使いいただけますね。
全居室には大型の収納クローゼットを完備!普段使いのお洋服や小物はもちろん、季節物のお洋服などもしっかりと整理整頓おしまい頂けます。居室空間をより広く隅々までお使いいただけますね。
ご家族との憩いの場として、一日の疲れを癒す場として、ゆったりと足を伸ばしてくつろげる綺麗で清潔感のある色味の浴室。気持ちの良い光と爽やかな風をたっぷりと取りこめる開閉式の窓も設置しています。
ご家族との憩いの場として、一日の疲れを癒す場として、ゆったりと足を伸ばしてくつろげる綺麗で清潔感のある色味の浴室。気持ちの良い光と爽やかな風をたっぷりと取りこめる開閉式の窓も設置しています。
周辺環境:foodium武蔵小杉(ダイエーが運営する新業態店舗です!食料品をメインに生活用品、そして専門店フロアを併設する総合スーパーです。)
周辺環境:foodium武蔵小杉(ダイエーが運営する新業態店舗です!食料品をメインに生活用品、そして専門店フロアを併設する総合スーパーです。)
周辺環境:Uvanceとどろきスタジアム by Fujitsu(Jリーグの川崎フロンターレのホームスタジアムです。武蔵中原駅や武蔵小杉駅などからバスや徒歩でアクセスできます。)
周辺環境:Uvanceとどろきスタジアム by Fujitsu(Jリーグの川崎フロンターレのホームスタジアムです。武蔵中原駅や武蔵小杉駅などからバスや徒歩でアクセスできます。)
周辺環境:デリド武蔵小杉店(焼きたてベーカリー、こだわりのスイーツ、新鮮なお肉屋お魚など、コンパクトな売場に豊富な品ぞろえをしております。)
周辺環境:デリド武蔵小杉店(焼きたてベーカリー、こだわりのスイーツ、新鮮なお肉屋お魚など、コンパクトな売場に豊富な品ぞろえをしております。)
周辺環境:グランツリー武蔵小杉(お子さんが遊べる屋上庭園が整備されていたり、ベビーカーでも通行しやすいように店内通路幅も広く、子育て世代に人気のスポットです。)
周辺環境:グランツリー武蔵小杉(お子さんが遊べる屋上庭園が整備されていたり、ベビーカーでも通行しやすいように店内通路幅も広く、子育て世代に人気のスポットです。)
周辺環境:クリエイトエス・ディー川崎小杉陣屋町店(スーパーやコンビニとともに生活に欠かせないという方も多いドラッグストアは、近所にあると頼もしい限りですね。)
周辺環境:クリエイトエス・ディー川崎小杉陣屋町店(スーパーやコンビニとともに生活に欠かせないという方も多いドラッグストアは、近所にあると頼もしい限りですね。)
周辺環境:中原保育園(中原保育園は、生後43日目から小学校就学時未満までの児童を受入し、自分らしく輝く共に育ち合う保育を目指しています。)
周辺環境:中原保育園(中原保育園は、生後43日目から小学校就学時未満までの児童を受入し、自分らしく輝く共に育ち合う保育を目指しています。)
周辺環境:日本医科大学武蔵小杉病院(救命救急センターや大学病院として高度な医療を提供するとともに、住民の健やかな生活をサポートする地域の中核病院です。 )
周辺環境:日本医科大学武蔵小杉病院(救命救急センターや大学病院として高度な医療を提供するとともに、住民の健やかな生活をサポートする地域の中核病院です。 )
周辺環境:中原小学校(創立明治34年。楽しく学び 共に育つ学校 「たのしく なかよく たくましく」)
周辺環境:中原小学校(創立明治34年。楽しく学び 共に育つ学校 「たのしく なかよく たくましく」)
周辺環境:宮内中学校(「川崎市立宮内中学校」は、国道409号(府中街道)と「等々力緑地」の中にある、市営等々力グラウンドに挟まれた場所に位置する中学校である。)
周辺環境:宮内中学校(「川崎市立宮内中学校」は、国道409号(府中街道)と「等々力緑地」の中にある、市営等々力グラウンドに挟まれた場所に位置する中学校である。)
洗浄のための水を貯めておくタンクがない水道直結方式のトイレ。一般的なタンク式のトイレと比べると、圧迫感のない、すっきりとしたデザインとなります。また、タンクがない分、床の拭き掃除もしやすいです。
洗浄のための水を貯めておくタンクがない水道直結方式のトイレ。一般的なタンク式のトイレと比べると、圧迫感のない、すっきりとしたデザインとなります。また、タンクがない分、床の拭き掃除もしやすいです。

この物件のココがオススメ!

都心の屋上でBBQ ワンコシャワー完備 神奈川県セキュリティ・ホーム認定 等々力緑地も身近な住環境

こだわりポイント

  • 建売だけど一味違うこだわり建物
  • カッコイイ系のこだわり建物
  • 耐震に配慮された建物
  • 断熱に配慮された建物
  • 床暖房
  • 食器洗い洗浄乾燥機
  • 浴室換気乾燥暖房機
  • 外食を楽しめる生活
  • 大型商業施設のある街に住む
  • 急行電車でスピード通勤
  • 始発で座ってゆったり通勤
  • 駅まで平坦ラクラク通勤
  • 2沿線利用であんしん通勤
  • 子供の多い街に住む
  • おしゃれイメージな街に住む
  • 自然を感じる暮らし
  • スカイバルコニー
  • シューズインクローク
  • LDKは2階に
  • LDK18帖以上
  • 主寝室 8帖以上
  • 広々バルコニー
  • 対面キッチン
  • 浴室1坪以上
  • パントリー
  • 小学校10分以内
  • 大規模公園10分以内
  • 大型商業施設15分以内
  • スーパー10分以内
  • コンビニ10分以内
  • 総合病院10分以内
  • 小児科医院10分以内
  • 保育園10分以内
  • 幼稚園10分以内
  • 公園10分以内
  • 都市ガス
  • 屋根付きカースペース
  • 整形地
  • 眺望良好
  • 道路と段差無し
  • 3階建て以上建築可能地域

お気軽にどうぞ!

資料請求 現地見学 電話でお問い合わせ
0120-046-690

地図

申し訳ありません
こちらは会員限定機能です

会員登録で利用できる6つの便利機能

詳しく見る

お気軽にどうぞ!

資料請求 現地見学 電話でお問い合わせ
0120-046-690

頭金0万円・金利0.495%の場合

ボーナス時(年2回)お支払額

0

この物件の月々のお支払額

363,862

年収に対する返済比率

146

  • ※会員登録し、詳細情報を記入されますと、全ての物件で自動的に金額が表示され、大変便利です。
  • ※まだ会員登録をされていない方は、下記チェック欄をご記入ください。
  • ※上記計算は物件価格12,990万円+諸経費 8%込みの金額による結果となります。
  • ※返済金額はあくまでも目安です。

お客様の条件からシミュレーションするには?

会員登録
マイページから登録

金利

直接入力する

ボーナス払い(年2回)

返済年数

頭金

直接入力する

 万円(半角数字)

年収

 万円(半角数字)

約1,200m

スーパー

周辺環境:foodium武蔵小杉(ダイエーが運営する新業態店舗です!食料品をメインに生活用品、そして専門店フロアを併設する総合スーパーです。)

スーパー

約1,200m

約500m

公園

周辺環境:Uvanceとどろきスタジアム by Fujitsu(Jリーグの川崎フロンターレのホームスタジアムです。武蔵中原駅や武蔵小杉駅などからバスや徒歩でアクセスできます。)

公園

約500m

約1,500m

スーパー

周辺環境:デリド武蔵小杉店(焼きたてベーカリー、こだわりのスイーツ、新鮮なお肉屋お魚など、コンパクトな売場に豊富な品ぞろえをしております。)

スーパー

約1,500m

約1,400m

ショッピングセンター

周辺環境:グランツリー武蔵小杉(お子さんが遊べる屋上庭園が整備されていたり、ベビーカーでも通行しやすいように店内通路幅も広く、子育て世代に人気のスポットです。)

ショッピングセンター

約1,400m

約400m

ドラッグストア

周辺環境:クリエイトエス・ディー川崎小杉陣屋町店(スーパーやコンビニとともに生活に欠かせないという方も多いドラッグストアは、近所にあると頼もしい限りですね。)

ドラッグストア

約400m

約300m

幼稚園・保育園

周辺環境:中原保育園(中原保育園は、生後43日目から小学校就学時未満までの児童を受入し、自分らしく輝く共に育ち合う保育を目指しています。)

幼稚園・保育園

約300m

約550m

病院

周辺環境:日本医科大学武蔵小杉病院(救命救急センターや大学病院として高度な医療を提供するとともに、住民の健やかな生活をサポートする地域の中核病院です。 )

病院

約550m

約500m

小学校

周辺環境:中原小学校(創立明治34年。楽しく学び 共に育つ学校 「たのしく なかよく たくましく」)

小学校

約500m

約1,000m

中学校

周辺環境:宮内中学校(「川崎市立宮内中学校」は、国道409号(府中街道)と「等々力緑地」の中にある、市営等々力グラウンドに挟まれた場所に位置する中学校である。)

中学校

約1,000m

価格 12,990万円
物件種別 新築一戸建て
間取り 3SLDK
所在地 川崎市中原区 小杉御殿町2丁目
交通
  • 東急東横線「新丸子」駅 徒歩 13 分
  • 東急東横線「武蔵小杉」駅 徒歩 15 分
土地面積 79.49㎡
建物面積 145.93㎡
学区 中原小学校、宮内中学校
用途地域 第一種住居
建ぺい率 60%
容積率 160%
地目 宅地
駐車場 有り ビルトイン車庫
接道 東4m
権利 所有権
私道面積 無し
セットバック 無し
建物構造 木造
建物階数 3階
築年月 2026年01月
入居日 即時
都市計画 市街化区域
取引態様 仲介
物件番号 A1732-1
設備 公営水道、公共下水、防犯シャッター、省エネルギー対策、耐震構造、ビルトインガレージ、駐車場1台、緑豊かな住宅地、閑静な住宅地、平坦地、都市近郊、地盤調査済、市街地が近い、周辺交通量少なめ、スーパーが近い(10分以内)、駅まで平坦、始発駅、2沿線以上利用可、総合病院徒歩10分以内、小学校徒歩10分以内、保育施設・幼稚園5分以内、公園5分以内、コンビニ5分以内、システムキッチン、ガスコンロ、ガス3口、カウンタキッチン、食器洗い機付き、浄水器、パントリー(食器・食品の収納庫)、ユニットバス、追い焚き、浴室乾燥機、ウォシュレット、オートバス付き、トイレ2ヶ所、浴室1坪以上、浴室に窓、高機能トイレ、暖房便座、浴室暖房、バルコニー、ルーフバルコニー、屋上、3階建以上、LDK18畳以上、省エネ給湯器、採光2面、フローリング、全室フローリング、スマートキー、クローゼット、収納、床下収納、下駄箱、全居室収納、洗面室収納、シャンプドレッサー付き、洗面所独立、洗面ボウル2ヶ所、年内入居可、モニタ付きインターフォン、複層ガラス、火災警報器(報知機)、全居室複層ガラスか複層サッシ、セキュリティ充実、通風良好、陽当り良好、24時間換気システム、建物10年保証
建築確認番号 第25KAK建確00464
特記事項 景観法:有/宅地造成工事規制区域:有/高度地区:有/準防火地域:有/日影制限:有/高さ限度:有/車庫面積約15.85平米含、備蓄倉庫部分2.91平米含、1/12私道負担有、間取Sは納戸。 /
備考 都心の屋上でBBQ ワンコシャワー完備 神奈川県セキュリティ・ホーム認定 等々力緑地も身近な住環境

お気軽にどうぞ!

資料請求 現地見学 電話でお問い合わせ
0120-046-690

このエリアでお探しの方へ

建物完成しました!今週末内覧会開催中!「茅ヶ崎」駅徒歩16分 新築一戸建て完成

東海道本線「茅ヶ崎」駅 徒歩 15 分

相模線「茅ヶ崎」駅 バス停「駐在所前」まで 徒歩 7 分 バス利用 4分

茅ヶ崎市 東海岸南2丁目

12,880万円

3LDK

値下げしました!「蒔田」駅利用 中古一戸建て 全室2面採光

ブルーライン「蒔田」駅 徒歩 20 分

根岸線「根岸」駅 バス停「脳卒中・神経脊椎センター」まで 徒歩 2 分 バス利用 10分

横浜市磯子区 滝頭1丁目

2,299万円

2SLDK

値下げしました!今週末モデルハウス見学会開催中!「蒔田」駅徒歩9分 新築一戸建て(B) 閑静な住宅地

ブルーライン「蒔田」駅 徒歩 9 分

京浜急行本線「南太田」駅 徒歩 16 分

横浜市南区 堀ノ内町1丁目

2,780万円

2SLDK

今週末内覧会開催中!「本郷台」駅利用 中古一戸建て 全居室6帖以上

根岸線「本郷台」駅 徒歩 19 分

東海道本線「戸塚」駅 バス停「飯島」まで 徒歩 1 分 バス利用 12分

横浜市栄区 飯島町

2,799万円

3LDK

今週末内覧会開催中!「下永谷」駅徒歩12分 中古一戸建て 和室あり

ブルーライン「下永谷」駅 徒歩 12 分

横須賀線「東戸塚」駅 バス停「中永谷」まで 徒歩 9 分 バス利用 16分

横浜市港南区 下永谷5丁目

2,899万円

3SLDK

値下げしました!「下飯田」駅利用 新築一戸建て 小屋裏収納

ブルーライン「下飯田」駅 徒歩 19 分

いずみ野線「湘南台」駅 バス停「四ツ谷」まで 徒歩 12 分 バス利用 8分

横浜市泉区 下和泉2丁目

3,080万円

3LDK

川崎市麻生区千代ケ丘6丁目 中古一戸建 3080万円

小田急線「百合ヶ丘」駅 徒歩 22 分

小田急線「新百合ヶ丘」駅 バス停「千代ケ丘九丁目」まで 徒歩 5 分 バス利用 16分

川崎市麻生区 千代ケ丘6丁目

3,080万円

3LDK

横浜市都筑区東山田町 新築一戸建 3180万円

グリーンライン「東山田」駅 徒歩 7 分

田園都市線「鷺沼」駅 バス停「山田小学校」まで 徒歩 4 分 バス利用 25分

横浜市都筑区 東山田町

3,180万円

1SLDK

今週末モデルハウス見学会開催中!「南太田」駅徒歩15分 新築一戸建て 角地

京浜急行本線「南太田」駅 徒歩 15 分

横須賀線「保土ヶ谷」駅 徒歩 21 分

横浜市南区 清水ケ丘

3,180万円

2DK

川崎市多摩区南生田2丁目 中古一戸建 3197万円

小田急線「読売ランド前」駅 徒歩 24 分

小田急線「新百合ヶ丘」駅 バス停「原店前」まで 徒歩 10 分 バス利用 11分

川崎市多摩区 南生田2丁目

3,197万円

3LDK

川崎市川崎区桜本1丁目 新築一戸建 3280万円 B号棟

京浜東北線「川崎」駅 バス停「桜本」まで 徒歩 5 分 バス利用 14分

大師線「川崎大師」駅 徒歩 23 分

川崎市川崎区 桜本1丁目

3,280万円

2SLDK

建物完成しました! 今週末内覧会開催中!「希望ケ丘」駅利用 新築一戸建て LD床暖房付き 和室有り

相模鉄道線「希望ヶ丘」駅 徒歩 17 分

相模鉄道線「三ッ境」駅 バス停「旭ケ丘」まで 徒歩 15 分 バス利用 4分

横浜市瀬谷区 阿久和東2丁目

3,280万円

3LDK

お気軽にどうぞ!

資料請求 現地見学 電話でお問い合わせ
0120-046-690
来店予約