1. トップページ
  2. 川崎市高津区下作延2丁目 新築一戸建 6280万円

川崎市高津区下作延2丁目 新築一戸建 6280万円

価格
6,280万円
物件種別
新築一戸建て
間取り
3LDK
所在地
川崎市高津区 下作延2丁目
交通
  • 田園都市線「溝の口」駅 徒歩 7 分
  • 東急大井町線「溝の口」駅 徒歩 7 分
土地面積
55.16㎡
建物面積
76.17㎡
  • 前回情報更新日 2026.03.05
  • 次回情報更新予定日 2026.03.19
資料請求 現地見学 電話でお問い合わせ
0120-046-690
外観:大きな窓から心地よい光が差し込む明るい居室。バルコニーへ自然に続く開放的な空間設計で、晴れた日には青空を感じながら過ごせます。
外観:大きな窓から心地よい光が差し込む明るい居室。バルコニーへ自然に続く開放的な空間設計で、晴れた日には青空を感じながら過ごせます。
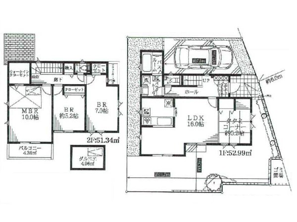
間取り
間取り
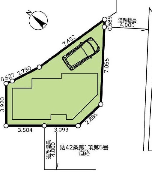
区画図
区画図
陽射しがたっぷり入る心地よい空間。階段からリビングまでつながる明るい動線で、家族の会話も自然と広がります。
陽射しがたっぷり入る心地よい空間。階段からリビングまでつながる明るい動線で、家族の会話も自然と広がります。
靴や小物をすっきり収納できるシューズボックス。棚板の高さ調整ができ、ブーツなどの収納にも便利です。
靴や小物をすっきり収納できるシューズボックス。棚板の高さ調整ができ、ブーツなどの収納にも便利です。
大きな窓から柔らかな光が差し込む、開放感あふれる空間。外の緑が眺められる落ち着いた一室です。
大きな窓から柔らかな光が差し込む、開放感あふれる空間。外の緑が眺められる落ち着いた一室です。
外観:木目が美しい玄関ドアが印象的。  スタイリッシュな外壁とのコントラストが映える、温かみのあるエントランスです。
外観:木目が美しい玄関ドアが印象的。 スタイリッシュな外壁とのコントラストが映える、温かみのあるエントランスです。
リビング全体を見渡せる対面キッチン。家族との会話を楽しみながら、快適にお料理ができます。
リビング全体を見渡せる対面キッチン。家族との会話を楽しみながら、快適にお料理ができます。
柔らかな木目が美しい階段。上階へとつながる導線も明るく、住まい全体に心地よい統一感を感じられます。
柔らかな木目が美しい階段。上階へとつながる導線も明るく、住まい全体に心地よい統一感を感じられます。
やわらかな光に包まれる心地よいリビング。キッチンとのつながりが生む開放感で、毎日の時間を豊かに彩ります。
やわらかな光に包まれる心地よいリビング。キッチンとのつながりが生む開放感で、毎日の時間を豊かに彩ります。
やわらかな光に包まれる心地よいリビング。キッチンとのつながりが生む開放感で、毎日の時間を豊かに彩ります。
やわらかな光に包まれる心地よいリビング。キッチンとのつながりが生む開放感で、毎日の時間を豊かに彩ります。
やわらかな陽光が差し込む心地よい空間。シンプルで美しいデザインと収納のバランスが魅力です。
やわらかな陽光が差し込む心地よい空間。シンプルで美しいデザインと収納のバランスが魅力です。
やわらかな陽光が差し込む心地よい空間。シンプルで美しいデザインと収納のバランスが魅力です。
やわらかな陽光が差し込む心地よい空間。シンプルで美しいデザインと収納のバランスが魅力です。
2面採光で明るく、ゆったりとした居室。落ち着いた色合いが心地よく、家具の配置もしやすい間取りです。
2面採光で明るく、ゆったりとした居室。落ち着いた色合いが心地よく、家具の配置もしやすい間取りです。
やさしい木目とグレーの壁が落ち着いた雰囲気を演出。家族でくつろげる心地よいリビングです。
やさしい木目とグレーの壁が落ち着いた雰囲気を演出。家族でくつろげる心地よいリビングです。
木目調のシステムキッチン。広々としたワークトップで作業しやすく、食洗機付きで家事の時短にも役立ちます。
木目調のシステムキッチン。広々としたワークトップで作業しやすく、食洗機付きで家事の時短にも役立ちます。
明るい陽射しと爽やかな風が心地よいお部屋。窓の外の緑を感じながらリラックスできる空間です。
明るい陽射しと爽やかな風が心地よいお部屋。窓の外の緑を感じながらリラックスできる空間です。
大きな窓から明るい光が差し込む居室。廊下へと続く開放的な間取りで、風通しの良い快適な空間です。
大きな窓から明るい光が差し込む居室。廊下へと続く開放的な間取りで、風通しの良い快適な空間です。
グレーのアクセントウォールが印象的な居室。2面採光で明るく、落ち着きのある空間です。
グレーのアクセントウォールが印象的な居室。2面採光で明るく、落ち着きのある空間です。
周辺環境:ノクティプラザ(衣料品や雑貨、飲食店などが充実した商業施設です。建物内には、溝口行政サービスコーナーもあります。)
周辺環境:ノクティプラザ(衣料品や雑貨、飲食店などが充実した商業施設です。建物内には、溝口行政サービスコーナーもあります。)
周辺環境:オーケー溝ノ口店(言わずと知れた人気店。品質の良い商品にこだわり、他店より高い商品があれば値下げする徹底ぶり。)
周辺環境:オーケー溝ノ口店(言わずと知れた人気店。品質の良い商品にこだわり、他店より高い商品があれば値下げする徹底ぶり。)
周辺環境:セブンイレブン溝の口店(24時間営業のコンビニエンス。セブンミール等好評の商品、品数豊富。)
周辺環境:セブンイレブン溝の口店(24時間営業のコンビニエンス。セブンミール等好評の商品、品数豊富。)
周辺環境:区役所(高津区)(高津区は溝の口周辺を中心に再開発されており、川崎市中部の商業地として発展しています。)
周辺環境:区役所(高津区)(高津区は溝の口周辺を中心に再開発されており、川崎市中部の商業地として発展しています。)
周辺環境:下作延郵便局(郵便の受付だけではなく、「ゆうちょ銀行」をはじめとした貯金口座の開設、保険サービスや銀行サービス等も充実の、生活に必須な施設。近いと便利ですね。)
周辺環境:下作延郵便局(郵便の受付だけではなく、「ゆうちょ銀行」をはじめとした貯金口座の開設、保険サービスや銀行サービス等も充実の、生活に必須な施設。近いと便利ですね。)
周辺環境:青い鳥溝の口園(保育理念は、人間尊重、利用者本位、地域社会への貢献、プライバシーの保護、職員満足の向上)
周辺環境:青い鳥溝の口園(保育理念は、人間尊重、利用者本位、地域社会への貢献、プライバシーの保護、職員満足の向上)
周辺環境:久本小学校(「溝の口」駅、「武蔵溝ノ口」駅から徒歩約10分の位置にあります。レベルが高く人気のある小学校です。)
周辺環境:久本小学校(「溝の口」駅、「武蔵溝ノ口」駅から徒歩約10分の位置にあります。レベルが高く人気のある小学校です。)
周辺環境:高津中学校(1学年4~5クラスで総生徒数約500人。「敬愛」「忍耐」「向学」「健康」の4つの教育目標をめざす。)
周辺環境:高津中学校(1学年4~5クラスで総生徒数約500人。「敬愛」「忍耐」「向学」「健康」の4つの教育目標をめざす。)
周辺環境:マルイファミリー溝口(洋服や雑貨のお店だけではなく、飲食店、旅行代理店など幅広いお店が入る駅前大型商業施設。)
周辺環境:マルイファミリー溝口(洋服や雑貨のお店だけではなく、飲食店、旅行代理店など幅広いお店が入る駅前大型商業施設。)
やわらかな光が差し込む心地よいお部屋。収納スペースも備わり、すっきりとした上質な空間を演出します。
やわらかな光が差し込む心地よいお部屋。収納スペースも備わり、すっきりとした上質な空間を演出します。
清潔感のある洗面化粧台。階段や廊下への動線もスムーズで、家事や身支度がしやすい配置です。
清潔感のある洗面化粧台。階段や廊下への動線もスムーズで、家事や身支度がしやすい配置です。
温もりある木目と白が調和した上質なバスルーム。ゆったりとくつろげる癒しの空間です。
温もりある木目と白が調和した上質なバスルーム。ゆったりとくつろげる癒しの空間です。

この物件のココがオススメ!

溝の口駅徒歩7分と好立地 南東角地で日当たり良好 周辺に生活至便施設が多く便利 リビング階段でつながる住まい

こだわりポイント

  • 前面道路急坂
  • 崖下・崖上
  • 道路狭い(4メートル未満)
  • 食器洗い洗浄乾燥機
  • 浴室換気乾燥暖房機
  • 外食を楽しめる生活
  • 大型商業施設のある街に住む
  • 急行電車でスピード通勤
  • 始発で座ってゆったり通勤
  • 2沿線利用であんしん通勤
  • 子供の多い街に住む
  • おしゃれイメージな街に住む
  • 自然を感じる暮らし
  • シューズインクローク
  • ウォークインクローゼット
  • リビングイン階段
  • LDKは2階に
  • LDK15帖以上
  • 広々バルコニー
  • 対面キッチン
  • 浴室1坪以上
  • スーパー10分以内
  • コンビニ10分以内
  • 保育園10分以内
  • 公園10分以内
  • 都市ガス
  • 角地限定
  • 日当たり良好
  • 南道路限定
  • 道路と段差無し
  • 3階建て以上建築可能地域

お気軽にどうぞ!

資料請求 現地見学 電話でお問い合わせ
0120-046-690

地図

申し訳ありません
こちらは会員限定機能です

会員登録で利用できる6つの便利機能

詳しく見る

お気軽にどうぞ!

資料請求 現地見学 電話でお問い合わせ
0120-046-690

頭金0万円・金利0.495%の場合

ボーナス時(年2回)お支払額

0

この物件の月々のお支払額

175,900

年収に対する返済比率

70

  • ※会員登録し、詳細情報を記入されますと、全ての物件で自動的に金額が表示され、大変便利です。
  • ※まだ会員登録をされていない方は、下記チェック欄をご記入ください。
  • ※上記計算は物件価格6,280万円+諸経費 8%込みの金額による結果となります。
  • ※返済金額はあくまでも目安です。

お客様の条件からシミュレーションするには?

会員登録
マイページから登録

金利

直接入力する

ボーナス払い(年2回)

返済年数

頭金

直接入力する

 万円(半角数字)

年収

 万円(半角数字)

約960m

ショッピングセンター

周辺環境:ノクティプラザ(衣料品や雑貨、飲食店などが充実した商業施設です。建物内には、溝口行政サービスコーナーもあります。)

ショッピングセンター

約960m

約850m

スーパー

周辺環境:オーケー溝ノ口店(言わずと知れた人気店。品質の良い商品にこだわり、他店より高い商品があれば値下げする徹底ぶり。)

スーパー

約850m

約400m

コンビニ

周辺環境:セブンイレブン溝の口店(24時間営業のコンビニエンス。セブンミール等好評の商品、品数豊富。)

コンビニ

約400m

約450m

役所

周辺環境:区役所(高津区)(高津区は溝の口周辺を中心に再開発されており、川崎市中部の商業地として発展しています。)

役所

約450m

約400m

郵便局

周辺環境:下作延郵便局(郵便の受付だけではなく、「ゆうちょ銀行」をはじめとした貯金口座の開設、保険サービスや銀行サービス等も充実の、生活に必須な施設。近いと便利ですね。)

郵便局

約400m

約370m

幼稚園・保育園

周辺環境:青い鳥溝の口園(保育理念は、人間尊重、利用者本位、地域社会への貢献、プライバシーの保護、職員満足の向上)

幼稚園・保育園

約370m

約1,400m

小学校

周辺環境:久本小学校(「溝の口」駅、「武蔵溝ノ口」駅から徒歩約10分の位置にあります。レベルが高く人気のある小学校です。)

小学校

約1,400m

約1,600m

中学校

周辺環境:高津中学校(1学年4~5クラスで総生徒数約500人。「敬愛」「忍耐」「向学」「健康」の4つの教育目標をめざす。)

中学校

約1,600m

約1,000m

ショッピングセンター

周辺環境:マルイファミリー溝口(洋服や雑貨のお店だけではなく、飲食店、旅行代理店など幅広いお店が入る駅前大型商業施設。)

ショッピングセンター

約1,000m

価格 6,280万円
物件種別 新築一戸建て
間取り 3LDK
所在地 川崎市高津区 下作延2丁目
交通
  • 田園都市線「溝の口」駅 徒歩 7 分
  • 東急大井町線「溝の口」駅 徒歩 7 分
土地面積 55.16㎡
建物面積 76.17㎡
学区 久本小学校、高津中学校
用途地域 第一種中高層住居専用
建ぺい率 60%
容積率 160%
地目 宅地
駐車場 有り カースペース
接道 南東4m、南西4m
権利 所有権
私道面積 無し
セットバック 無し
建物構造 木造
建物階数 3階
築年月 2025年09月
入居日 即時
都市計画 市街化区域
取引態様 仲介
物件番号 A1590
設備 公営水道、公共下水、省エネルギー対策、駐車場1台、閑静な住宅地、角地、都市近郊、地盤調査済、南側道路面す、市街地が近い、周辺交通量少なめ、スーパーが近い(10分以内)、2沿線以上利用可、保育施設・幼稚園5分以内、公園5分以内、コンビニ5分以内、システムキッチン、ガス3口、L型キッチン、食器洗い機付き、浄水器、ユニットバス、追い焚き、浴室乾燥機、ウォシュレット、オートバス付き、トイレ2ヶ所、浴室1坪以上、浴室に窓、高機能トイレ、暖房便座、浴室暖房、バルコニー、バルコニー2面、南面バルコニー、3階建以上、LDK15畳以上、省エネ給湯器、採光3面、南向き、全室2面採光、フローリング、全室フローリング、リビング階段、スマートキー、クローゼット、収納、床下収納、下駄箱、全居室収納、洗面室収納、シャンプドレッサー付き、モニタ付きインターフォン、複層ガラス、火災警報器(報知機)、全居室複層ガラスか複層サッシ、セキュリティ充実、通風良好、陽当り良好、24時間換気システム、建物10年保証
建築確認番号 第KBI-YKH24-10-3824号
特記事項 不整形地:有/景観法:有/宅地造成工事規制区域:有/急傾斜地崩壊危険区域:有/高度地区:有/準防火地域:有/日影制限:有/高さ限度:有/私道持分1/14有。 /
備考 溝の口駅徒歩7分と好立地 南東角地で日当たり良好 周辺に生活至便施設が多く便利 リビング階段でつながる住まい

お気軽にどうぞ!

資料請求 現地見学 電話でお問い合わせ
0120-046-690

このエリアでお探しの方へ

川崎市高津区向ヶ丘 新築一戸建 6180万円

田園都市線「宮崎台」駅 徒歩 13 分

南武線「津田山」駅 徒歩 19 分

川崎市高津区 向ケ丘

6,180万円

2LDK+2S

川崎市高津区梶ケ谷3丁目 新築一戸建 6349万円 1号棟

田園都市線「梶が谷」駅 徒歩 13 分

南武線「武蔵溝ノ口」駅 徒歩 24 分

川崎市高津区 梶ケ谷3丁目

6,349万円

2LDK+2S

川崎市高津区梶ケ谷3丁目 新築一戸建 6499万円 2号棟

田園都市線「梶が谷」駅 徒歩 13 分

南武線「武蔵溝ノ口」駅 徒歩 24 分

川崎市高津区 梶ケ谷3丁目

6,499万円

2LDK+2S

川崎市高津区向ケ丘 新築一戸建 6580万円 10号棟

田園都市線「宮崎台」駅 徒歩 18 分

南武線「武蔵溝ノ口」駅 バス停「上作団地前」まで 徒歩 5 分 バス利用 9分

川崎市高津区 向ケ丘

6,580万円

4LDK

川崎市高津区子母口 新築一戸建 3880万円

南武線「武蔵新城」駅 徒歩 22 分

田園都市線「溝の口」駅 バス停「千年」まで 徒歩 6 分 バス利用 13分

川崎市高津区 子母口

3,880万円

2LDK

川崎市高津区久末 新築一戸建 4080万円

東急東横線「日吉」駅 バス停「久末団地」まで 徒歩 1 分 バス利用 17分

グリーンライン「高田」駅 徒歩 22 分

川崎市高津区 久末

4,080万円

2LDK

川崎市高津区明津 一戸建 4380万円

東急東横線「元住吉」駅 徒歩 20 分

横須賀線「武蔵小杉」駅 バス停「井田営業所」まで 徒歩 3 分 バス利用 9分

川崎市高津区 明津

4,380万円

2SLDK

川崎市高津区北野川 新築一戸建 4780万円 2号棟

南武線「武蔵新城」駅 徒歩 27 分

東急大井町線「溝の口」駅 バス停「橘出張所前」まで 徒歩 10 分 バス利用 6分

川崎市高津区 北野川

4,780万円

4LDK

川崎市高津区北野川 新築一戸建 4780万円 2号棟

南武線「武蔵新城」駅 徒歩 26 分

田園都市線「溝の口」駅 バス停「橘出張所前」まで 徒歩 9 分 バス利用 13分

川崎市高津区 北野川

4,780万円

4LDK

川崎市高津区蟹ケ谷 新築一戸建 4780万円 4号棟

南武線「武蔵中原」駅 徒歩 28 分

東急東横線「元住吉」駅 徒歩 30 分

川崎市高津区 蟹ケ谷

4,780万円

3SLDK

川崎市高津区蟹ケ谷 新築一戸建 4780万円 3号棟

南武線「武蔵中原」駅 徒歩 28 分

東急東横線「元住吉」駅 徒歩 30 分

川崎市高津区 蟹ケ谷

4,780万円

3SLDK

川崎市高津区千年 新築一戸建 4780万円 4号棟

南武線「武蔵新城」駅 徒歩 22 分

田園都市線「梶が谷」駅 徒歩 27 分

川崎市高津区 千年

4,780万円

3LDK

お気軽にどうぞ!

資料請求 現地見学 電話でお問い合わせ
0120-046-690
来店予約