1. トップページ
  2. 川崎市麻生区王禅寺東5丁目 新築一戸建 5490万円 宅地3

川崎市麻生区王禅寺東5丁目 新築一戸建 5490万円 宅地3

価格
5,490万円
物件種別
新築一戸建て
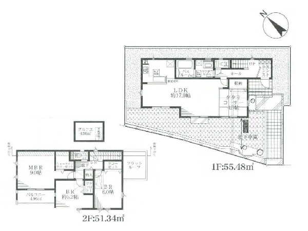
間取り
3LDK
所在地
川崎市麻生区 王禅寺東5丁目
交通
  • 小田急線「新百合ヶ丘」駅 バス停「王禅寺中央中学校前」まで 徒歩 8 分 バス利用 15分
  • 田園都市線「あざみ野」駅 バス停「王禅寺中央中学校前」まで 徒歩 8 分 バス利用 22分
土地面積
128.11㎡
建物面積
91.49㎡
  • 前回情報更新日 2026.01.26
  • 次回情報更新予定日 2026.02.09
資料請求 現地見学 電話でお問い合わせ
0120-046-690
間取り
間取り
四季を通じて自然と触れ合えるスポットが周辺には盛りだくさん!お散歩やジョギング、週末のご家族での遊びに最適です。目の前に広がる開放感とゆとり、暮らしの夢を育む理想の住まいがここにはあります。
四季を通じて自然と触れ合えるスポットが周辺には盛りだくさん!お散歩やジョギング、週末のご家族での遊びに最適です。目の前に広がる開放感とゆとり、暮らしの夢を育む理想の住まいがここにはあります。
大切なご家族が集まるからこそLDKにはこだわりたいですよね!休日はおひさまの光をたっぷりと取りこめるリビングでゆったりと過ごしませんか?子供たちが元気に笑いながら走り回っている姿が目に浮かぶ空間です。
大切なご家族が集まるからこそLDKにはこだわりたいですよね!休日はおひさまの光をたっぷりと取りこめるリビングでゆったりと過ごしませんか?子供たちが元気に笑いながら走り回っている姿が目に浮かぶ空間です。
毎日使うキッチン周りが綺麗で清潔に保たれていると、お料理を作るのも楽しくなりますよね。おしゃれなペンダントライトや飾り棚など、機能性とデザイン性を持たせたキッチンで気持ちよくお料理が出来そうです。
毎日使うキッチン周りが綺麗で清潔に保たれていると、お料理を作るのも楽しくなりますよね。おしゃれなペンダントライトや飾り棚など、機能性とデザイン性を持たせたキッチンで気持ちよくお料理が出来そうです。
外観:毎日のお散歩も快適な緑に恵まれた閑静な住宅地は、伸び伸びスローライフを叶えてくれます。自然豊富な季節の移ろいを身近に感じられる環境で子育てすれば、お子様もきっと素直に成長してくれるはずです!
外観:毎日のお散歩も快適な緑に恵まれた閑静な住宅地は、伸び伸びスローライフを叶えてくれます。自然豊富な季節の移ろいを身近に感じられる環境で子育てすれば、お子様もきっと素直に成長してくれるはずです!
ゆとりの洗面スペースで朝の身支度も快適スムーズに。面鏡で髪のセットやお化粧もストレスなくこなせ、朝から気分良く通勤通学に向かえそうですね!鏡の裏にはたっぷりと収納スペースを標準装備!
ゆとりの洗面スペースで朝の身支度も快適スムーズに。面鏡で髪のセットやお化粧もストレスなくこなせ、朝から気分良く通勤通学に向かえそうですね!鏡の裏にはたっぷりと収納スペースを標準装備!
オープンでのびやかな空間を生み出す、こだわりの広がりとゆとり。家族と過ごす時間を大切にしたい方にぴったりの明るくゆとりある住空間です。南側の窓からの日差しがリビングの隅々までしっかりと届きます!
オープンでのびやかな空間を生み出す、こだわりの広がりとゆとり。家族と過ごす時間を大切にしたい方にぴったりの明るくゆとりある住空間です。南側の窓からの日差しがリビングの隅々までしっかりと届きます!
光が取り込みやすい2面採光の居室。日当たり良好です。しっかりとした大きさのクローゼットを完備し、収納スペースも十分。初めてのお子様にとっての「自分の部屋」。学習デスクやベッドの配置もラクラクです。
光が取り込みやすい2面採光の居室。日当たり良好です。しっかりとした大きさのクローゼットを完備し、収納スペースも十分。初めてのお子様にとっての「自分の部屋」。学習デスクやベッドの配置もラクラクです。
ご家族との憩いの場として、一日の疲れを癒す場として、ゆったりと足を伸ばしてくつろげる綺麗で清潔感のある色味の浴室。気持ちの良い光と爽やかな風をたっぷりと取りこめる開閉式の窓も設置しています。
ご家族との憩いの場として、一日の疲れを癒す場として、ゆったりと足を伸ばしてくつろげる綺麗で清潔感のある色味の浴室。気持ちの良い光と爽やかな風をたっぷりと取りこめる開閉式の窓も設置しています。
散らかりがちな玄関もスッキリと保てる玄関収納は、家の中に入る時一番最初に目に付く場所だからこだわりたいですよね!木目調の落ち着いた雰囲気の色目が、お部屋の雰囲気をそのまま表している家の顔です。
散らかりがちな玄関もスッキリと保てる玄関収納は、家の中に入る時一番最初に目に付く場所だからこだわりたいですよね!木目調の落ち着いた雰囲気の色目が、お部屋の雰囲気をそのまま表している家の顔です。
周辺環境:業務スーパー上麻生店(食べ盛りのお子様がいらっしゃるご家庭の強い味方、魅力の量・価格のスーパーが近くにあると、とても心強いです。)
周辺環境:業務スーパー上麻生店(食べ盛りのお子様がいらっしゃるご家庭の強い味方、魅力の量・価格のスーパーが近くにあると、とても心強いです。)
周辺環境:クリエイト川崎下麻生店(コンビニ同様に、生活に欠かせないドラッグストア、飲料や食品などももちろん取り扱っていて便利です。)
周辺環境:クリエイト川崎下麻生店(コンビニ同様に、生活に欠かせないドラッグストア、飲料や食品などももちろん取り扱っていて便利です。)
周辺環境: HACドラッグ下麻生店(地域のお客様に、より便利で、安心して生活していただける超高齢社会のインフラとしてのドラッグストアです。)
周辺環境: HACドラッグ下麻生店(地域のお客様に、より便利で、安心して生活していただける超高齢社会のインフラとしてのドラッグストアです。)
周辺環境:柿生中学校(昭和22年開校の歴史ある中学校です。中学校内に郷土の史料館が設置されています。)
周辺環境:柿生中学校(昭和22年開校の歴史ある中学校です。中学校内に郷土の史料館が設置されています。)
周辺環境:東柿生小学校(学校教育目標「・確かな学力を育む・豊かな心を育む・健康な体をつくる・地域とともに生きる」)
周辺環境:東柿生小学校(学校教育目標「・確かな学力を育む・豊かな心を育む・健康な体をつくる・地域とともに生きる」)
周辺環境:柿の実幼稚園(《丈夫な体、良い頭、良い心》《みんな仲良く遊ぶ子ども》《人生に必要な知恵は、すべて幼稚園の砂場で学んだ。》)
周辺環境:柿の実幼稚園(《丈夫な体、良い頭、良い心》《みんな仲良く遊ぶ子ども》《人生に必要な知恵は、すべて幼稚園の砂場で学んだ。》)
周辺環境:王禅寺ふるさと公園(多摩丘陵の豊かな自然を生かし、水と緑をテーマとして作られた公園。多目的広場、芝生広場、自然林を生かした散策道、富士山展望広場などあり。)
周辺環境:王禅寺ふるさと公園(多摩丘陵の豊かな自然を生かし、水と緑をテーマとして作られた公園。多目的広場、芝生広場、自然林を生かした散策道、富士山展望広場などあり。)

この物件のココがオススメ!

緑豊かな住宅地に全7棟の新築デザイナーズ住宅誕生  ウッドデッキ付き パントリーやWIC等収納豊富

こだわりポイント

  • 崖下・崖上
  • 耐震に配慮された建物
  • 食器洗い洗浄乾燥機
  • 浴室換気乾燥暖房機
  • 自然を感じる暮らし
  • 2階建て住宅限定
  • リビングイン階段
  • LDKは2階に
  • LDK18帖以上
  • 広々バルコニー
  • 対面キッチン
  • 浴室1坪以上
  • パントリー
  • 小学校10分以内
  • コンビニ10分以内
  • 小児科医院10分以内
  • 公園10分以内
  • 都市ガス
  • カースペース2台
  • 5棟以上の分譲地
  • 隣家との間隔たっぷり
  • 日当たり良好
  • 低層住居専用地域

お気軽にどうぞ!

資料請求 現地見学 電話でお問い合わせ
0120-046-690

地図

申し訳ありません
こちらは会員限定機能です

会員登録で利用できる6つの便利機能

詳しく見る

お気軽にどうぞ!

資料請求 現地見学 電話でお問い合わせ
0120-046-690

頭金0万円・金利0.495%の場合

ボーナス時(年2回)お支払額

0

この物件の月々のお支払額

153,777

年収に対する返済比率

62

  • ※会員登録し、詳細情報を記入されますと、全ての物件で自動的に金額が表示され、大変便利です。
  • ※まだ会員登録をされていない方は、下記チェック欄をご記入ください。
  • ※上記計算は物件価格5,490万円+諸経費 8%込みの金額による結果となります。
  • ※返済金額はあくまでも目安です。

お客様の条件からシミュレーションするには?

会員登録
マイページから登録

金利

直接入力する

ボーナス払い(年2回)

返済年数

頭金

直接入力する

 万円(半角数字)

年収

 万円(半角数字)

約900m

スーパー

周辺環境:業務スーパー上麻生店(食べ盛りのお子様がいらっしゃるご家庭の強い味方、魅力の量・価格のスーパーが近くにあると、とても心強いです。)

スーパー

約900m

約650m

ドラッグストア

周辺環境:クリエイト川崎下麻生店(コンビニ同様に、生活に欠かせないドラッグストア、飲料や食品などももちろん取り扱っていて便利です。)

ドラッグストア

約650m

約650m

ドラッグストア

周辺環境: HACドラッグ下麻生店(地域のお客様に、より便利で、安心して生活していただける超高齢社会のインフラとしてのドラッグストアです。)

ドラッグストア

約650m

約1,800m

中学校

周辺環境:柿生中学校(昭和22年開校の歴史ある中学校です。中学校内に郷土の史料館が設置されています。)

中学校

約1,800m

約500m

小学校

周辺環境:東柿生小学校(学校教育目標「・確かな学力を育む・豊かな心を育む・健康な体をつくる・地域とともに生きる」)

小学校

約500m

約900m

幼稚園・保育園

周辺環境:柿の実幼稚園(《丈夫な体、良い頭、良い心》《みんな仲良く遊ぶ子ども》《人生に必要な知恵は、すべて幼稚園の砂場で学んだ。》)

幼稚園・保育園

約900m

約1,200m

公園

周辺環境:王禅寺ふるさと公園(多摩丘陵の豊かな自然を生かし、水と緑をテーマとして作られた公園。多目的広場、芝生広場、自然林を生かした散策道、富士山展望広場などあり。)

公園

約1,200m

価格 5,490万円
物件種別 新築一戸建て
間取り 3LDK
所在地 川崎市麻生区 王禅寺東5丁目
交通
  • 小田急線「新百合ヶ丘」駅 バス停「王禅寺中央中学校前」まで 徒歩 8 分 バス利用 15分
  • 田園都市線「あざみ野」駅 バス停「王禅寺中央中学校前」まで 徒歩 8 分 バス利用 22分
土地面積 128.11㎡
建物面積 91.49㎡
学区 東柿生小学校、柿生中学校
用途地域 第一種低層住居専用
建ぺい率 40%
容積率 80%
地目 宅地
駐車場 有り カースペース
接道 東4m
権利 所有権
私道面積 無し
セットバック 無し
建物構造 木造
建物階数 2階
築年月 2025年05月
入居日 即時
都市計画 市街化区域
取引態様 仲介
物件番号 A1137-3
設備 公営水道、公共下水、省エネルギー対策、外壁モルタル、駐車場1台、高台に立地、緑豊かな住宅地、閑静な住宅地、都市近郊、地盤調査済、市街地が近い、周辺交通量少なめ、スーパーが近い(10分以内)、駅まで平坦、2沿線以上利用可、小学校徒歩10分以内、公園5分以内、システムキッチン、ガスコンロ、ガス3口、食器洗い機付き、浄水器、パントリー(食器・食品の収納庫)、ユニットバス、追い焚き、浴室乾燥機、ウォシュレット、オートバス付き、トイレ2ヶ所、浴室1坪以上、浴室に窓、暖房便座、バルコニー、ウッドデッキ、南面バルコニー、2階建、LDK18畳以上、採光3面、南向き、全室2面採光、フローリング、全室フローリング、リビング階段、クローゼット、収納、床下収納、下駄箱、全居室収納、洗面室収納、シャンプドレッサー付き、庭、モニタ付きインターフォン、複層ガラス、火災警報器(報知機)、通風良好、陽当り良好、24時間換気システム、建物10年保証
建築確認番号 建確あり
特記事項 崖下につき建築制限:有/崖上につき建築制限:有/壁面後退:有/景観法:有/宅地造成工事規制区域:有/日影制限:有/敷地面積最低限度:有/高さ限度:有/建築基準法第22条区域。 /
備考 緑豊かな住宅地に全7棟の新築デザイナーズ住宅誕生  ウッドデッキ付き パントリーやWIC等収納豊富

お気軽にどうぞ!

資料請求 現地見学 電話でお問い合わせ
0120-046-690

このエリアでお探しの方へ

川崎市麻生区王禅寺 新築一戸建 5190万円 2号棟

小田急線「新百合ヶ丘」駅 バス停「琴平下」まで 徒歩 6 分 バス利用 20分

田園都市線「あざみ野」駅 バス停「虹が丘営業所」まで 徒歩 6 分 バス利用 15分

川崎市麻生区 王禅寺

5,190万円

4LDK

川崎市麻生区王禅寺西3丁目 新築一戸建 5280万円

小田急線「新百合ヶ丘」駅 徒歩 18 分

小田急線「百合ヶ丘」駅 徒歩 22 分

川崎市麻生区 王禅寺西3丁目

5,280万円

3LDK

川崎市麻生区王禅寺東4丁目 新築一戸建 5280万円 1号棟

小田急線「柿生」駅 徒歩 19 分

田園都市線「あざみ野」駅 バス停「真福寺」まで 徒歩 6 分 バス利用 23分

川崎市麻生区 王禅寺東4丁目

5,280万円

4LDK

川崎市麻生区東百合丘1丁目 新築一戸建 5280万円

小田急線「新百合ヶ丘」駅 バス停「中の台」まで 徒歩 7 分 バス利用 22分

小田急線「百合ヶ丘」駅 バス停「中の台」まで 徒歩 7 分 バス利用 13分

川崎市麻生区 東百合丘1丁目

5,280万円

4LDK

川崎市麻生区王禅寺東6丁目 新築一戸建 5299万円 1号棟

小田急線「柿生」駅 徒歩 28 分

田園都市線「たまプラーザ」駅 バス停「王禅寺口」まで 徒歩 4 分 バス利用 26分

川崎市麻生区 王禅寺東6丁目

5,299万円

4LDK

川崎市麻生区高石5丁目 新築一戸建 5299万円 2号棟

小田急線「百合ヶ丘」駅 徒歩 15 分

小田急線「読売ランド前」駅 徒歩 18 分

川崎市麻生区 高石5丁目

5,299万円

4LDK

川崎市麻生区王禅寺東5丁目 新築一戸建 5480万円 10号棟

小田急線「柿生」駅 バス停「東柿生小学校」まで 徒歩 1 分 バス利用 6分

田園都市線「市が尾」駅 バス停「下麻生」まで 徒歩 7 分 バス利用 14分

川崎市麻生区 王禅寺東5丁目

5,480万円

4LDK

川崎市麻生区百合丘3丁目 新築一戸建 5590万円 B号棟

小田急線「百合ヶ丘」駅 徒歩 11 分

小田急線「新百合ヶ丘」駅 徒歩 18 分

川崎市麻生区 百合丘3丁目

5,590万円

4LDK

川崎市麻生区高石5丁目 新築一戸建 5599万円 1号棟

小田急線「百合ヶ丘」駅 徒歩 15 分

小田急線「読売ランド前」駅 徒歩 18 分

川崎市麻生区 高石5丁目

5,599万円

4LDK

川崎市麻生区王禅寺東5丁目 新築一戸建 5680万円 9号棟

小田急線「柿生」駅 バス停「東柿生小学校」まで 徒歩 1 分 バス利用 6分

田園都市線「市が尾」駅 バス停「下麻生」まで 徒歩 7 分 バス利用 14分

川崎市麻生区 王禅寺東5丁目

5,680万円

4LDK

川崎市麻生区千代ケ丘6丁目 新築一戸建 5780万円 3号棟

小田急線「百合ヶ丘」駅 徒歩 16 分

小田急線「新百合ヶ丘」駅 バス停「千代ヶ丘七丁目」まで 徒歩 2 分 バス利用 5分

川崎市麻生区 千代ケ丘6丁目

5,780万円

3SLDK

川崎市麻生区王禅寺東5丁目 新築一戸建 5780万円 7号棟

小田急線「柿生」駅 バス停「東柿生小学校」まで 徒歩 1 分 バス利用 6分

田園都市線「市が尾」駅 バス停「下麻生」まで 徒歩 7 分 バス利用 14分

川崎市麻生区 王禅寺東5丁目

5,780万円

4LDK

お気軽にどうぞ!

資料請求 現地見学 電話でお問い合わせ
0120-046-690
来店予約