1. トップページ
  2. 建物完成しました! 今週末内覧会開催中!「港南台」駅利用 新築一戸建て 角地

建物完成しました! 今週末内覧会開催中!「港南台」駅利用 新築一戸建て 角地

価格
5,690万円
物件種別
新築一戸建て
間取り
4LDK
所在地
横浜市栄区 庄戸1丁目
交通
  • 根岸線「港南台」駅 バス停「庄戸一丁目」まで 徒歩 1 分 バス利用 19分
  • 京浜急行本線「金沢八景」駅 バス停「庄戸」まで 徒歩 8 分 バス利用 18分
土地面積
295.94㎡
建物面積
108.89㎡
  • 前回情報更新日 2026.04.24
  • 次回情報更新予定日 2026.05.08
資料請求 現地見学 電話でお問い合わせ
0120-046-690
外観:閑静な住宅地に馴染む落ち着いた色合いの外観。長く愛着を持って住んで頂きたいからこそ飽きのこないシンプルな色目に仕上げます。
外観:閑静な住宅地に馴染む落ち着いた色合いの外観。長く愛着を持って住んで頂きたいからこそ飽きのこないシンプルな色目に仕上げます。
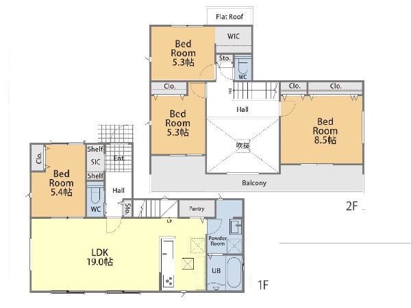
間取図
間取図
区画図
区画図
家族と過ごす時間を大切にしたい方にぴったりのゆとりある住空間です。(本画像はCGで作成しており、実際に現地に家具はおかれておりません。また価格に家具は含まれておりません。)
家族と過ごす時間を大切にしたい方にぴったりのゆとりある住空間です。(本画像はCGで作成しており、実際に現地に家具はおかれておりません。また価格に家具は含まれておりません。)
外観:住まいに陽当りと潤いをもたらす、広いお庭があります。成長する樹木に見守られ、家族の物語が始まります。どんなお庭にしていくか、お子様のプール遊び、ガーデニングなど、幅広く楽しめます。
外観:住まいに陽当りと潤いをもたらす、広いお庭があります。成長する樹木に見守られ、家族の物語が始まります。どんなお庭にしていくか、お子様のプール遊び、ガーデニングなど、幅広く楽しめます。
家族だんらんのスペースとなるリビング。窓が多い設計なので色々な角度から光が取り込めます。明るいリビングで新しい生活を。
家族だんらんのスペースとなるリビング。窓が多い設計なので色々な角度から光が取り込めます。明るいリビングで新しい生活を。
外観:住まいに陽当りと潤いをもたらす、広いお庭があります。成長する樹木に見守られ、家族の物語が始まります。どんなお庭にしていくか、お子様のプール遊び、ガーデニングなど、幅広く楽しめます。
外観:住まいに陽当りと潤いをもたらす、広いお庭があります。成長する樹木に見守られ、家族の物語が始まります。どんなお庭にしていくか、お子様のプール遊び、ガーデニングなど、幅広く楽しめます。
2階層をひとつに繋げた吹き抜け。天井位置が高くなり、2階部分の窓から1階へと光を取り入れることができるため、明るく開放的な空間になっています。(Voidとも言う)
2階層をひとつに繋げた吹き抜け。天井位置が高くなり、2階部分の窓から1階へと光を取り入れることができるため、明るく開放的な空間になっています。(Voidとも言う)
外観:日当たりが良く開放感のある角地です。 2方向から光や風を取り込める、明るく快適な住まいが実現しました!
外観:日当たりが良く開放感のある角地です。 2方向から光や風を取り込める、明るく快適な住まいが実現しました!
家族と過ごす時間を大切にしたい方にぴったりのゆとりある住空間です。窓からの日差しがリビングの隅々までしっかりと届きます。
家族と過ごす時間を大切にしたい方にぴったりのゆとりある住空間です。窓からの日差しがリビングの隅々までしっかりと届きます。
外観:第一種低層住居専用地域の良好な住環境が保たれたエリア。低層の一戸建てを中心とした街並みが整然と続き、周辺は高い建物が建っていないので、採光や開放性に恵まれています。
外観:第一種低層住居専用地域の良好な住環境が保たれたエリア。低層の一戸建てを中心とした街並みが整然と続き、周辺は高い建物が建っていないので、採光や開放性に恵まれています。
リビングのお子様を見守りながらお料理が出来る対面式カウンターキッチン。ご家族との会話がはずみます。
リビングのお子様を見守りながらお料理が出来る対面式カウンターキッチン。ご家族との会話がはずみます。
背面にカップボードが備え付けされています。システムキッチンと一体感あるカラーで見た目もgood。たまにしか使わない調理家電の収納に重宝します。
背面にカップボードが備え付けされています。システムキッチンと一体感あるカラーで見た目もgood。たまにしか使わない調理家電の収納に重宝します。
「どういう家具を置こうかな」とわくわくする。自分好みのこだわりのお部屋にしてオンリーワンの部屋でゆったりと寛ごう。
「どういう家具を置こうかな」とわくわくする。自分好みのこだわりのお部屋にしてオンリーワンの部屋でゆったりと寛ごう。
「どういう家具を置こうかな」とわくわくする。自分好みのこだわりのお部屋にしてオンリーワンの部屋でゆったりと寛ごう。
「どういう家具を置こうかな」とわくわくする。自分好みのこだわりのお部屋にしてオンリーワンの部屋でゆったりと寛ごう。
洗濯物を干すだけのスペースではもったいない多用途にご利用いただける大型ルーフバルコニーです。天気の良い日にはテーブルとイスを並べて外でお食事なども楽しめる。
洗濯物を干すだけのスペースではもったいない多用途にご利用いただける大型ルーフバルコニーです。天気の良い日にはテーブルとイスを並べて外でお食事なども楽しめる。
鏡の裏に収納棚を確保した三面鏡を採用。化粧品や歯ブラシなどを機能的に収納。便利な床下収納付き。
鏡の裏に収納棚を確保した三面鏡を採用。化粧品や歯ブラシなどを機能的に収納。便利な床下収納付き。
洗浄機能付き便座を標準装備。便座保温機能もあるので寒い季節も安心。
洗浄機能付き便座を標準装備。便座保温機能もあるので寒い季節も安心。
ユニットバスはゆったりとくつろげる1坪タイプ。足までしっかりと伸ばせる浴槽は、心身ともにしっかりと疲れを癒してくれます。お子様と一緒の入浴でも充分な広さです。
ユニットバスはゆったりとくつろげる1坪タイプ。足までしっかりと伸ばせる浴槽は、心身ともにしっかりと疲れを癒してくれます。お子様と一緒の入浴でも充分な広さです。
周辺環境:たまや港南台店(たまや港南台店まで2200m)
周辺環境:たまや港南台店(たまや港南台店まで2200m)
周辺環境:たまや上郷店(たまや上郷店まで1800m)
周辺環境:たまや上郷店(たまや上郷店まで1800m)
周辺環境:上郷いちい保育園(上郷いちい保育園まで1500m)
周辺環境:上郷いちい保育園(上郷いちい保育園まで1500m)
周辺環境:横浜市立庄戸小学校(横浜市立庄戸小学校まで450m)
周辺環境:横浜市立庄戸小学校(横浜市立庄戸小学校まで450m)
周辺環境:金沢自然公園(金沢自然公園まで3400m)
周辺環境:金沢自然公園(金沢自然公園まで3400m)
周辺環境:横浜市立上郷中学校(横浜市立上郷中学校まで1500m)
周辺環境:横浜市立上郷中学校(横浜市立上郷中学校まで1500m)
周辺環境:中野幼稚園(中野幼稚園まで2700m)
周辺環境:中野幼稚園(中野幼稚園まで2700m)
周辺環境:港南台バーズ(港南台バーズまで3100m)
周辺環境:港南台バーズ(港南台バーズまで3100m)
周辺環境:庄戸第一公園(庄戸第一公園まで70m)
周辺環境:庄戸第一公園(庄戸第一公園まで70m)

この物件のココがオススメ!

根岸線「港南台」駅利用。角地の為、解放感ある立地。リビングは吹抜け。ベビーカーやゴルフバッグ等の収納に便利な玄関隣接のSIC完備。南面ワイドバルコニー付。

こだわりポイント

  • 大人の二人暮らし
  • LDKは1階に
  • 2階建て住宅限定
  • LDK20帖以上
  • 吹き抜け有り
  • 広々バルコニー
  • 対面キッチン
  • パントリー
  • 小学校10分以内
  • 公園10分以内
  • カースペース3台以上
  • 隣家との間隔たっぷり
  • 角地限定
  • 日当たり良好

お気軽にどうぞ!

資料請求 現地見学 電話でお問い合わせ
0120-046-690

地図

申し訳ありません
こちらは会員限定機能です

会員登録で利用できる6つの便利機能

詳しく見る

お気軽にどうぞ!

資料請求 現地見学 電話でお問い合わせ
0120-046-690

頭金0万円・金利0.495%の場合

ボーナス時(年2回)お支払額

0

この物件の月々のお支払額

159,379

年収に対する返済比率

64

  • ※会員登録し、詳細情報を記入されますと、全ての物件で自動的に金額が表示され、大変便利です。
  • ※まだ会員登録をされていない方は、下記チェック欄をご記入ください。
  • ※上記計算は物件価格5,690万円+諸経費 8%込みの金額による結果となります。
  • ※返済金額はあくまでも目安です。

お客様の条件からシミュレーションするには?

会員登録
マイページから登録

金利

直接入力する

ボーナス払い(年2回)

返済年数

頭金

直接入力する

 万円(半角数字)

年収

 万円(半角数字)

約2,200m

スーパー

周辺環境:たまや港南台店(たまや港南台店まで2200m)

スーパー

約2,200m

約1,800m

スーパー

周辺環境:たまや上郷店(たまや上郷店まで1800m)

スーパー

約1,800m

約1,500m

幼稚園・保育園

周辺環境:上郷いちい保育園(上郷いちい保育園まで1500m)

幼稚園・保育園

約1,500m

約450m

小学校

周辺環境:横浜市立庄戸小学校(横浜市立庄戸小学校まで450m)

小学校

約450m

約3,400m

公園

周辺環境:金沢自然公園(金沢自然公園まで3400m)

公園

約3,400m

約1,500m

中学校

周辺環境:横浜市立上郷中学校(横浜市立上郷中学校まで1500m)

中学校

約1,500m

約2,700m

幼稚園・保育園

周辺環境:中野幼稚園(中野幼稚園まで2700m)

幼稚園・保育園

約2,700m

約3,100m

スーパー

周辺環境:港南台バーズ(港南台バーズまで3100m)

スーパー

約3,100m

約70m

公園

周辺環境:庄戸第一公園(庄戸第一公園まで70m)

公園

約70m

価格 5,690万円
物件種別 新築一戸建て
間取り 4LDK
所在地 横浜市栄区 庄戸1丁目
交通
  • 根岸線「港南台」駅 バス停「庄戸一丁目」まで 徒歩 1 分 バス利用 19分
  • 京浜急行本線「金沢八景」駅 バス停「庄戸」まで 徒歩 8 分 バス利用 18分
土地面積 295.94㎡
建物面積 108.89㎡
学区 庄戸小学校、上郷中学校
用途地域 第一種低層住居専用
建ぺい率 30%
容積率 60%
地目 宅地
駐車場 有り カースペース
接道 南東10.4m、北東4.3m
権利 所有権
私道面積 無し
セットバック 無し
建物構造 木造
建物階数 2階
築年月 2026年04月
入居日 2026年05月
都市計画 市街化区域
取引態様 仲介
物件番号 48613
設備 公営水道、公共下水、吹き抜け、駐車場2台以上、緑豊かな住宅地、閑静な住宅地、角地、土地50坪以上、南側道路面す、前道6m以上、隣家との間隔が大きい、2沿線以上利用可、小学校徒歩10分以内、公園5分以内、システムキッチン、ガス3口、I型キッチン、パントリー(食器・食品の収納庫)、ユニットバス、追い焚き、ウォシュレット、トイレ2ヶ所、浴室に窓、暖房便座、バルコニー、ワイドバルコニー、南面バルコニー、2階建、LDK20畳以上、採光2面、クローゼット、収納、全居室収納、シャンプドレッサー付き、フラット35Sに対応、モニタ付きインターフォン
建築確認番号 第25KAK建確02392号
特記事項 崖上につき建築制限 建築協定 壁面後退 宅地造成工事規制区域 高度地区 風致地区 日影制限 敷地内段差 敷地面積最低限度 建物高さ10m以下 建築基準法第22条による区域 傾斜地含 建物建築・再建築の際、深基礎、基礎杭、擁壁の補修・再構築、外壁後退等の対策が必要となる場合有。 崖上につき建築制限:有/建築協定:有/壁面後退:有/宅地造成工事規制区域:有/高度地区:有/風致地区:有/日影制限:有/敷地内段差:有/敷地面積最低限度:有/高さ限度:有/建築基準法第22条による区域 傾斜地含 建物建築・再建築の際、深基礎、基礎杭、擁壁の補修・再構築、外壁後退等の対策が必要となる場合有。 /
備考 根岸線「港南台」駅利用。角地の為、解放感ある立地。リビングは吹抜け。ベビーカーやゴルフバッグ等の収納に便利な玄関隣接のSIC完備。南面ワイドバルコニー付。

お気軽にどうぞ!

資料請求 現地見学 電話でお問い合わせ
0120-046-690

このエリアでお探しの方へ

今週末モデルハウス見学会開催中!「戸塚」駅利用 新築一戸建て(A) 全室2面採光

東海道本線「戸塚」駅 バス停「港南プラザ」まで 徒歩 5 分 バス利用 12分

根岸線「港南台」駅 バス停「すずかけ通」まで 徒歩 10 分 バス利用 12分

横浜市港南区 日限山3丁目

5,490万円

4LDK

今週末モデルハウス見学会開催中!「六浦」駅利用 新築一戸建て 全室南向き カースペース並列2台

逗子線「六浦」駅 徒歩 23 分

京浜急行本線「金沢八景」駅 バス停「三信センター」まで 徒歩 7 分 バス利用 12分

横浜市金沢区 東朝比奈2丁目

5,590万円

4LDK

今週末モデルハウス見学会開催中!「港南台」駅利用 新築一戸建て 南向きバルコニー カースペース3台

根岸線「港南台」駅 バス停「庄戸1丁目」まで 徒歩 7 分 バス利用 22分

京浜急行本線「金沢八景」駅 バス停「庄戸」まで 徒歩 10 分 バス利用 18分

横浜市栄区 庄戸2丁目

5,590万円

4LDK

値下げしました! 「港南台」駅利用 新築一戸建て 長期優良住宅

根岸線「港南台」駅 バス停「北桂台」まで 徒歩 3 分 バス利用 14分

東海道本線「大船」駅 バス停「北桂台」まで 徒歩 3 分 バス利用 15分

横浜市栄区 桂台西1丁目

5,680万円

4LDK

今週末モデルハウス見学会開催中!「港南台」駅利用 新築一戸建て カースペース3台

根岸線「港南台」駅 バス停「庄戸3丁目南」まで 徒歩 5 分 バス利用 22分

東海道本線「大船」駅 バス停「みどりが丘南」まで 徒歩 18 分 バス利用 22分

横浜市栄区 庄戸3丁目

5,680万円

4LDK

今週末モデルハウス見学会開催中!「戸塚」駅利用 新築一戸建て(B) 全室2面採光

東海道本線「戸塚」駅 バス停「港南プラザ」まで 徒歩 5 分 バス利用 12分

根岸線「港南台」駅 バス停「すずかけ通」まで 徒歩 10 分 バス利用 12分

横浜市港南区 日限山3丁目

5,690万円

4LDK

今週末モデルハウス見学会開催中!「港南台」駅利用 新築一戸建て 土地約77坪

根岸線「港南台」駅 バス停「みどりが丘南」まで 徒歩 6 分 バス利用 14分

東海道本線「大船」駅 バス停「みどりが丘南」まで 徒歩 6 分 バス利用 22分

横浜市栄区 東上郷町

5,780万円

5LDK

今週末モデルハウス見学会開催中!「六浦」駅利用 新築一戸建て SIC完備 リビング階段

逗子線「六浦」駅 徒歩 19 分

金沢シーサイドライン「金沢八景」駅 バス停「三信センター」まで 徒歩 4 分 バス利用 15分

横浜市金沢区 東朝比奈2丁目

5,799万円

4LDK

今週末モデルハウス見学会開催中!「港南台」駅利用 新築一戸建て カースペース2台

根岸線「港南台」駅 バス停「矢沢」まで 徒歩 3 分 バス利用 13分

湘南モノレール「大船」駅 バス停「矢沢」まで 徒歩 3 分 バス利用 19分

横浜市栄区 桂台東

5,990万円

4LDK

値下げしました!「金沢八景」駅利用 新築一戸建て(A)対面キッチン リビング階段

京浜急行本線「金沢八景」駅 徒歩 18 分

逗子線「六浦」駅 徒歩 14 分

横浜市金沢区 六浦3丁目

3,980万円

3LDK

今週末モデルハウス見学会開催中!「六浦」駅利用 新築一戸建て(7)SIC完備 リビング階段

逗子線「六浦」駅 徒歩 13 分

金沢シーサイドライン「金沢八景」駅 バス停「大道小学校前」まで 徒歩 7 分 バス利用 5分

横浜市金沢区 六浦3丁目

4,280万円

3LDK

建物完成しました! 今週末内覧会開催中!「金沢八景」駅利用 新築一戸建て ロフト

京浜急行本線「金沢八景」駅 徒歩 17 分

逗子線「六浦」駅 徒歩 14 分

横浜市金沢区 六浦3丁目

4,280万円

2SLDK

お気軽にどうぞ!

資料請求 現地見学 電話でお問い合わせ
0120-046-690
来店予約