1. トップページ
  2. 建物完成しました! 今週末内覧会開催中!「新杉田」駅徒歩8分 新築一戸建て(1) 2Fリビング

建物完成しました! 今週末内覧会開催中!「新杉田」駅徒歩8分 新築一戸建て(1) 2Fリビング

価格
5,690万円
物件種別
新築一戸建て
間取り
4LDK
所在地
横浜市磯子区 杉田5丁目
交通
  • 根岸線「新杉田」駅 徒歩 8 分
  • 京浜急行本線「杉田」駅 徒歩 11 分
土地面積
67.11㎡
建物面積
110.15㎡
  • 前回情報更新日 2026.05.21
  • 次回情報更新予定日 2026.06.04
資料請求 現地見学 電話でお問い合わせ
0120-046-690
外観:前面道路は車通りの少ない道路。段差もなくお車の出し入れが苦手な方も駐車しやすそうです。
外観:前面道路は車通りの少ない道路。段差もなくお車の出し入れが苦手な方も駐車しやすそうです。
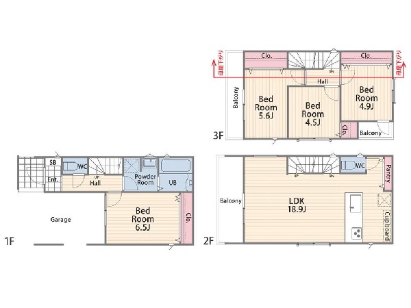
間取り:間取図1号棟
間取り:間取図1号棟
区画図
区画図
外観:駅までも平坦なルートですので、自転車もラクラクご利用いただけます♪
外観:駅までも平坦なルートですので、自転車もラクラクご利用いただけます♪
外観:~類似外観同仕様写真~  ※外観、屋根、色、扉や窓の開口部の位置、形状等が異なります。
外観:~類似外観同仕様写真~ ※外観、屋根、色、扉や窓の開口部の位置、形状等が異なります。
周辺環境:ラビスタ新杉田(ラビスタ新杉田まで600m)
周辺環境:ラビスタ新杉田(ラビスタ新杉田まで600m)
周辺環境:オーケー新杉田店(オーケー新杉田店まで650m)
周辺環境:オーケー新杉田店(オーケー新杉田店まで650m)
周辺環境:杉田善一公園(杉田善一公園まで750m)
周辺環境:杉田善一公園(杉田善一公園まで750m)
周辺環境:新杉田公園(新杉田公園まで300m)
周辺環境:新杉田公園(新杉田公園まで300m)
周辺環境:藤田小児科(藤田小児科まで850m)
周辺環境:藤田小児科(藤田小児科まで850m)
周辺環境:岩崎学園附属磯子幼稚園(岩崎学園附属磯子幼稚園まで2100m)
周辺環境:岩崎学園附属磯子幼稚園(岩崎学園附属磯子幼稚園まで2100m)
周辺環境:横浜市立梅林小学校(横浜市立梅林小学校まで500m)
周辺環境:横浜市立梅林小学校(横浜市立梅林小学校まで500m)
周辺環境:横浜市立浜中学校(横浜市立浜中学校まで14000m)
周辺環境:横浜市立浜中学校(横浜市立浜中学校まで14000m)
周辺環境:杉田幼児園(杉田幼児園まで130m)
周辺環境:杉田幼児園(杉田幼児園まで130m)

この物件のココがオススメ!

JR「新杉田」駅利用。日差しが取り込みやすく、プライバシーに配慮した2階リビングは、対面キッチン・リビングイン階段。パントリー完備。

こだわりポイント

  • 道路狭い(4メートル未満)
  • 急行電車でスピード通勤
  • 始発で座ってゆったり通勤
  • 2沿線利用であんしん通勤
  • 大人の二人暮らし
  • リビングイン階段
  • LDKは2階に
  • LDK18帖以上
  • 対面キッチン
  • パントリー
  • 小学校10分以内
  • 大規模公園10分以内
  • スーパー10分以内
  • 保育園10分以内
  • 公園10分以内
  • 都市ガス

お気軽にどうぞ!

資料請求 現地見学 電話でお問い合わせ
0120-046-690

地図

申し訳ありません
こちらは会員限定機能です

会員登録で利用できる6つの便利機能

詳しく見る

お気軽にどうぞ!

資料請求 現地見学 電話でお問い合わせ
0120-046-690

頭金0万円・金利0.495%の場合

ボーナス時(年2回)お支払額

0

この物件の月々のお支払額

159,379

年収に対する返済比率

64

  • ※会員登録し、詳細情報を記入されますと、全ての物件で自動的に金額が表示され、大変便利です。
  • ※まだ会員登録をされていない方は、下記チェック欄をご記入ください。
  • ※上記計算は物件価格5,690万円+諸経費 8%込みの金額による結果となります。
  • ※返済金額はあくまでも目安です。

お客様の条件からシミュレーションするには?

会員登録
マイページから登録

金利

直接入力する

ボーナス払い(年2回)

返済年数

頭金

直接入力する

 万円(半角数字)

年収

 万円(半角数字)

約600m

ショッピングセンター

周辺環境:ラビスタ新杉田(ラビスタ新杉田まで600m)

ショッピングセンター

約600m

約650m

スーパー

周辺環境:オーケー新杉田店(オーケー新杉田店まで650m)

スーパー

約650m

約750m

公園

周辺環境:杉田善一公園(杉田善一公園まで750m)

公園

約750m

約300m

公園

周辺環境:新杉田公園(新杉田公園まで300m)

公園

約300m

約850m

病院

周辺環境:藤田小児科(藤田小児科まで850m)

病院

約850m

約2,100m

幼稚園・保育園

周辺環境:岩崎学園附属磯子幼稚園(岩崎学園附属磯子幼稚園まで2100m)

幼稚園・保育園

約2,100m

約500m

小学校

周辺環境:横浜市立梅林小学校(横浜市立梅林小学校まで500m)

小学校

約500m

約14,000m

中学校

周辺環境:横浜市立浜中学校(横浜市立浜中学校まで14000m)

中学校

約14,000m

約130m

幼稚園・保育園

周辺環境:杉田幼児園(杉田幼児園まで130m)

幼稚園・保育園

約130m

価格 5,690万円
物件種別 新築一戸建て
間取り 4LDK
所在地 横浜市磯子区 杉田5丁目
交通
  • 根岸線「新杉田」駅 徒歩 8 分
  • 京浜急行本線「杉田」駅 徒歩 11 分
土地面積 67.11㎡
建物面積 110.15㎡
学区 梅林小学校、浜中学校
用途地域 第一種住居
建ぺい率 60%
容積率 160%
地目 宅地
駐車場 有り ビルトイン車庫 駐車場面積:12.42㎡
接道 南西4m
権利 所有権
私道面積 有 1.74㎡
セットバック 無し
建物構造 木造
建物階数 3階
築年月 2026年04月
入居日 2026年05月
都市計画 市街化区域
取引態様 仲介
物件番号 48612
設備 公営水道、公共下水、ビルトインガレージ、駐車場1台、緑豊かな住宅地、閑静な住宅地、スーパーが近い(10分以内)、始発駅、2沿線以上利用可、小学校徒歩10分以内、保育施設・幼稚園5分以内、公園5分以内、システムキッチン、ガス3口、カウンタキッチン、I型キッチン、パントリー(食器・食品の収納庫)、ユニットバス、追い焚き、ウォシュレット、トイレ2ヶ所、浴室に窓、暖房便座、バルコニー、南面バルコニー、3階建以上、LDK18畳以上、採光2面、全室東南向き、フローリング、リビング階段、クローゼット、収納、下駄箱、全居室収納、シャンプドレッサー付き、モニタ付きインターフォン、24時間換気システム、建物10年保証
建築確認番号 第25KAK建確02272号
特記事項 宅地造成工事規制区域 高度地区 準防火地域 日影制限 建築基準法第22条による区域 建物面積に車庫12.42平米含 宅地造成工事規制区域:有/高度地区:有/準防火地域:有/日影制限:有/建築基準法第22条による区域 建物面積に車庫12.42平米含。 /
備考 JR「新杉田」駅利用。日差しが取り込みやすく、プライバシーに配慮した2階リビングは、対面キッチン・リビングイン階段。パントリー完備。

お気軽にどうぞ!

資料請求 現地見学 電話でお問い合わせ
0120-046-690

このエリアでお探しの方へ

今週末モデルハウス見学会開催中!「杉田」駅利用 新築一戸建て(A)5LDK オール電化

京浜急行本線「杉田」駅 徒歩 16 分

京浜急行本線「屏風浦」駅 徒歩 18 分

横浜市磯子区 田中1丁目

5,480万円

5LDK

今週末モデルハウス見学会開催中!「杉田」駅利用 新築一戸建て(B)5LDK オール電化

京浜急行本線「杉田」駅 徒歩 16 分

京浜急行本線「屏風浦」駅 徒歩 18 分

横浜市磯子区 田中1丁目

5,560万円

5LDK

今週末モデルハウス見学会開催中!「洋光台」駅徒歩14分 新築一戸建て(2) SIC

根岸線「洋光台」駅 徒歩 14 分

京浜急行本線「杉田」駅 バス停「坂下」まで 徒歩 5 分 バス利用 10分

横浜市磯子区 洋光台6丁目

5,580万円

3SLDK

建物完成しました! 今週末内覧会開催中!「洋光台」駅徒歩11分 新築一戸建て(2) カースペース2台

根岸線「洋光台」駅 徒歩 11 分

京浜急行本線「上大岡」駅 バス停「長谷川団地」まで 徒歩 4 分 バス利用 18分

横浜市磯子区 洋光台1丁目

5,990万円

4LDK

今週末モデルハウス見学会開催中!「洋光台」駅利用 新築一戸建て ルーフバルコニー

根岸線「洋光台」駅 徒歩 16 分

京浜急行本線「杉田」駅 徒歩 18 分

横浜市磯子区 栗木1丁目

3,680万円

1SLDK

今週末モデルハウス見学会開催中!「新杉田」駅利用 新築一戸建て(2) 対面キッチン・リビングイン階段

根岸線「新杉田」駅 徒歩 17 分

京浜急行本線「杉田」駅 徒歩 20 分

横浜市金沢区 富岡東1丁目

3,780万円

2SLDK

値下げしました!今週末見学会開催中!「洋光台」駅徒歩13分 新築一戸建て(3) 全3棟 閑静な住宅地

根岸線「洋光台」駅 徒歩 13 分

京浜急行本線「杉田」駅 徒歩 14 分

横浜市磯子区 栗木2丁目

4,100万円

3SLDK

値下げしました!今週末内覧会開催中!「京急富岡」駅利用 中古一戸建て 全居室6帖以上 4LDK

京浜急行本線「京急富岡」駅 徒歩 22 分

金沢シーサイドライン「新杉田」駅 バス停「杉田台下」まで 徒歩 3 分 バス利用 12分

横浜市磯子区 杉田8丁目

4,480万円

4LDK

今週末モデルハウス見学会開催中!「屏風浦」駅徒歩12分 新築一戸建て 対面キッチン・リビングイン階段

京浜急行本線「屏風浦」駅 徒歩 12 分

京浜急行本線「杉田」駅 徒歩 16 分

横浜市磯子区 森6丁目

4,480万円

3LDK

値下げしました! 「京急富岡」駅利用 新築一戸建て 平屋

京浜急行本線「京急富岡」駅 徒歩 17 分

京浜急行本線「杉田」駅 徒歩 18 分

横浜市金沢区 富岡西1丁目

5,180万円

3LDK

値下げしました!「蒔田」駅利用 中古一戸建て 全室2面採光

ブルーライン「蒔田」駅 徒歩 20 分

根岸線「根岸」駅 バス停「脳卒中・神経脊椎センター」まで 徒歩 2 分 バス利用 10分

横浜市磯子区 滝頭1丁目

2,299万円

2SLDK

今週末内覧会開催中!「根岸」駅利用 中古一戸建て R8年1月クロス貼替他リフォーム完了

根岸線「根岸」駅 徒歩 21 分

ブルーライン「蒔田」駅 徒歩 22 分

横浜市磯子区 滝頭2丁目

3,280万円

1LDK+2S

お気軽にどうぞ!

資料請求 現地見学 電話でお問い合わせ
0120-046-690
来店予約