1. トップページ
  2. 今週末モデルハウス見学会開催中!「北山田」駅徒歩12分 新築一戸建て 角地

今週末モデルハウス見学会開催中!「北山田」駅徒歩12分 新築一戸建て 角地

価格
6,680万円
物件種別
新築一戸建て
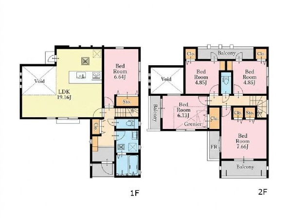
間取り
5LDK
所在地
川崎市宮前区 東有馬5丁目
交通
  • グリーンライン「北山田」駅 徒歩 12 分
  • ブルーライン「センター北」駅 バス停「東山田一丁目」まで 徒歩 2 分 バス利用 8分
土地面積
145.99㎡
建物面積
110.13㎡
  • 前回情報更新日 2026.04.30
  • 次回情報更新予定日 2026.05.14
資料請求 現地見学 電話でお問い合わせ
0120-046-690
外観:心踊る日常と守られている安心感 どのライフステージでも快適に暮らすことができる場所です。
外観:心踊る日常と守られている安心感 どのライフステージでも快適に暮らすことができる場所です。
間取図
間取図
区画図
区画図
~類似外観同仕様写真~  ※外壁、屋根、色、扉や窓の開口部の位置、形状等が異なります。
~類似外観同仕様写真~ ※外壁、屋根、色、扉や窓の開口部の位置、形状等が異なります。
外観:光と風が行わたる開放感あふれる邸宅 春には気持ちの良いそよ風、冬には朝の暖かな光 季節の移り変わりを感じる暮らしを実現
外観:光と風が行わたる開放感あふれる邸宅 春には気持ちの良いそよ風、冬には朝の暖かな光 季節の移り変わりを感じる暮らしを実現
外観:☆☆風通しの良い住宅地☆☆  ゆとりのある住宅地 部屋の窓を開けるとそこには心地よい風が通りぬけます♪
外観:☆☆風通しの良い住宅地☆☆ ゆとりのある住宅地 部屋の窓を開けるとそこには心地よい風が通りぬけます♪
外観:光と風が行わたる開放感あふれる邸宅 春には気持ちの良いそよ風、冬には朝の暖かな光 季節の移り変わりを感じる暮らしを実現
外観:光と風が行わたる開放感あふれる邸宅 春には気持ちの良いそよ風、冬には朝の暖かな光 季節の移り変わりを感じる暮らしを実現
外観:☆☆風通しの良い住宅地☆☆  ゆとりのある住宅地 部屋の窓を開けるとそこには心地よい風が通りぬけます♪
外観:☆☆風通しの良い住宅地☆☆ ゆとりのある住宅地 部屋の窓を開けるとそこには心地よい風が通りぬけます♪
周辺環境:川崎市立有馬小学校(川崎市立有馬小学校まで500m)
周辺環境:川崎市立有馬小学校(川崎市立有馬小学校まで500m)
周辺環境:川崎市立有馬中学校(川崎市立有馬中学校まで2000m)
周辺環境:川崎市立有馬中学校(川崎市立有馬中学校まで2000m)
周辺環境:東山田あおぞら公園(東山田あおぞら公園まで350m)
周辺環境:東山田あおぞら公園(東山田あおぞら公園まで350m)
周辺環境:有馬白百合幼稚園(有馬白百合幼稚園まで900m)
周辺環境:有馬白百合幼稚園(有馬白百合幼稚園まで900m)
周辺環境:オーケー北山田店(オーケー北山田店まで1300m)
周辺環境:オーケー北山田店(オーケー北山田店まで1300m)
周辺環境:東有馬植木の里公園(東有馬植木の里公園まで400m)
周辺環境:東有馬植木の里公園(東有馬植木の里公園まで400m)
周辺環境:野川南台保育園(野川南台保育園まで1500m)
周辺環境:野川南台保育園(野川南台保育園まで1500m)
周辺環境:ライフ東有馬店(ライフ東有馬店まで1600m)
周辺環境:ライフ東有馬店(ライフ東有馬店まで1600m)
周辺環境:森島小児科内科クリニック(森島小児科内科クリニックまで900m)
周辺環境:森島小児科内科クリニック(森島小児科内科クリニックまで900m)

この物件のココがオススメ!

GL「北山田」駅徒歩12分。角地につき開放案ある立地。閑静な住宅地。5LDKのゆとりの間取り、全居室収納付き。会話が弾む対面キッチン。カースペース並列2台。

こだわりポイント

  • 崖下・崖上
  • 省エネに配慮された建物
  • 食器洗い洗浄乾燥機
  • 浴室換気乾燥暖房機
  • 運転ラクラク生活
  • 子供の多い街に住む
  • 大人の二人暮らし
  • おしゃれイメージな街に住む
  • LDKは1階に
  • 2階建て住宅限定
  • LDK18帖以上
  • 吹き抜け有り
  • 広々バルコニー
  • 対面キッチン
  • ロフト・小屋裏収納
  • 小学校10分以内
  • コンビニ10分以内
  • 保育園10分以内
  • 幼稚園10分以内
  • 公園10分以内
  • 都市ガス
  • フラット35利用可
  • カースペース2台
  • 公園隣接
  • 隣家との間隔たっぷり
  • 角地限定
  • 道路広々(5m以上)
  • 日当たり良好
  • 道路と段差無し

お気軽にどうぞ!

資料請求 現地見学 電話でお問い合わせ
0120-046-690

地図

申し訳ありません
こちらは会員限定機能です

会員登録で利用できる6つの便利機能

詳しく見る

お気軽にどうぞ!

資料請求 現地見学 電話でお問い合わせ
0120-046-690

頭金0万円・金利0.495%の場合

ボーナス時(年2回)お支払額

0

この物件の月々のお支払額

187,105

年収に対する返済比率

75

  • ※会員登録し、詳細情報を記入されますと、全ての物件で自動的に金額が表示され、大変便利です。
  • ※まだ会員登録をされていない方は、下記チェック欄をご記入ください。
  • ※上記計算は物件価格6,680万円+諸経費 8%込みの金額による結果となります。
  • ※返済金額はあくまでも目安です。

お客様の条件からシミュレーションするには?

会員登録
マイページから登録

金利

直接入力する

ボーナス払い(年2回)

返済年数

頭金

直接入力する

 万円(半角数字)

年収

 万円(半角数字)

約500m

小学校

周辺環境:川崎市立有馬小学校(川崎市立有馬小学校まで500m)

小学校

約500m

約2,000m

中学校

周辺環境:川崎市立有馬中学校(川崎市立有馬中学校まで2000m)

中学校

約2,000m

約350m

公園

周辺環境:東山田あおぞら公園(東山田あおぞら公園まで350m)

公園

約350m

約900m

幼稚園・保育園

周辺環境:有馬白百合幼稚園(有馬白百合幼稚園まで900m)

幼稚園・保育園

約900m

約1,300m

スーパー

周辺環境:オーケー北山田店(オーケー北山田店まで1300m)

スーパー

約1,300m

約400m

公園

周辺環境:東有馬植木の里公園(東有馬植木の里公園まで400m)

公園

約400m

約1,500m

幼稚園・保育園

周辺環境:野川南台保育園(野川南台保育園まで1500m)

幼稚園・保育園

約1,500m

約1,600m

スーパー

周辺環境:ライフ東有馬店(ライフ東有馬店まで1600m)

スーパー

約1,600m

約900m

病院

周辺環境:森島小児科内科クリニック(森島小児科内科クリニックまで900m)

病院

約900m

価格 6,680万円
物件種別 新築一戸建て
間取り 5LDK
所在地 川崎市宮前区 東有馬5丁目
交通
  • グリーンライン「北山田」駅 徒歩 12 分
  • ブルーライン「センター北」駅 バス停「東山田一丁目」まで 徒歩 2 分 バス利用 8分
土地面積 145.99㎡
建物面積 110.13㎡
学区 有馬小学校、有馬中学校
用途地域 第一種低層住居専用
建ぺい率 40%
容積率 80%
地目 宅地
駐車場 有り カースペース
接道 北6m、西4.5m
権利 所有権
私道面積 有 10.68㎡
セットバック 無し
建物構造 木造
建物階数 2階
築年月 2026年09月
入居日 2026年10月
都市計画 市街化区域
取引態様 仲介
物件番号 48526
設備 公営水道、公共下水、吹き抜け、外壁サイディング、駐車場2台以上、緑豊かな住宅地、閑静な住宅地、角地、前道6m以上、隣家との間隔が大きい、2沿線以上利用可、小学校徒歩10分以内、保育施設・幼稚園5分以内、公園5分以内、システムキッチン、ガス3口、食器洗い機付き、浄水器、勝手口、I型キッチン、トイレ(共同)あり、ユニットバス、追い焚き、浴室乾燥機、ウォシュレット、浴室1坪以上、浴室に窓、暖房便座、バルコニー、バルコニー3面、ワイドバルコニー、南面バルコニー、2階建、LDK18畳以上、省エネ給湯器、採光2面、フローリング、全室フローリング、クローゼット、収納、床下収納、下駄箱、屋根裏収納、全居室収納、シャンプドレッサー付き、庭、フラット35Sに対応、モニタ付きインターフォン、インターフォン、複層ガラス、全居室複層ガラスか複層サッシ、通風良好、陽当り良好、24時間換気システム、建物10年保証
建築確認番号 第KBI-SGM25-10-3613号
特記事項 不整形地 隅切り 壁面後退 宅地造成工事規制区域 高度地区 日影制限 接道と段差 敷地面積最低限度 建物10m以下 建築基準法第22条区域 横浜市建築基準条例第3条による制限有 建物建築・再建築の際、深基礎、基礎杭、擁壁の補修・再構築、外壁後退等の対策が必要となる場合があります 建物建築・再建築の際、防護壁の設置、高基礎、外壁後退等の対策が必要となる場合があります 越境有り(覚書有り) 不整形地:有/隅切り:有/壁面後退:有/宅地造成工事規制区域:有/高度地区:有/日影制限:有/接道と段差:有/敷地面積最低限度:有/高さ限度:有/建築基準法第22条区域 横浜市建築基準条例第3条による制限有 建物建築・再建築の際、深基礎、基礎杭、擁壁の補修・再構築、外壁後退等の対策が必要となる場合があります 建物建築・再建築の際、防護壁の設置、高基礎、外壁後退等の対策
備考 GL「北山田」駅徒歩12分。角地につき開放案ある立地。閑静な住宅地。5LDKのゆとりの間取り、全居室収納付き。会話が弾む対面キッチン。カースペース並列2台。

お気軽にどうぞ!

資料請求 現地見学 電話でお問い合わせ
0120-046-690

このエリアでお探しの方へ

今週末モデルハウス見学会開催中!「辻堂」駅利用 新築一戸建て(1)

東海道本線「辻堂」駅 バス停「辻堂東海岸」まで 徒歩 7 分 バス利用 5分

江ノ島線「鵠沼海岸」駅 徒歩 20 分

藤沢市 辻堂東海岸1丁目

6,380万円

2LDK+2S

横浜市青葉区もみの木台 新築一戸建 6380万円

ブルーライン「あざみ野」駅 バス停「前田公園」まで 徒歩 5 分 バス利用 13分

田園都市線「あざみ野」駅 バス停「前田公園」まで 徒歩 5 分 バス利用 13分

横浜市青葉区 もみの木台

6,380万円

4LDK

値下げしました! 「弥生台」駅徒歩8分 新築一戸建て LD床暖房装備

いずみ野線「弥生台」駅 徒歩 8 分

東海道本線「戸塚」駅 バス停「親善病院前」まで 徒歩 3 分 バス利用 22分

横浜市泉区 弥生台

6,380万円

4LDK

今週末モデルハウス見学会開催中!「金沢文庫」駅利用 新築一戸建て 5LDK

京浜急行本線「金沢文庫」駅 バス停「野村住宅センター」まで 徒歩 7 分 バス利用 16分

逗子線「金沢八景」駅 バス停「相武隧道」まで 徒歩 15 分 バス利用 11分

横浜市金沢区 釜利谷西6丁目

6,380万円

5LDK

横浜市鶴見区下末吉5丁目 新築一戸建 6380万円 20号棟

京浜東北線「鶴見」駅 徒歩 20 分

京浜急行本線「京急鶴見」駅 バス停「宮の下」まで 徒歩 3 分 バス利用 7分

横浜市鶴見区 下末吉5丁目

6,380万円

4LDK

今週末モデルハウス見学会開催中!「鎌倉高校前」駅徒歩13分 新築一戸建て WIC

江ノ島電鉄線「鎌倉高校前」駅 徒歩 13 分

江ノ島電鉄線「七里ヶ浜」駅 徒歩 18 分

鎌倉市 七里ガ浜2丁目

6,380万円

3LDK

今週末モデルハウス見学会開催中!「西鎌倉」駅徒歩6分 新築一戸建て (I)

湘南モノレール「西鎌倉」駅 徒歩 6 分

江ノ島電鉄線「腰越」駅 徒歩 17 分

鎌倉市 腰越

6,380万円

4LDK

値下げしました!建物完成しました!「下永谷」駅徒歩2分 新築一戸建て(1) カースペース2台

ブルーライン「下永谷」駅 徒歩 2 分

京浜急行本線「上大岡」駅 バス停「スポーツ公園前」まで 徒歩 7 分 バス利用 23分

横浜市港南区 日限山1丁目

6,380万円

4LDK

川崎市宮前区けやき平 新築一戸建 6390万円 B号棟

田園都市線「宮前平」駅 徒歩 14 分

東急大井町線「溝の口」駅 バス停「東名向丘入口」まで 徒歩 9 分 バス利用 17分

川崎市宮前区 けやき平

6,390万円

4LDK

横浜市鶴見区梶山2丁目 新築一戸建 6390万円 1号棟

東急東横線「大倉山」駅 バス停「長松寺前」まで 徒歩 5 分 バス利用 11分

東急新横浜線「新綱島」駅 バス停「旭変電所前」まで 徒歩 7 分 バス利用 15分

横浜市鶴見区 梶山2丁目

6,390万円

4LDK

稲城市平尾1丁目 新築一戸建 6390万円

小田急線「新百合ヶ丘」駅 徒歩 23 分

小田急線「新百合ヶ丘」駅 バス停「ひらお苑入口」まで 徒歩 4 分 バス利用 5分

稲城市 平尾1丁目

6,390万円

4LDK

今週末モデルハウス見学会開催中!「辻堂」駅利用 新築一戸建て(1)

東海道本線「辻堂」駅 徒歩 24 分

江ノ島線「鵠沼海岸」駅 徒歩 23 分

藤沢市 辻堂太平台1丁目

6,399万円

1LDK+2S

お気軽にどうぞ!

資料請求 現地見学 電話でお問い合わせ
0120-046-690
来店予約