1. トップページ
  2. 今週末モデルハウス見学会開催中!「鶴ケ峰」駅利用 新築一戸建て(2) WIC・SIC完備

今週末モデルハウス見学会開催中!「鶴ケ峰」駅利用 新築一戸建て(2) WIC・SIC完備

価格
5,390万円
物件種別
新築一戸建て
間取り
4LDK
所在地
横浜市旭区 白根6丁目
交通
  • 相模鉄道線「鶴ヶ峰」駅 徒歩 20 分
  • 相鉄新横浜線「西谷」駅 バス停「金草沢」まで 徒歩 9 分 バス利用 7分
土地面積
120.80㎡
建物面積
105.78㎡
  • 前回情報更新日 2026.03.09
  • 次回情報更新予定日 2026.03.23
資料請求 現地見学 電話でお問い合わせ
0120-046-690
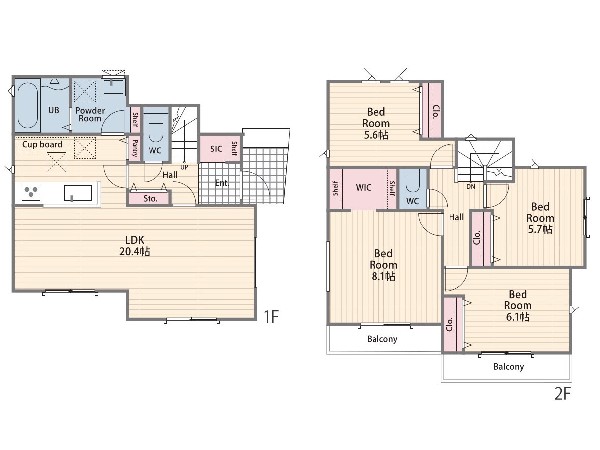
間取り:間取図2号棟
間取り:間取図2号棟
区画図
区画図

この物件のココがオススメ!

相鉄線「鶴ケ峰」駅利用。全室2面採光なので、明るく通風良好なお住まいです。LDKは、対面キッチン。大物の収納に便利なWIC、玄関隣接のSIC完備。

こだわりポイント

  • 食器洗い洗浄乾燥機
  • 急行電車でスピード通勤
  • 大人の二人暮らし
  • LDKは1階に
  • 2階建て住宅限定
  • シューズインクローク
  • ウォークインクローゼット
  • リビングイン階段
  • LDK18帖以上
  • 広々バルコニー
  • 対面キッチン
  • パントリー
  • 小学校10分以内
  • スーパー10分以内
  • コンビニ10分以内
  • 保育園10分以内
  • 幼稚園10分以内
  • 公園10分以内
  • 都市ガス
  • フラット35利用可
  • カースペース2台
  • 道路広々(5m以上)

お気軽にどうぞ!

資料請求 現地見学 電話でお問い合わせ
0120-046-690

地図

申し訳ありません
こちらは会員限定機能です

会員登録で利用できる6つの便利機能

詳しく見る

お気軽にどうぞ!

資料請求 現地見学 電話でお問い合わせ
0120-046-690

頭金0万円・金利0.495%の場合

ボーナス時(年2回)お支払額

0

この物件の月々のお支払額

150,976

年収に対する返済比率

60

  • ※会員登録し、詳細情報を記入されますと、全ての物件で自動的に金額が表示され、大変便利です。
  • ※まだ会員登録をされていない方は、下記チェック欄をご記入ください。
  • ※上記計算は物件価格5,390万円+諸経費 8%込みの金額による結果となります。
  • ※返済金額はあくまでも目安です。

お客様の条件からシミュレーションするには?

会員登録
マイページから登録

金利

直接入力する

ボーナス払い(年2回)

返済年数

頭金

直接入力する

 万円(半角数字)

年収

 万円(半角数字)
価格 5,390万円
物件種別 新築一戸建て
間取り 4LDK
所在地 横浜市旭区 白根6丁目
交通
  • 相模鉄道線「鶴ヶ峰」駅 徒歩 20 分
  • 相鉄新横浜線「西谷」駅 バス停「金草沢」まで 徒歩 9 分 バス利用 7分
土地面積 120.80㎡
建物面積 105.78㎡
学区 不動丸小学校、鶴ケ峯中学校
用途地域 第一種低層住居専用
建ぺい率 50%
容積率 100%
地目 宅地
駐車場 有り カースペース
接道 北6.8m
権利 所有権
私道面積 無し
セットバック 無し
建物構造 木造
建物階数 2階
築年月 2026年03月
入居日 即時
都市計画 市街化区域
取引態様 仲介
物件番号 48506-2
設備 公営水道、公共下水、駐車場2台以上、緑豊かな住宅地、閑静な住宅地、前道6m以上、スーパーが近い(10分以内)、小学校徒歩10分以内、公園5分以内、システムキッチン、ガス3口、食器洗い機付き、I型キッチン、ユニットバス、追い焚き、ウォシュレット、トイレ2ヶ所、浴室に窓、暖房便座、バルコニー、ワイドバルコニー、南面バルコニー、2階建、LDK18畳以上、全室2面採光、フローリング、リビング階段、クローゼット、収納、床下収納、全居室収納、シャンプドレッサー付き、フラット35Sに対応、モニタ付きインターフォン、24時間換気システム、建物10年保証
建築確認番号 -
特記事項 建築基準法第22条による区域 建物建築・再建築の際、深基礎、基礎杭、擁壁の補修・再構築、外壁後退等の対策が必要となる場合有。崖上につき建築制限 不整形地 宅地造成工事規制区域 高度地区 準防火地域 日影制限 敷地面積最低限度 建物高さ10m以下 建築基準法第22条による区域 建物建築・再建築の際、深基礎、基礎杭、擁壁の補修・再構築、外壁後退等の対策が必要となる場合有。/崖上につき建築制限:有/不整形地:有/宅地造成工事規制区域:有/高度地区:有/準防火地域:有/日影制限:有/敷地面積最低限度:有/高さ限度:有。 /
備考 相鉄線「鶴ケ峰」駅利用。全室2面採光なので、明るく通風良好なお住まいです。LDKは、対面キッチン。大物の収納に便利なWIC、玄関隣接のSIC完備。

お気軽にどうぞ!

資料請求 現地見学 電話でお問い合わせ
0120-046-690

このエリアでお探しの方へ

今週末モデルハウス見学会開催中!「鶴ケ峰」駅利用 新築一戸建て 全室南東向き リビング階段

相模鉄道線「鶴ヶ峰」駅 徒歩 19 分

横浜線「中山」駅 バス停「白根小学校前」まで 徒歩 2 分 バス利用 23分

横浜市旭区 白根5丁目

5,280万円

4LDK

値下げしました!「二俣川」駅徒歩15分 新築一戸建て 食洗器付き対面キッチン

相模鉄道線「二俣川」駅 徒歩 15 分

相模鉄道線「鶴ヶ峰」駅 徒歩 20 分

横浜市旭区 四季美台

5,380万円

4LDK

今週末モデルハウス見学会開催中!「鶴ケ峰」駅利用 新築一戸建て(1) カースペース2台

相模鉄道線「鶴ヶ峰」駅 徒歩 20 分

東海道本線「横浜」駅 バス停「鶴ケ峰中学校前」まで 徒歩 7 分 バス利用 40分

横浜市旭区 今宿東町

5,390万円

4LDK

建物完成しました! 今週末内覧会開催中!「中山」駅利用 新築一戸建て 長期優良住宅

横浜線「中山」駅 バス停「長坂」まで 徒歩 6 分 バス利用 6分

相模鉄道線「鶴ヶ峰」駅 バス停「長坂」まで 徒歩 6 分 バス利用 18分

横浜市旭区 上白根3丁目

5,490万円

4LDK

今週末モデルハウス見学会開催中!「鶴ケ峰」駅利用 新築一戸建て(1) WIC・SIC完備

相模鉄道線「鶴ヶ峰」駅 徒歩 20 分

相鉄新横浜線「西谷」駅 バス停「金草沢」まで 徒歩 9 分 バス利用 7分

横浜市旭区 白根6丁目

5,490万円

4LDK

値下げしました!今週末見学会開催中!「二俣川」駅利用 新築一戸建て(12) カースペース2台

相模鉄道線「二俣川」駅 徒歩 25 分

相模鉄道線「二俣川」駅 バス停「ニュータウン第5」まで 徒歩 4 分 バス利用 15分

横浜市旭区 今宿2丁目

5,180万円

4LDK

値下げしました!今週末内覧会開催中!「三ツ境」駅徒歩5分 中古一戸建て 閑静な住宅地

相模鉄道線「三ッ境」駅 徒歩 5 分

東海道本線「戸塚」駅 バス停「三ツ境駅」まで 徒歩 4 分 バス利用 41分

横浜市旭区 中希望が丘

5,180万円

3LDK

今週末モデルハウス見学会開催中!「希望ケ丘」駅利用 新築一戸建て(1) カースペース2台

相模鉄道線「希望ヶ丘」駅 徒歩 17 分

いずみ野線「二俣川」駅 バス停「善部第3」まで 徒歩 4 分 バス利用 14分

横浜市旭区 善部町

5,180万円

4LDK

今週末モデルハウス見学会開催中!「希望ケ丘」駅利用 新築一戸建て(3) カースペース2台

相模鉄道線「希望ヶ丘」駅 徒歩 17 分

いずみ野線「二俣川」駅 バス停「善部第3」まで 徒歩 4 分 バス利用 14分

横浜市旭区 善部町

5,180万円

4LDK

今週末モデルハウス見学会開催中!「二俣川」駅利用 新築一戸建て(A) 敷地面積50坪以上

相模鉄道線「二俣川」駅 バス停「ニュータウン第5」まで 徒歩 3 分 バス利用 8分

相模鉄道線「三ッ境」駅 バス停「ニュータウン第5」まで 徒歩 3 分 バス利用 9分

横浜市旭区 今宿町

5,190万円

4LDK

値下げしました!今週末見学会開催中!「二俣川」駅利用 新築一戸建て(14) カースペース2台 角地

相模鉄道線「二俣川」駅 徒歩 25 分

相模鉄道線「二俣川」駅 バス停「ニュータウン第5」まで 徒歩 4 分 バス利用 15分

横浜市旭区 今宿2丁目

5,380万円

4LDK

今週末モデルハウス見学会開催中!「希望ケ丘」駅徒歩14分 新築一戸建て(B) エコジョーズ

相模鉄道線「希望ヶ丘」駅 徒歩 14 分

いずみ野線「南万騎が原」駅 徒歩 13 分

横浜市旭区 南希望が丘

5,380万円

4LDK

お気軽にどうぞ!

資料請求 現地見学 電話でお問い合わせ
0120-046-690
来店予約