1. トップページ
  2. 建物完成しました! 今週末内覧会開催中!「希望ケ丘」駅徒歩5分 新築一戸建て(3) 床暖房

建物完成しました! 今週末内覧会開催中!「希望ケ丘」駅徒歩5分 新築一戸建て(3) 床暖房

価格
5,780万円
物件種別
新築一戸建て
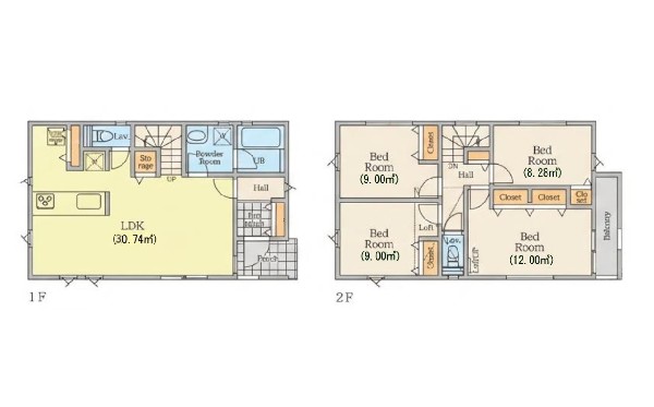
間取り
4LDK
所在地
横浜市旭区 東希望が丘
交通
  • 相模鉄道線「希望ヶ丘」駅 徒歩 5 分
  • いずみ野線「二俣川」駅 徒歩 22 分
土地面積
115.47㎡
建物面積
98.74㎡
  • 前回情報更新日 2026.05.28
  • 次回情報更新予定日 2026.06.11
資料請求 現地見学 電話でお問い合わせ
0120-046-690
間取図
間取図

この物件のココがオススメ!

相鉄本線「希望ケ丘」駅徒歩5分。緑豊かで閑静な住宅地。4LDKのゆとりの間取り。宅配ボックス、カップボード、食洗機、パントリー、床下収納、ロフト、床暖房等設備充実。

こだわりポイント

  • 道路狭い(4メートル未満)
  • 敷地延長(旗竿地)
  • 床暖房
  • 食器洗い洗浄乾燥機
  • 急行電車でスピード通勤
  • 子供の多い街に住む
  • 大人の二人暮らし
  • 2階建て住宅限定
  • リビングイン階段
  • LDKは2階に
  • 対面キッチン
  • ロフト・小屋裏収納
  • パントリー
  • 小学校10分以内
  • 有料道路インター2キロ以内
  • スーパー10分以内
  • コンビニ10分以内
  • 小児科医院10分以内
  • 保育園10分以内
  • 幼稚園10分以内
  • 公園10分以内
  • 都市ガス
  • フラット35利用可

お気軽にどうぞ!

資料請求 現地見学 電話でお問い合わせ
0120-046-690

地図

申し訳ありません
こちらは会員限定機能です

会員登録で利用できる6つの便利機能

詳しく見る

お気軽にどうぞ!

資料請求 現地見学 電話でお問い合わせ
0120-046-690

頭金0万円・金利0.495%の場合

ボーナス時(年2回)お支払額

0

この物件の月々のお支払額

161,895

年収に対する返済比率

65

  • ※会員登録し、詳細情報を記入されますと、全ての物件で自動的に金額が表示され、大変便利です。
  • ※まだ会員登録をされていない方は、下記チェック欄をご記入ください。
  • ※上記計算は物件価格5,780万円+諸経費 8%込みの金額による結果となります。
  • ※返済金額はあくまでも目安です。

お客様の条件からシミュレーションするには?

会員登録
マイページから登録

金利

直接入力する

ボーナス払い(年2回)

返済年数

頭金

直接入力する

 万円(半角数字)

年収

 万円(半角数字)
価格 5,780万円
物件種別 新築一戸建て
間取り 4LDK
所在地 横浜市旭区 東希望が丘
交通
  • 相模鉄道線「希望ヶ丘」駅 徒歩 5 分
  • いずみ野線「二俣川」駅 徒歩 22 分
土地面積 115.47㎡
建物面積 98.74㎡
学区 東希望が丘小学校、希望が丘中学校
用途地域 第一種低層住居専用
建ぺい率 50%
容積率 100%
地目 宅地
駐車場 有り カースペース
接道 東4m
権利 所有権
私道面積 有 0.27㎡
セットバック 無し
建物構造 木造
建物階数 2階
築年月 2026年01月
入居日 即時
都市計画 市街化区域
取引態様 仲介
物件番号 48428-3
設備 公営水道、公共下水、緑豊かな住宅地、閑静な住宅地、スーパーが近い(10分以内)、小学校徒歩10分以内、中学校徒歩10分以内、保育施設・幼稚園5分以内、公園5分以内、コンビニ5分以内、システムキッチン、ガス3口、食器洗い機付き、I型キッチン、パントリー(食器・食品の収納庫)、ユニットバス、追い焚き、ウォシュレット、トイレ2ヶ所、浴室に窓、暖房便座、バルコニー、2階建、ロフト、採光2面、全室2面採光、フローリング、リビング階段、クローゼット、収納、床下収納、下駄箱、全居室収納、シャンプドレッサー付き、フラット35Sに対応、モニタ付きインターフォン、インターフォン、24時間換気システム、建物10年保証
建築確認番号 -
特記事項 不整形地 宅地造成工事規制区域 高度地区 準防火地域 特別用途制限地域 日影制限 敷地面積最低限度 建物高さ10m以下 建築基準法第22条区域 横浜市建築基準条例第3条による制限有 建物建築・再建築の際、深基礎、基礎杭、擁壁の補修・再構築、外壁後退等の対策が必要となる場合があります 第2用途地域:第1種住居地域(建蔽率60%、容積率160%) 不整形地:有/宅地造成工事規制区域:有/高度地区:有/準防火地域:有/特別用途制限地域:有/日影制限:有/敷地面積最低限度:有/高さ限度:有/建築基準法第22条区域 横浜市建築基準条例第3条による制限有 建物建築・再建築の際、深基礎、基礎杭、擁壁の補修・再構築、外壁後退等の対策が必要となる場合があります 第2用途地域:第1種住居地域(建蔽率60%、容積率160%)。 /
備考 相鉄本線「希望ケ丘」駅徒歩5分。緑豊かで閑静な住宅地。4LDKのゆとりの間取り。宅配ボックス、カップボード、食洗機、パントリー、床下収納、ロフト、床暖房等設備充実。

お気軽にどうぞ!

資料請求 現地見学 電話でお問い合わせ
0120-046-690

このエリアでお探しの方へ

今週末モデルハウス見学会開催中!「二俣川」駅利用 新築一戸建て(B) 敷地面積50坪以上

相模鉄道線「二俣川」駅 バス停「ニュータウン第5」まで 徒歩 3 分 バス利用 8分

相模鉄道線「三ッ境」駅 バス停「ニュータウン第5」まで 徒歩 3 分 バス利用 9分

横浜市旭区 今宿町

5,590万円

4LDK

今週末モデルハウス見学会開催中!「二俣川」駅利用 新築一戸建て(1) 長期優良住宅

いずみ野線「二俣川」駅 バス停「左近山第6」まで 徒歩 2 分 バス利用 21分

横須賀線「東戸塚」駅 バス停「環2市沢上町」まで 徒歩 3 分 バス利用 12分

横浜市旭区 市沢町

5,680万円

4LDK

今週末モデルハウス見学会開催中!「鶴ケ峰」駅徒歩8分 新築一戸建て(4) エコジョーズ

相模鉄道線「鶴ヶ峰」駅 徒歩 8 分

相模鉄道線「二俣川」駅 徒歩 25 分

横浜市旭区 鶴ケ峰2丁目

5,680万円

2LDK+2S

今週末モデルハウス見学会開催中!「三ツ境」駅利用 新築一戸建て 南東角地 WIC完備

相模鉄道線「三ッ境」駅 バス停「岸本」まで 徒歩 5 分 バス利用 4分

いずみ野線「二俣川」駅 バス停「ニュータウン第7」まで 徒歩 5 分 バス利用 9分

横浜市旭区 金が谷2丁目

5,780万円

4LDK

今週末モデルハウス見学会開催中!「鶴ケ峰」駅徒歩8分 新築一戸建て(2) エコジョーズ

相模鉄道線「鶴ヶ峰」駅 徒歩 8 分

相模鉄道線「二俣川」駅 徒歩 25 分

横浜市旭区 鶴ケ峰2丁目

5,880万円

2LDK+2S

今週末モデルハウス見学会開催中!「東戸塚」駅利用 新築一戸建て 全室南西向き

横須賀線「東戸塚」駅 バス停「新桜ケ丘保育園」まで 徒歩 7 分 バス利用 10分

相模鉄道線「二俣川」駅 バス停「左近山第5」まで 徒歩 11 分 バス利用 14分

横浜市保土ケ谷区 新桜ケ丘2丁目

5,890万円

4LDK

今週末モデルハウス見学会開催中!「希望ケ丘」駅徒歩14分 新築一戸建て(A) エコジョーズ

相模鉄道線「希望ヶ丘」駅 徒歩 14 分

いずみ野線「南万騎が原」駅 徒歩 13 分

横浜市旭区 南希望が丘

5,980万円

4LDK

今週末モデルハウス見学会開催中!「希望ケ丘」駅徒歩13分 新築一戸建て カースペース2台

相模鉄道線「希望ヶ丘」駅 徒歩 13 分

相模鉄道線「三ッ境」駅 徒歩 19 分

横浜市旭区 今宿町

5,980万円

4LDK

今週末モデルハウス見学会開催中!「二俣川」駅徒歩9分 新築一戸建て エコジョーズ

相模鉄道線「二俣川」駅 徒歩 9 分

横須賀線「東戸塚」駅 バス停「二俣川駅南口」まで 徒歩 13 分 バス利用 50分

横浜市旭区 二俣川1丁目

5,980万円

3LDK

今週末モデルハウス見学会開催中!「二俣川」駅利用 新築一戸建て 床暖房 エコジョーズ

相模鉄道線「二俣川」駅 バス停「ニュータウン第5」まで 徒歩 2 分 バス利用 8分

相模鉄道線「三ッ境」駅 バス停「ニュータウン第5」まで 徒歩 1 分 バス利用 9分

横浜市旭区 今宿2丁目

5,999万円

4LDK

今週末内覧会開催中!「二俣川」駅徒歩15分 中古一戸建て 全居室6帖以上

相模鉄道線「二俣川」駅 徒歩 15 分

相模鉄道線「鶴ヶ峰」駅 徒歩 22 分

横浜市旭区 四季美台

3,499万円

3LDK

建物完成しました! 今週末内覧会開催中!「南万騎が原」駅利用 新築一戸建て(4)リビング階段

いずみ野線「南万騎が原」駅 徒歩 11 分

相模鉄道線「二俣川」駅 徒歩 14 分

横浜市旭区 さちが丘

3,980万円

2SLDK

お気軽にどうぞ!

資料請求 現地見学 電話でお問い合わせ
0120-046-690
来店予約