1. トップページ
  2. 今週末モデルハウス見学会開催中!「西谷」駅徒歩12分 新築一戸建て(9)ビルトイン車庫

今週末モデルハウス見学会開催中!「西谷」駅徒歩12分 新築一戸建て(9)ビルトイン車庫

価格
4,388万円
物件種別
新築一戸建て
間取り
1LDK+3S
所在地
横浜市保土ケ谷区 川島町
交通
  • 相模鉄道線「西谷」駅 徒歩 12 分
  • 東海道本線「横浜」駅 バス停「川島町」まで 徒歩 8 分 バス利用 17分
土地面積
53.88㎡
建物面積
110.85㎡
  • 前回情報更新日 2026.02.19
  • 次回情報更新予定日 2026.03.05
資料請求 現地見学 電話でお問い合わせ
0120-046-690
外観:前面道路は歩道がしっかりありますので、空間が開けており開放感があります。大通りに面していますが交通量はそこまで多くないので、落ち着いた生活が送れそうです!
外観:前面道路は歩道がしっかりありますので、空間が開けており開放感があります。大通りに面していますが交通量はそこまで多くないので、落ち着いた生活が送れそうです!
間取り:9号棟間取図
間取り:9号棟間取図
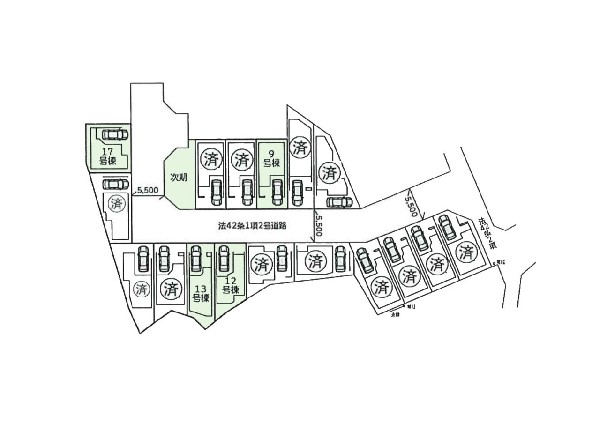
区画図
区画図
外観:毎日のお散歩も快適な緑に恵まれたエリアは伸び伸びスローライフを叶えてくれます。自然豊富な季節の移ろいを身近に感じられる環境でストレスフリーな生活をお送りください。
外観:毎日のお散歩も快適な緑に恵まれたエリアは伸び伸びスローライフを叶えてくれます。自然豊富な季節の移ろいを身近に感じられる環境でストレスフリーな生活をお送りください。
外観:気持ちの良い一日の始まりは笑顔でスタートしたいですよね。玄関ホールがスッキリ広々としていると帰る時も出ていく時も気持ちが良いものです!
外観:気持ちの良い一日の始まりは笑顔でスタートしたいですよね。玄関ホールがスッキリ広々としていると帰る時も出ていく時も気持ちが良いものです!
外観:駅近でありながら周辺は住宅地となっており子育て家族にもピッタリ。毎日のお買い物も便利なエリアで暮らしやすさを実現するための住環境が整っています。
外観:駅近でありながら周辺は住宅地となっており子育て家族にもピッタリ。毎日のお買い物も便利なエリアで暮らしやすさを実現するための住環境が整っています。
外観:目の前に広がる開放感とゆとり、暮らしの夢を育む理想の住まいがここにはあります。堂々とした姿で完成したこの住宅は見る人を魅了してくれる高級感があります!
外観:目の前に広がる開放感とゆとり、暮らしの夢を育む理想の住まいがここにはあります。堂々とした姿で完成したこの住宅は見る人を魅了してくれる高級感があります!
外観:目の前に広がる開放感とゆとり、暮らしの夢を育む理想の住まいがここにはあります。堂々とした姿で完成したこの住宅は見る人を魅了してくれる高級感があります!
外観:目の前に広がる開放感とゆとり、暮らしの夢を育む理想の住まいがここにはあります。堂々とした姿で完成したこの住宅は見る人を魅了してくれる高級感があります!
外観:前面道路は歩道がしっかりありますので、空間が開けており開放感があります。大通りに面していますが交通量はそこまで多くないので、落ち着いた生活が送れそうです!
外観:前面道路は歩道がしっかりありますので、空間が開けており開放感があります。大通りに面していますが交通量はそこまで多くないので、落ち着いた生活が送れそうです!
周辺環境:サミットストア上星川店(サミットストア上星川店まで800m)
周辺環境:サミットストア上星川店(サミットストア上星川店まで800m)
周辺環境:マルエツ西谷店(マルエツ西谷店まで950m)
周辺環境:マルエツ西谷店(マルエツ西谷店まで950m)
周辺環境:陣ヶ下渓谷公園(陣ヶ下渓谷公園まで180m)
周辺環境:陣ヶ下渓谷公園(陣ヶ下渓谷公園まで180m)
周辺環境:横浜市立西谷中学校(横浜市立西谷中学校まで1000m)
周辺環境:横浜市立西谷中学校(横浜市立西谷中学校まで1000m)
周辺環境:横浜市立川島小学校(横浜市立川島小学校まで550m)
周辺環境:横浜市立川島小学校(横浜市立川島小学校まで550m)
周辺環境:上星川幼稚園(上星川幼稚園まで1300m)
周辺環境:上星川幼稚園(上星川幼稚園まで1300m)
周辺環境:川島町公園(川島町公園まで250m)
周辺環境:川島町公園(川島町公園まで250m)
周辺環境:川島保育園(川島保育園まで350m)
周辺環境:川島保育園(川島保育園まで350m)
周辺環境:相模鉄道西谷駅(相模鉄道西谷駅まで1200m)
周辺環境:相模鉄道西谷駅(相模鉄道西谷駅まで1200m)

この物件のココがオススメ!

相鉄本線「西谷」駅から徒歩12分。プライバシーに配慮した2階リビング。ペアガラス他、設備充実。納戸もお部屋としてご利用いただけます。

こだわりポイント

  • 断熱に配慮された建物
  • 食器洗い洗浄乾燥機
  • 浴室換気乾燥暖房機
  • 自然を感じる暮らし
  • リビングイン階段
  • LDKは2階に
  • LDK20帖以上
  • 対面キッチン
  • 小学校10分以内
  • 大規模公園10分以内
  • スーパー10分以内
  • 保育園10分以内
  • 公園10分以内
  • 都市ガス
  • 屋根付きカースペース
  • 道路広々(5m以上)
  • 南道路限定

お気軽にどうぞ!

資料請求 現地見学 電話でお問い合わせ
0120-046-690

地図

申し訳ありません
こちらは会員限定機能です

会員登録で利用できる6つの便利機能

詳しく見る

お気軽にどうぞ!

資料請求 現地見学 電話でお問い合わせ
0120-046-690

頭金0万円・金利0.495%の場合

ボーナス時(年2回)お支払額

0

この物件の月々のお支払額

122,912

年収に対する返済比率

49

  • ※会員登録し、詳細情報を記入されますと、全ての物件で自動的に金額が表示され、大変便利です。
  • ※まだ会員登録をされていない方は、下記チェック欄をご記入ください。
  • ※上記計算は物件価格4,388万円+諸経費 8%込みの金額による結果となります。
  • ※返済金額はあくまでも目安です。

お客様の条件からシミュレーションするには?

会員登録
マイページから登録

金利

直接入力する

ボーナス払い(年2回)

返済年数

頭金

直接入力する

 万円(半角数字)

年収

 万円(半角数字)

約800m

スーパー

周辺環境:サミットストア上星川店(サミットストア上星川店まで800m)

スーパー

約800m

約950m

スーパー

周辺環境:マルエツ西谷店(マルエツ西谷店まで950m)

スーパー

約950m

約180m

公園

周辺環境:陣ヶ下渓谷公園(陣ヶ下渓谷公園まで180m)

公園

約180m

約1,000m

中学校

周辺環境:横浜市立西谷中学校(横浜市立西谷中学校まで1000m)

中学校

約1,000m

約550m

小学校

周辺環境:横浜市立川島小学校(横浜市立川島小学校まで550m)

小学校

約550m

約1,300m

幼稚園・保育園

周辺環境:上星川幼稚園(上星川幼稚園まで1300m)

幼稚園・保育園

約1,300m

約250m

公園

周辺環境:川島町公園(川島町公園まで250m)

公園

約250m

約350m

幼稚園・保育園

周辺環境:川島保育園(川島保育園まで350m)

幼稚園・保育園

約350m

約1,200m

周辺環境:相模鉄道西谷駅(相模鉄道西谷駅まで1200m)

約1,200m

価格 4,388万円
物件種別 新築一戸建て
間取り 1LDK+3S
所在地 横浜市保土ケ谷区 川島町
交通
  • 相模鉄道線「西谷」駅 徒歩 12 分
  • 東海道本線「横浜」駅 バス停「川島町」まで 徒歩 8 分 バス利用 17分
土地面積 53.88㎡
建物面積 110.85㎡
学区 川島小学校、西谷中学校
用途地域 第一種住居
建ぺい率 60%
容積率 200%
地目 宅地
駐車場 有り ビルトイン車庫 駐車場面積:12.78㎡
接道 南5.5m
権利 所有権
私道面積 無し
セットバック 無し
建物構造 木造
建物階数 3階
築年月 2026年05月
入居日 2026年06月
都市計画 市街化区域
取引態様 仲介
物件番号 47529-9
設備 公営水道、公共下水、ビルトインガレージ、駐車場1台、閑静な住宅地、南側道路面す、スーパーが近い(10分以内)、2沿線以上利用可、小学校徒歩10分以内、保育施設・幼稚園5分以内、公園5分以内、システムキッチン、ガス3口、L型キッチン、ユニットバス、追い焚き、浴室乾燥機、ウォシュレット、トイレ2ヶ所、浴室に窓、暖房便座、浴室暖房、バルコニー2面、南面バルコニー、3階建以上、LDK20畳以上、採光2面、採光3面、全室フローリング、リビング階段、クローゼット、収納、下駄箱、全居室収納、シャンプドレッサー付き、フラット35Sに対応、モニタ付きインターフォン、複層ガラス、全居室複層ガラスか複層サッシ、24時間換気システム、建物10年保証
建築確認番号 第25KAK建確02903号
特記事項 宅地造成工事規制区域 高度地区 準防火地域 日影制限 建築基準法第22条区域 建物面積に車庫面積12.78平米含 別途私道通行承諾書有り 宅地造成工事規制区域:有/高度地区:有/準防火地域:有/日影制限:有/建築基準法第22条区域 建物面積に車庫面積12.78平米含 別途私道通行承諾書有り。 /
備考 相鉄本線「西谷」駅から徒歩12分。プライバシーに配慮した2階リビング。ペアガラス他、設備充実。納戸もお部屋としてご利用いただけます。

お気軽にどうぞ!

資料請求 現地見学 電話でお問い合わせ
0120-046-690

このエリアでお探しの方へ

値下げしました!今週末モデルハウス見学会開催! 「上星川」駅利用 新築一戸建て(2)カースペース2台

相模鉄道線「上星川」駅 徒歩 19 分

相模鉄道線「西谷」駅 徒歩 25 分

横浜市保土ケ谷区 川島町

4,180万円

3LDK

今週末モデルハウス見学会開催中!「西谷」駅徒歩12分 新築一戸建て(12)ビルトイン車庫

相模鉄道線「西谷」駅 徒歩 12 分

東海道本線「横浜」駅 バス停「川島町」まで 徒歩 8 分 バス利用 17分

横浜市保土ケ谷区 川島町

4,188万円

2LDK+2S

今週末モデルハウス見学会開催中!「西谷」駅徒歩12分 新築一戸建て(13)ビルトイン車庫

相模鉄道線「西谷」駅 徒歩 12 分

東海道本線「横浜」駅 バス停「川島町」まで 徒歩 8 分 バス利用 17分

横浜市保土ケ谷区 川島町

4,188万円

2LDK+2S

値下げしました! 「西谷」駅利用 新築一戸建て(4) 対面キッチン

相模鉄道線「西谷」駅 徒歩 21 分

東海道本線「横浜」駅 バス停「中田」まで 徒歩 2 分 バス利用 25分

横浜市保土ケ谷区 上菅田町

4,280万円

4LDK

今週末モデルハウス見学会開催中!「西谷」駅利用 新築一戸建て(2)パントリー・SIC完備

相模鉄道線「西谷」駅 徒歩 25 分

横浜線「鴨居」駅 バス停「新井町」まで 徒歩 3 分 バス利用 15分

横浜市保土ケ谷区 新井町

4,280万円

4LDK

今週末モデルハウス見学会開催中!「西谷」駅徒歩12分 新築一戸建て(17)ビルトイン車庫

相模鉄道線「西谷」駅 徒歩 12 分

東海道本線「横浜」駅 バス停「川島町」まで 徒歩 8 分 バス利用 17分

横浜市保土ケ谷区 川島町

4,288万円

4LDK

値下げしました! 「西谷」駅利用 新築一戸建て(1) 対面キッチン

相模鉄道線「西谷」駅 徒歩 21 分

東海道本線「横浜」駅 バス停「中田」まで 徒歩 2 分 バス利用 25分

横浜市保土ケ谷区 上菅田町

4,480万円

4LDK

今週末モデルハウス見学会開催中!「西谷」駅利用 新築一戸建て(1)パントリー・SIC完備

相模鉄道線「西谷」駅 徒歩 25 分

横浜線「鴨居」駅 バス停「新井町」まで 徒歩 3 分 バス利用 15分

横浜市保土ケ谷区 新井町

4,580万円

3LDK

今週末モデルハウス見学会開催中!「鶴ケ峰」駅利用 新築一戸建て(2) エコジョーズ

相模鉄道線「鶴ヶ峰」駅 徒歩 18 分

相鉄新横浜線「西谷」駅 バス停「金草沢」まで 徒歩 13 分 バス利用 7分

横浜市旭区 白根6丁目

4,580万円

2LDK+2S

今週末モデルハウス見学会開催中!「鶴ケ峰」駅利用 新築一戸建て(1) エコジョーズ

相模鉄道線「鶴ヶ峰」駅 徒歩 18 分

相鉄新横浜線「西谷」駅 バス停「金草沢」まで 徒歩 13 分 バス利用 7分

横浜市旭区 白根6丁目

4,580万円

3LDK

値下げしました!今週末モデルハウス見学会開催中!「鶴ケ峰」駅利用 新築一戸建て 全室2面採光

相模鉄道線「鶴ヶ峰」駅 バス停「白根台第2」まで 徒歩 4 分 バス利用 11分

相鉄新横浜線「西谷」駅 バス停「金草沢」まで 徒歩 6 分 バス利用 7分

横浜市旭区 白根8丁目

4,590万円

4LDK

今週末モデルハウス見学会開催中!「西谷」駅利用 新築一戸建て(2) WIC

相模鉄道線「西谷」駅 徒歩 19 分

東急新横浜線「新横浜」駅 バス停「上菅田東部公園」まで 徒歩 4 分 バス利用 20分

横浜市保土ケ谷区 上菅田町

4,780万円

4LDK

お気軽にどうぞ!

資料請求 現地見学 電話でお問い合わせ
0120-046-690
来店予約