1. トップページ
  2. 今週末モデルハウス見学会開催中!「下飯田」駅利用 新築一戸建て エコジョーズ

今週末モデルハウス見学会開催中!「下飯田」駅利用 新築一戸建て エコジョーズ

価格
4,680万円
物件種別
新築一戸建て
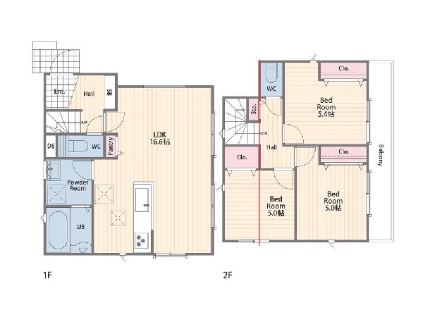
間取り
2SLDK
所在地
横浜市泉区 下和泉2丁目
交通
  • ブルーライン「下飯田」駅 徒歩 17 分
  • いずみ野線「ゆめが丘」駅 徒歩 23 分
土地面積
94.37㎡
建物面積
92.74㎡
  • 前回情報更新日 2026.02.19
  • 次回情報更新予定日 2026.03.05
資料請求 現地見学 電話でお問い合わせ
0120-046-690
間取図
間取図

この物件のココがオススメ!

BL「下飯田」駅徒歩圏。閑静な住宅地。全室2面採光で通風良好。陽の光を取り込みやすい2階リビング。会話が弾む対面キッチン。納戸も居室としてご利用可能。

こだわりポイント

  • 省エネに配慮された建物
  • 大人の二人暮らし
  • 2階建て住宅限定
  • リビングイン階段
  • LDKは2階に
  • LDK18帖以上
  • 対面キッチン
  • 小学校10分以内
  • 大規模公園10分以内
  • スーパー10分以内
  • コンビニ10分以内
  • 公園10分以内
  • 都市ガス
  • カースペース2台

お気軽にどうぞ!

資料請求 現地見学 電話でお問い合わせ
0120-046-690

地図

申し訳ありません
こちらは会員限定機能です

会員登録で利用できる6つの便利機能

詳しく見る

お気軽にどうぞ!

資料請求 現地見学 電話でお問い合わせ
0120-046-690

頭金0万円・金利0.495%の場合

ボーナス時(年2回)お支払額

0

この物件の月々のお支払額

131,082

年収に対する返済比率

52

  • ※会員登録し、詳細情報を記入されますと、全ての物件で自動的に金額が表示され、大変便利です。
  • ※まだ会員登録をされていない方は、下記チェック欄をご記入ください。
  • ※上記計算は物件価格4,680万円+諸経費 8%込みの金額による結果となります。
  • ※返済金額はあくまでも目安です。

お客様の条件からシミュレーションするには?

会員登録
マイページから登録

金利

直接入力する

ボーナス払い(年2回)

返済年数

頭金

直接入力する

 万円(半角数字)

年収

 万円(半角数字)
価格 4,680万円
物件種別 新築一戸建て
間取り 2SLDK
所在地 横浜市泉区 下和泉2丁目
交通
  • ブルーライン「下飯田」駅 徒歩 17 分
  • いずみ野線「ゆめが丘」駅 徒歩 23 分
土地面積 94.37㎡
建物面積 92.74㎡
学区 下和泉小学校、泉が丘中学校
用途地域 第一種低層住居専用
建ぺい率 50%
容積率 100%
地目 宅地
駐車場 有り カースペース
接道 西4.4m
権利 所有権
私道面積 無し
セットバック 無し
建物構造 木造
建物階数 2階
築年月 2026年02月
入居日 2026年03月
都市計画 市街化区域
取引態様 仲介
物件番号 48390
設備 公営水道、公共下水、駐車場2台以上、緑豊かな住宅地、閑静な住宅地、2沿線以上利用可、小学校徒歩10分以内、システムキッチン、I型キッチン、ユニットバス、追い焚き、ウォシュレット、トイレ2ヶ所、浴室に窓、暖房便座、2階建、LDK18畳以上、採光2面、全室2面採光、フローリング、リビング階段、クローゼット、収納、全居室収納、シャンプドレッサー付き、モニタ付きインターフォン、インターフォン、24時間換気システム、建物10年保証
建築確認番号 第2025SBC-確01467H号
特記事項 宅地造成工事規制区域 高度地区 準防火地域 日影制限 敷地面積最低限度 建物高さ10m以下 建築基準法第22条区域 過小宅地 宅地造成工事規制区域:有/高度地区:有/準防火地域:有/日影制限:有/敷地面積最低限度:有/高さ限度:有/建築基準法第22条区域 過小宅地。 /
備考 BL「下飯田」駅徒歩圏。閑静な住宅地。全室2面採光で通風良好。陽の光を取り込みやすい2階リビング。会話が弾む対面キッチン。納戸も居室としてご利用可能。

お気軽にどうぞ!

資料請求 現地見学 電話でお問い合わせ
0120-046-690

このエリアでお探しの方へ

今週末モデルハウス見学会開催中!「ゆめが丘」駅利用 新築一戸建て(C) 小屋裏収納付き

いずみ野線「ゆめが丘」駅 バス停「富士見ケ丘入口」まで 徒歩 2 分 バス利用 9分

東海道本線「戸塚」駅 バス停「二軒家」まで 徒歩 12 分 バス利用 13分

横浜市戸塚区 深谷町

4,380万円

4LDK

今週末モデルハウス見学会開催中!「下飯田」駅利用 新築一戸建て 小屋裏収納 ペアガラス

ブルーライン「下飯田」駅 バス停「アカシア公園入口」まで 徒歩 1 分 バス利用 4分

いずみ野線「ゆめが丘」駅 バス停「アカシア公園入口」まで 徒歩 1 分 バス利用 6分

横浜市戸塚区 深谷町

4,580万円

4LDK

値下げしました! 「下飯田」駅利用 新築一戸建て(2)南西角地 平屋建て

ブルーライン「下飯田」駅 バス停「いずみ台」まで 徒歩 9 分 バス利用 4分

いずみ野線「ゆめが丘」駅 バス停「いずみ台」まで 徒歩 9 分 バス利用 6分

横浜市泉区 下和泉3丁目

4,980万円

3LDK

値下げしました! 「弥生台」駅徒歩13分 新築一戸建て(20) ルーフバルコニー

いずみ野線「弥生台」駅 徒歩 13 分

いずみ野線「緑園都市」駅 徒歩 23 分

横浜市泉区 新橋町

4,380万円

4LDK

値下げしました! 「弥生台」駅徒歩13分 新築一戸建て(21) ルーフバルコニー

いずみ野線「弥生台」駅 徒歩 13 分

いずみ野線「緑園都市」駅 徒歩 23 分

横浜市泉区 新橋町

4,480万円

4LDK

今週末モデルハウス見学会開催中!「いずみ中央」駅利用 新築一戸建て(1)パントリー完備

いずみ野線「いずみ中央」駅 バス停「池ノ上」まで 徒歩 6 分 バス利用 7分

江ノ島線「長後」駅 バス停「小学校前」まで 徒歩 2 分 バス利用 9分

横浜市泉区 上飯田町

4,480万円

3LDK

値下げしました! 「緑園都市」駅利用 新築一戸建て カースペース2台

いずみ野線「緑園都市」駅 徒歩 17 分

東海道本線「戸塚」駅 バス停「岡津橋」まで 徒歩 4 分 バス利用 16分

横浜市泉区 岡津町

4,580万円

4LDK

今週末モデルハウス見学会開催中!「立場」駅利用 新築一戸建て パントリー完備 ワイドバルコニー付き

ブルーライン「立場」駅 徒歩 12 分

いずみ野線「いずみ中央」駅 徒歩 21 分

横浜市泉区 和泉が丘2丁目

4,690万円

3LDK

値下げしました! 「弥生台」駅徒歩13分 新築一戸建て(22) ルーフバルコニー

いずみ野線「弥生台」駅 徒歩 13 分

いずみ野線「緑園都市」駅 徒歩 23 分

横浜市泉区 新橋町

4,880万円

4LDK

今週末モデルハウス見学会開催中!「いずみ中央」駅利用 新築一戸建て(2)パントリー完備

いずみ野線「いずみ中央」駅 バス停「池ノ上」まで 徒歩 6 分 バス利用 7分

江ノ島線「長後」駅 バス停「小学校前」まで 徒歩 2 分 バス利用 9分

横浜市泉区 上飯田町

4,880万円

3LDK

値下げしました! 「弥生台」駅徒歩8分 未入居中古一戸建て カースペース2台

いずみ野線「弥生台」駅 徒歩 8 分

東海道本線「戸塚」駅 バス停「新橋町」まで 徒歩 5 分 バス利用 20分

横浜市泉区 新橋町

4,980万円

4LDK

値下げしました! 「弥生台」駅徒歩13分 新築一戸建て(23) 角地

いずみ野線「弥生台」駅 徒歩 13 分

いずみ野線「緑園都市」駅 徒歩 23 分

横浜市泉区 新橋町

4,980万円

4LDK

お気軽にどうぞ!

資料請求 現地見学 電話でお問い合わせ
0120-046-690
来店予約