1. トップページ
  2. 今週末モデルハウス見学会開催中!「東戸塚」駅利用 新築一戸建て(2)SIC・パントリー完備

今週末モデルハウス見学会開催中!「東戸塚」駅利用 新築一戸建て(2)SIC・パントリー完備

価格
4,090万円
物件種別
新築一戸建て
間取り
4LDK
所在地
横浜市戸塚区 上矢部町
交通
  • 横須賀線「東戸塚」駅 バス停「富士山下」まで 徒歩 5 分 バス利用 8分
  • ブルーライン「戸塚」駅 バス停「富士山下」まで 徒歩 4 分 バス利用 18分
土地面積
89.32㎡
建物面積
96.05㎡
  • 前回情報更新日 2026.02.12
  • 次回情報更新予定日 2026.02.26
資料請求 現地見学 電話でお問い合わせ
0120-046-690
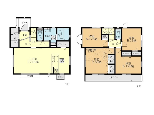
間取り:2号棟間取図
間取り:2号棟間取図
区画図
区画図

この物件のココがオススメ!

JR横須賀線「東戸塚」駅利用。緑豊かで、閑静な住環境。収納に心強いSIC・パントリー完備。全居室収納有。ご家族との会話が弾む対面キッチン。

こだわりポイント

  • 大人の二人暮らし
  • LDKは1階に
  • 2階建て住宅限定
  • シューズインクローク
  • LDK15帖以上
  • 対面キッチン
  • パントリー
  • 有料道路インター2キロ以内
  • スーパー10分以内
  • コンビニ10分以内
  • 保育園10分以内
  • 幼稚園10分以内
  • 公園10分以内
  • 都市ガス
  • 南道路限定

お気軽にどうぞ!

資料請求 現地見学 電話でお問い合わせ
0120-046-690

地図

申し訳ありません
こちらは会員限定機能です

会員登録で利用できる6つの便利機能

詳しく見る

お気軽にどうぞ!

資料請求 現地見学 電話でお問い合わせ
0120-046-690

頭金0万円・金利0.495%の場合

ボーナス時(年2回)お支払額

0

この物件の月々のお支払額

114,561

年収に対する返済比率

46

  • ※会員登録し、詳細情報を記入されますと、全ての物件で自動的に金額が表示され、大変便利です。
  • ※まだ会員登録をされていない方は、下記チェック欄をご記入ください。
  • ※上記計算は物件価格4,090万円+諸経費 8%込みの金額による結果となります。
  • ※返済金額はあくまでも目安です。

お客様の条件からシミュレーションするには?

会員登録
マイページから登録

金利

直接入力する

ボーナス払い(年2回)

返済年数

頭金

直接入力する

 万円(半角数字)

年収

 万円(半角数字)
価格 4,090万円
物件種別 新築一戸建て
間取り 4LDK
所在地 横浜市戸塚区 上矢部町
交通
  • 横須賀線「東戸塚」駅 バス停「富士山下」まで 徒歩 5 分 バス利用 8分
  • ブルーライン「戸塚」駅 バス停「富士山下」まで 徒歩 4 分 バス利用 18分
土地面積 89.32㎡
建物面積 96.05㎡
学区 名瀬小学校、名瀬中学校
用途地域 準工業
建ぺい率 60%
容積率 200%
地目 宅地
駐車場 有り カースペース
接道 南4.5m
権利 所有権
私道面積 無し
セットバック 無し
建物構造 木造
建物階数 2階
築年月 2026年03月
入居日 2026年04月
都市計画 市街化区域
取引態様 仲介
物件番号 48323-2
設備 公営水道、公共下水、駐車場1台、緑豊かな住宅地、閑静な住宅地、角地、南側道路面す、スーパーが近い(10分以内)、2沿線以上利用可、保育施設・幼稚園5分以内、公園5分以内、システムキッチン、ガス3口、I型キッチン、パントリー(食器・食品の収納庫)、ユニットバス、追い焚き、ウォシュレット、トイレ2ヶ所、浴室に窓、暖房便座、バルコニー、南面バルコニー、2階建、LDK18畳以上、全室2面採光、フローリング、クローゼット、収納、全居室収納、シャンプドレッサー付き、フラット35Sに対応、モニタ付きインターフォン、24時間換気システム、建物10年保証
建築確認番号 第25KAK建確02484号
特記事項 不整形地 宅地造成工事規制区域 急傾斜地崩壊危険区域 高度地区 日影制限 敷地内段差 建築基準法第22条区域 土砂災害警戒区域 地役権設定27.88平米有り 不整形地:有/宅地造成工事規制区域:有/急傾斜地崩壊危険区域:有/高度地区:有/日影制限:有/敷地内段差:有/建築基準法第22条区域 土砂災害警戒区域 地役権設定27.88平米有り。 /
備考 JR横須賀線「東戸塚」駅利用。緑豊かで、閑静な住環境。収納に心強いSIC・パントリー完備。全居室収納有。ご家族との会話が弾む対面キッチン。

お気軽にどうぞ!

資料請求 現地見学 電話でお問い合わせ
0120-046-690

このエリアでお探しの方へ

建物完成しました! 今週末内覧会開催中!「保土ヶ谷」駅利用 新築一戸建て(3) 南道路に接道

横須賀線「保土ヶ谷」駅 バス停「法泉下」まで 徒歩 2 分 バス利用 13分

相模鉄道線「二俣川」駅 バス停「法泉下」まで 徒歩 2 分 バス利用 29分

横浜市保土ケ谷区 法泉3丁目

3,790万円

4LDK

建物完成しました!今週末内覧会開催中!「茅ヶ崎」駅利用 新築一戸建て

東海道本線「茅ヶ崎」駅 徒歩 24 分

相模線「茅ヶ崎」駅 バス停「町屋」まで 徒歩 7 分 バス利用 5分

茅ヶ崎市 浜之郷

3,790万円

4LDK

今週末モデルハウス見学会開催中!「茅ヶ崎」駅利用 新築一戸建て(2)

東海道本線「茅ヶ崎」駅 バス停「今宿」まで 徒歩 6 分 バス利用 9分

湘南新宿高「平塚」駅 バス停「今宿」まで 徒歩 6 分 バス利用 10分

茅ヶ崎市 今宿

3,790万円

4LDK

値下げしました!今週末見学会開催中!「上大岡」駅利用 新築一戸建て 閑静な住環境

京浜急行本線「上大岡」駅 バス停「桜台」まで 徒歩 11 分 バス利用 3分

ブルーライン「上大岡」駅 バス停「桜台」まで 徒歩 11 分 バス利用 3分

横浜市港南区 東永谷3丁目

3,790万円

2SLDK

今週末モデルハウス見学会開催中!「瀬谷」駅利用 新築一戸建て(C) カースペース2台

相模鉄道線「瀬谷」駅 バス停「上瀬谷小学校入口」まで 徒歩 5 分 バス利用 8分

江ノ島線「鶴間」駅 バス停「上瀬谷小学校入口」まで 徒歩 4 分 バス利用 11分

横浜市瀬谷区 上瀬谷町

3,790万円

4LDK

今週末モデルハウス見学会開催中!京急「弘明寺」駅利用 新築一戸建て(A) 角地

京浜急行本線「弘明寺」駅 バス停「こども医療センター」まで 徒歩 4 分 バス利用 8分

横須賀線「東戸塚」駅 バス停「こども医療センター」まで 徒歩 4 分 バス利用 16分

横浜市南区 六ツ川2丁目

3,790万円

3LDK

建物完成しました!今週末内覧会開催中!「逗子」駅利用 新築一戸建て(C)

横須賀線「逗子」駅 徒歩 17 分

逗子線「逗子・葉山」駅 徒歩 23 分

逗子市 久木9丁目

3,790万円

3LDK

横浜市緑区いぶき野 中古一戸建 3799万円

田園都市線「田奈」駅 徒歩 13 分

横浜線「長津田」駅 徒歩 18 分

横浜市緑区 いぶき野

3,799万円

4LDK

川崎市麻生区多摩美2丁目 中古一戸建 3799万円

小田急線「読売ランド前」駅 徒歩 14 分

川崎市麻生区 多摩美2丁目

3,799万円

3LDK

川崎市多摩区菅馬場1丁目 中古一戸建 3799万円

南武線「稲田堤」駅 徒歩 11 分

京王相模原線「京王稲田堤」駅 徒歩 14 分

川崎市多摩区 菅馬場1丁目

3,799万円

3LDK

今週末モデルハウス見学会開催中!「瀬谷」駅利用 新築一戸建て 小屋裏収納

相模鉄道線「瀬谷」駅 バス停「竹村町」まで 徒歩 4 分 バス利用 9分

江ノ島線「鶴間」駅 バス停「竹村町」まで 徒歩 3 分 バス利用 12分

横浜市瀬谷区 竹村町

3,850万円

4LDK

建物完成しました!今週末内覧会開催中!「香川」駅徒歩7分 新築一戸建て(8)

相模線「香川」駅 徒歩 7 分

東海道本線「茅ヶ崎」駅 バス停「香川駅入口」まで 徒歩 10 分 バス利用 14分

茅ヶ崎市 香川5丁目

3,880万円

2SLDK

お気軽にどうぞ!

資料請求 現地見学 電話でお問い合わせ
0120-046-690
来店予約