1. トップページ
  2. 今週末モデルハウス見学会開催中!「金沢文庫」駅利用 新築一戸建て(2) 長期優良住宅

今週末モデルハウス見学会開催中!「金沢文庫」駅利用 新築一戸建て(2) 長期優良住宅

価格
6,980万円
物件種別
新築一戸建て
間取り
4LDK
所在地
横浜市金沢区 釜利谷東5丁目
交通
  • 京浜急行本線「金沢文庫」駅 徒歩 19 分
  • 京浜急行本線「金沢文庫」駅 バス停「神明前」まで 徒歩 2 分 バス利用 5分
土地面積
197.68㎡
建物面積
104.16㎡
  • 前回情報更新日 2026.01.20
  • 次回情報更新予定日 2026.02.03
資料請求 現地見学 電話でお問い合わせ
0120-046-690
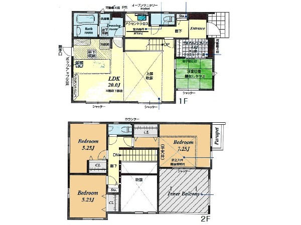
間取り:間取図2号棟
間取り:間取図2号棟
区画図
区画図

この物件のココがオススメ!

京急線「金沢文庫」駅利用。全室2面採光なので、明るく通風良好なお住まいです。リビングは開放的な吹抜け。食洗機・浴室乾燥機・ペアガラス他設備充実。

こだわりポイント

  • プロパンガス
  • 敷地延長(旗竿地)
  • 断熱に配慮された建物
  • 食器洗い洗浄乾燥機
  • 浴室換気乾燥暖房機
  • 急行電車でスピード通勤
  • LDKは1階に
  • 2階建て住宅限定
  • ウォークインクローゼット
  • リビングイン階段
  • LDK20帖以上
  • 吹き抜け有り
  • 対面キッチン
  • 大規模公園10分以内
  • コンビニ10分以内
  • 公園10分以内
  • カースペース2台
  • 道路広々(5m以上)

お気軽にどうぞ!

資料請求 現地見学 電話でお問い合わせ
0120-046-690

地図

申し訳ありません
こちらは会員限定機能です

会員登録で利用できる6つの便利機能

詳しく見る

お気軽にどうぞ!

資料請求 現地見学 電話でお問い合わせ
0120-046-690

頭金0万円・金利0.495%の場合

ボーナス時(年2回)お支払額

0

この物件の月々のお支払額

195,508

年収に対する返済比率

78

  • ※会員登録し、詳細情報を記入されますと、全ての物件で自動的に金額が表示され、大変便利です。
  • ※まだ会員登録をされていない方は、下記チェック欄をご記入ください。
  • ※上記計算は物件価格6,980万円+諸経費 8%込みの金額による結果となります。
  • ※返済金額はあくまでも目安です。

お客様の条件からシミュレーションするには?

会員登録
マイページから登録

金利

直接入力する

ボーナス払い(年2回)

返済年数

頭金

直接入力する

 万円(半角数字)

年収

 万円(半角数字)
価格 6,980万円
物件種別 新築一戸建て
間取り 4LDK
所在地 横浜市金沢区 釜利谷東5丁目
交通
  • 京浜急行本線「金沢文庫」駅 徒歩 19 分
  • 京浜急行本線「金沢文庫」駅 バス停「神明前」まで 徒歩 2 分 バス利用 5分
土地面積 197.68㎡
建物面積 104.16㎡
学区 釜利谷小学校、釜利谷中学校
用途地域 第一種低層住居専用
建ぺい率 50%
容積率 100%
地目 宅地
駐車場 有り カースペース
接道 東7.2m
権利 所有権
私道面積 無し
セットバック 無し
建物構造 木造
建物階数 2階
築年月 2026年04月
入居日 2026年05月
都市計画 市街化区域
取引態様 仲介
物件番号 48190-2
設備 個別LPG、公営水道、公共下水、吹き抜け、外壁サイディング、駐車場2台以上、緑豊かな住宅地、閑静な住宅地、前道6m以上、公園5分以内、コンビニ5分以内、システムキッチン、ガス3口、カウンタキッチン、食器洗い機付き、勝手口、I型キッチン、ユニットバス、追い焚き、浴室乾燥機、ウォシュレット、トイレ2ヶ所、浴室に窓、暖房便座、浴室暖房、バルコニー、南面バルコニー、2階建、LDK20畳以上、全室2面採光、フローリング、リビング階段、クローゼット、収納、床下収納、下駄箱、全居室収納、有線放送、シャンプドレッサー付き、モニタ付きインターフォン、全居室複層ガラスか複層サッシ、24時間換気システム、建物10年保証、勾配天井
建築確認番号 第R07SHC124887号
特記事項 不整形地 宅地造成工事規制区域 高度地区 準防火地域 日影制限 敷地面積最低限度 建物高さ10m以下 建築基準法第22条による区域 敷地面積に協定道路29.88平米含 第二用途地域:一住(建蔽率20%容積率200%) 不整形地:有/宅地造成工事規制区域:有/高度地区:有/準防火地域:有/日影制限:有/敷地面積最低限度:有/高さ限度:有/建築基準法第22条による区域 敷地面積に協定道路29.88平米含 第二用途地域:一住(建蔽率20%容積率200%)。 /
備考 京急線「金沢文庫」駅利用。全室2面採光なので、明るく通風良好なお住まいです。リビングは開放的な吹抜け。食洗機・浴室乾燥機・ペアガラス他設備充実。

お気軽にどうぞ!

資料請求 現地見学 電話でお問い合わせ
0120-046-690

このエリアでお探しの方へ

今週末モデルハウス見学会開催中!「金沢文庫」駅利用 新築一戸建て カースペース2台

京浜急行本線「金沢文庫」駅 徒歩 19 分

京浜急行本線「京急富岡」駅 バス停「神明前」まで 徒歩 7 分 バス利用 16分

横浜市金沢区 釜利谷東6丁目

6,680万円

3LDK

今週末モデルハウス見学会開催中!「金沢文庫」駅利用 新築一戸建て(4) 長期優良住宅

京浜急行本線「金沢文庫」駅 徒歩 19 分

京浜急行本線「金沢文庫」駅 バス停「神明前」まで 徒歩 2 分 バス利用 5分

横浜市金沢区 釜利谷東5丁目

6,880万円

4LDK

今週末モデルハウス見学会開催中!「金沢文庫」駅利用 新築一戸建て(1) 長期優良住宅

京浜急行本線「金沢文庫」駅 徒歩 19 分

京浜急行本線「金沢文庫」駅 バス停「神明前」まで 徒歩 2 分 バス利用 5分

横浜市金沢区 釜利谷東5丁目

7,180万円

4LDK

建物完成しました! 今週末内覧会開催中!「金沢八景」駅徒歩13分 新築一戸建て(2) 長期優良住宅

京浜急行本線「金沢八景」駅 徒歩 13 分

逗子線「金沢八景」駅 徒歩 13 分

横浜市金沢区 柳町

6,780万円

4LDK

今週末内覧会開催中!「金沢文庫」駅利用 中古一戸建て 閑静な住環境

京浜急行本線「金沢文庫」駅 徒歩 23 分

根岸線「洋光台」駅 バス停「神明前」まで 徒歩 2 分 バス利用 21分

横浜市金沢区 釜利谷東5丁目

3,299万円

4LDK

値下げしました! 「金沢文庫」駅徒歩6分 借地権付新築一戸建て WIC完備

京浜急行本線「金沢文庫」駅 徒歩 6 分

金沢シーサイドライン「市大医学部」駅

横浜市金沢区 谷津町

4,080万円

3SLDK

建物完成しました! 今週末内覧会開催中!「六浦」駅利用 新築一戸建て(D) 閑静な住宅地

逗子線「六浦」駅 徒歩 25 分

京浜急行本線「金沢文庫」駅 バス停「高舟台」まで 徒歩 3 分 バス利用 15分

横浜市金沢区 高舟台2丁目

4,290万円

3LDK

建物完成しました! 今週末内覧会開催中!「六浦」駅利用 新築一戸建て(C) カースペース2台

逗子線「六浦」駅 徒歩 25 分

京浜急行本線「金沢文庫」駅 バス停「高舟台」まで 徒歩 3 分 バス利用 15分

横浜市金沢区 高舟台2丁目

4,590万円

3LDK

今週末モデルハウス見学会開催中!「金沢文庫」駅徒歩13分 新築一戸建て 5LDK 小屋裏収納付き

京浜急行本線「金沢文庫」駅 徒歩 13 分

根岸線「磯子」駅 バス停「西柴」まで 徒歩 4 分 バス利用 27分

横浜市金沢区 西柴3丁目

4,980万円

5LDK

値下げしました! 「金沢文庫」駅徒歩15分 新築一戸建て 対面キッチン

京浜急行本線「金沢文庫」駅 徒歩 15 分

京浜急行本線「能見台」駅 徒歩 17 分

横浜市金沢区 片吹

5,099万円

3LDK

今週末モデルハウス見学会開催中!「金沢文庫」駅徒歩10分 新築一戸建て(1)ビルトイン車庫

京浜急行本線「金沢文庫」駅 徒歩 10 分

金沢シーサイドライン「金沢八景」駅 徒歩 23 分

横浜市金沢区 釜利谷東1丁目

5,198万円

2SLDK

今週末モデルハウス見学会開催中!「金沢文庫」駅徒歩10分 新築一戸建て(2)ビルトイン車庫

京浜急行本線「金沢文庫」駅 徒歩 10 分

金沢シーサイドライン「金沢八景」駅 徒歩 23 分

横浜市金沢区 釜利谷東1丁目

5,398万円

2SLDK

お気軽にどうぞ!

資料請求 現地見学 電話でお問い合わせ
0120-046-690