1. トップページ
  2. 値下げしました!今週末モデルハウス見学会開催中!「瀬谷」駅利用 新築一戸建て カースペース3台

値下げしました!今週末モデルハウス見学会開催中!「瀬谷」駅利用 新築一戸建て カースペース3台

価格
4,590万円
物件種別
新築一戸建て
間取り
3LDK
所在地
横浜市瀬谷区 下瀬谷3丁目
交通
  • 相模鉄道線「瀬谷」駅 バス停「郵便局前」まで 徒歩 4 分 バス利用 7分
  • 江ノ島線「大和」駅 バス停「郵便局前」まで 徒歩 3 分 バス利用 7分
土地面積
125.12㎡
建物面積
99.36㎡
  • 前回情報更新日 2026.01.29
  • 次回情報更新予定日 2026.02.12
資料請求 現地見学 電話でお問い合わせ
0120-046-690
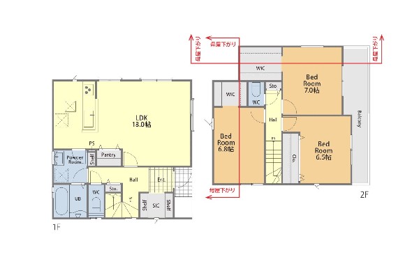
間取図
間取図

この物件のココがオススメ!

相鉄本線「瀬谷」駅利用。南道路。全居室2面採光。カースペース3台駐車可能。対面キッチン。WIC・SIC・パントリー完備。ワイドバルコニー付き。

こだわりポイント

  • 道路狭い(4メートル未満)
  • 大人の二人暮らし
  • LDKは1階に
  • 2階建て住宅限定
  • シューズインクローク
  • ウォークインクローゼット
  • LDK18帖以上
  • 対面キッチン
  • パントリー
  • 小学校10分以内
  • スーパー10分以内
  • コンビニ10分以内
  • 公園10分以内
  • 都市ガス
  • カースペース3台以上
  • 南道路限定

お気軽にどうぞ!

資料請求 現地見学 電話でお問い合わせ
0120-046-690

地図

申し訳ありません
こちらは会員限定機能です

会員登録で利用できる6つの便利機能

詳しく見る

お気軽にどうぞ!

資料請求 現地見学 電話でお問い合わせ
0120-046-690

頭金0万円・金利0.495%の場合

ボーナス時(年2回)お支払額

0

この物件の月々のお支払額

128,566

年収に対する返済比率

51

  • ※会員登録し、詳細情報を記入されますと、全ての物件で自動的に金額が表示され、大変便利です。
  • ※まだ会員登録をされていない方は、下記チェック欄をご記入ください。
  • ※上記計算は物件価格4,590万円+諸経費 8%込みの金額による結果となります。
  • ※返済金額はあくまでも目安です。

お客様の条件からシミュレーションするには?

会員登録
マイページから登録

金利

直接入力する

ボーナス払い(年2回)

返済年数

頭金

直接入力する

 万円(半角数字)

年収

 万円(半角数字)
価格 4,590万円
物件種別 新築一戸建て
間取り 3LDK
所在地 横浜市瀬谷区 下瀬谷3丁目
交通
  • 相模鉄道線「瀬谷」駅 バス停「郵便局前」まで 徒歩 4 分 バス利用 7分
  • 江ノ島線「大和」駅 バス停「郵便局前」まで 徒歩 3 分 バス利用 7分
土地面積 125.12㎡
建物面積 99.36㎡
学区 瀬谷さくら小学校、下瀬谷中学校
用途地域 第一種低層住居専用
建ぺい率 50%
容積率 80%
地目 宅地
駐車場 有り カースペース
接道 南東4m
権利 所有権
私道面積 有 5.53㎡
セットバック 無し
建物構造 木造
建物階数 2階
築年月 2026年01月
入居日 2026年02月
都市計画 市街化区域
取引態様 仲介
物件番号 48067
設備 公営水道、公共下水、駐車場2台以上、緑豊かな住宅地、閑静な住宅地、南側道路面す、スーパーが近い(10分以内)、2沿線以上利用可、小学校徒歩10分以内、システムキッチン、ガス3口、I型キッチン、パントリー(食器・食品の収納庫)、ユニットバス、追い焚き、ウォシュレット、トイレ2ヶ所、浴室に窓、暖房便座、バルコニー、ワイドバルコニー、2階建、LDK18畳以上、全室2面採光、フローリング、クローゼット、収納、床下収納、全居室収納、シャンプドレッサー付き、フラット35Sに対応、モニタ付きインターフォン、24時間換気システム、建物10年保証
建築確認番号 第25KAK建確01174号
特記事項 宅地造成工事規制区域 高度地区 日影制限 敷地面積最低限度 建物高さ10m以下 建築基準法第22条区域 宅地造成工事規制区域:有/高度地区:有/日影制限:有/敷地面積最低限度:有/高さ限度:有/建築基準法第22条区域。 /
備考 相鉄本線「瀬谷」駅利用。南道路。全居室2面採光。カースペース3台駐車可能。対面キッチン。WIC・SIC・パントリー完備。ワイドバルコニー付き。

お気軽にどうぞ!

資料請求 現地見学 電話でお問い合わせ
0120-046-690

このエリアでお探しの方へ

値下げしました!今週末見学会開催中! 「瀬谷」駅徒歩13分 新築一戸建て(2) 和室

相模鉄道線「瀬谷」駅 徒歩 13 分

相模鉄道線「大和」駅 徒歩 16 分

横浜市瀬谷区 本郷1丁目

4,480万円

4LDK

今週末モデルハウス見学会開催中!「瀬谷」駅利用 新築一戸建て 閑静な住宅地

相模鉄道線「瀬谷」駅 バス停「八幡神社前」まで 徒歩 5 分 バス利用 8分

江ノ島線「鶴間」駅 バス停「八幡神社前」まで 徒歩 5 分 バス利用 8分

横浜市瀬谷区 上瀬谷町

4,580万円

4LDK

値下げしました!建物完成しました!内覧会開催中!「瀬谷」駅利用 新築一戸建て(2) 全室2面採光

相模鉄道線「瀬谷」駅 徒歩 15 分

相模鉄道線「大和」駅 徒歩 23 分

横浜市瀬谷区 橋戸3丁目

4,680万円

3LDK

建物完成しました! 今週末内覧会開催中!「瀬谷」駅利用 新築一戸建て(2) カースペース2台

相模鉄道線「瀬谷」駅 徒歩 17 分

江ノ島線「大和」駅 バス停「境橋」まで 徒歩 8 分 バス利用 3分

横浜市瀬谷区 橋戸3丁目

4,880万円

3LDK

今週末モデルハウス見学会開催中!「瀬谷」駅徒歩15分 新築一戸建て(3) 対面キッチン

相模鉄道線「瀬谷」駅 徒歩 15 分

相模鉄道線「大和」駅 バス停「市民活動ベテルギウス」まで 徒歩 16 分 バス利用 3分

横浜市瀬谷区 本郷1丁目

4,880万円

4LDK

今週末モデルハウス見学会開催中!「瀬谷」駅徒歩15分 新築一戸建て(1) 対面キッチン

相模鉄道線「瀬谷」駅 徒歩 15 分

相模鉄道線「大和」駅 バス停「市民活動ベテルギウス」まで 徒歩 16 分 バス利用 3分

横浜市瀬谷区 本郷1丁目

4,880万円

4LDK

今週末モデルハウス見学会開催中!「瀬谷」駅徒歩15分 新築一戸建て(2) 対面キッチン

相模鉄道線「瀬谷」駅 徒歩 15 分

相模鉄道線「大和」駅 バス停「市民活動ベテルギウス」まで 徒歩 16 分 バス利用 3分

横浜市瀬谷区 本郷1丁目

4,880万円

4LDK

今週末モデルハウス見学会開催中!「瀬谷」駅利用 新築一戸建て(2) カースペース3台

相模鉄道線「瀬谷」駅 徒歩 18 分

江ノ島線「大和」駅 徒歩 21 分

横浜市瀬谷区 橋戸3丁目

4,880万円

3SLDK

今週末モデルハウス見学会開催中!「瀬谷」駅利用 新築一戸建て(5)カースペース2台

相模鉄道線「瀬谷」駅 徒歩 17 分

江ノ島線「大和」駅 バス停「境橋」まで 徒歩 8 分 バス利用 3分

横浜市瀬谷区 橋戸3丁目

4,880万円

4LDK

建物完成しました! 今週末内覧会開催中!「瀬谷」駅徒歩13分 新築一戸建て 全居室2面採光

相模鉄道線「瀬谷」駅 徒歩 13 分

相模鉄道線「三ッ境」駅 バス停「南台交番前」まで 徒歩 4 分 バス利用 4分

横浜市瀬谷区 橋戸1丁目

4,880万円

4LDK

値下げしました!「三ツ境」駅利用 新築一戸建て(2) カースペース3台

相模鉄道線「三ッ境」駅 バス停「宗川寺前」まで 徒歩 3 分 バス利用 6分

江ノ島線「桜ヶ丘」駅 徒歩 19 分

横浜市瀬谷区 下瀬谷3丁目

4,380万円

3SLDK

値下げしました!「三ツ境」駅利用 新築一戸建て(3) カースペース3台

相模鉄道線「三ッ境」駅 バス停「宗川寺前」まで 徒歩 3 分 バス利用 6分

江ノ島線「桜ヶ丘」駅 徒歩 19 分

横浜市瀬谷区 下瀬谷3丁目

4,380万円

4LDK

お気軽にどうぞ!

資料請求 現地見学 電話でお問い合わせ
0120-046-690
来店予約