1. トップページ
  2. 建物完成しました! 今週末内覧会開催中!「戸塚」駅利用 新築一戸建て(5) 全室2面採光

建物完成しました! 今週末内覧会開催中!「戸塚」駅利用 新築一戸建て(5) 全室2面採光

価格
4,799万円
物件種別
新築一戸建て
間取り
4LDK
所在地
横浜市戸塚区 原宿5丁目
交通
  • 東海道本線「戸塚」駅 バス停「原宿」まで 徒歩 6 分 バス利用 15分
  • 横須賀線「大船」駅 バス停「原宿四ツ角」まで 徒歩 2 分 バス利用 14分
土地面積
140.77㎡
建物面積
107.64㎡
  • 前回情報更新日 2026.05.14
  • 次回情報更新予定日 2026.05.28
資料請求 現地見学 電話でお問い合わせ
0120-046-690
外観:落ち着きある住宅街、一種低層住居専用地域内に位置しています。日当りを大きく遮られることもありません。
外観:落ち着きある住宅街、一種低層住居専用地域内に位置しています。日当りを大きく遮られることもありません。
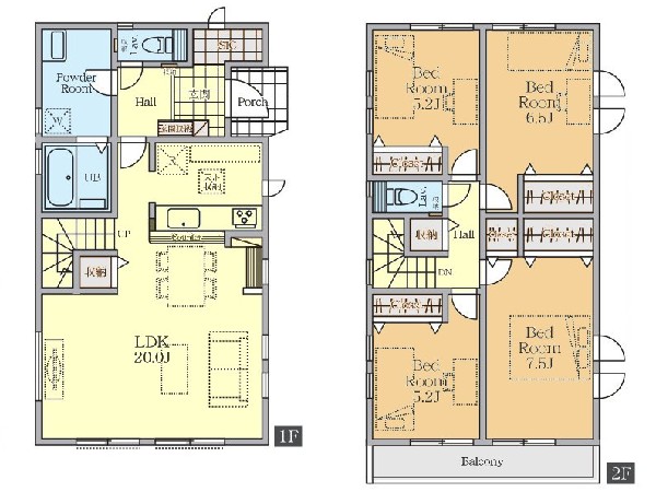
間取り:間取図5号棟
間取り:間取図5号棟
区画図
区画図
家族と過ごす時間を大切にしたい方にぴったりのゆとりある住空間です。(本画像はCGで作成しており、実際に現地に家具はおかれておりません。また価格に家具は含まれておりません。)
家族と過ごす時間を大切にしたい方にぴったりのゆとりある住空間です。(本画像はCGで作成しており、実際に現地に家具はおかれておりません。また価格に家具は含まれておりません。)
外観:多棟現場ですのでお子様の友達作りやご近所付き合いがしやすい環境です。
外観:多棟現場ですのでお子様の友達作りやご近所付き合いがしやすい環境です。
家族と過ごす時間を大切にしたい方にぴったりのゆとりある住空間です。窓からの日差しがリビングの隅々までしっかりと届きます。
家族と過ごす時間を大切にしたい方にぴったりのゆとりある住空間です。窓からの日差しがリビングの隅々までしっかりと届きます。
外観:暮らしに潤いと癒しをもたらすお庭があります。プライベートな空間なので、夏にはお子様のプールが楽しめますし、ちょっとしたガーデンニングにも最適です。
外観:暮らしに潤いと癒しをもたらすお庭があります。プライベートな空間なので、夏にはお子様のプールが楽しめますし、ちょっとしたガーデンニングにも最適です。
家族と過ごす時間を大切にしたい方にぴったりのゆとりある住空間です。窓からの日差しがリビングの隅々までしっかりと届きます。
家族と過ごす時間を大切にしたい方にぴったりのゆとりある住空間です。窓からの日差しがリビングの隅々までしっかりと届きます。
外観:暮らしに潤いと癒しをもたらすお庭があります。プライベートな空間なので、夏にはお子様のプールが楽しめますし、ちょっとしたガーデンニングにも最適です。
外観:暮らしに潤いと癒しをもたらすお庭があります。プライベートな空間なので、夏にはお子様のプールが楽しめますし、ちょっとしたガーデンニングにも最適です。
家族と過ごす時間を大切にしたい方にぴったりのゆとりある住空間です。窓からの日差しがリビングの隅々までしっかりと届きます。
家族と過ごす時間を大切にしたい方にぴったりのゆとりある住空間です。窓からの日差しがリビングの隅々までしっかりと届きます。
外観:玄関は家の中に入る時一番最初に目に付く場所だからこだわりたいですよね!明るい雰囲気の色目でお部屋の雰囲気をそのまま表しているようです。
外観:玄関は家の中に入る時一番最初に目に付く場所だからこだわりたいですよね!明るい雰囲気の色目でお部屋の雰囲気をそのまま表しているようです。
リビングのお子様を見守りながらお料理が出来る対面式カウンターキッチン。ご家族との会話がはずみます。
リビングのお子様を見守りながらお料理が出来る対面式カウンターキッチン。ご家族との会話がはずみます。
外観:玄関は家の中に入る時一番最初に目に付く場所だからこだわりたいですよね!明るい雰囲気の色目でお部屋の雰囲気をそのまま表しているようです。
外観:玄関は家の中に入る時一番最初に目に付く場所だからこだわりたいですよね!明るい雰囲気の色目でお部屋の雰囲気をそのまま表しているようです。
「どういう家具を置こうかな」とわくわくする。自分好みのこだわりのお部屋にしてオンリーワンの部屋でゆったりと寛ごう。
「どういう家具を置こうかな」とわくわくする。自分好みのこだわりのお部屋にしてオンリーワンの部屋でゆったりと寛ごう。
「どういう家具を置こうかな」とわくわくする。自分好みのこだわりのお部屋にしてオンリーワンの部屋でゆったりと寛ごう。
「どういう家具を置こうかな」とわくわくする。自分好みのこだわりのお部屋にしてオンリーワンの部屋でゆったりと寛ごう。
「どういう家具を置こうかな」とわくわくする。自分好みのこだわりのお部屋にしてオンリーワンの部屋でゆったりと寛ごう。
「どういう家具を置こうかな」とわくわくする。自分好みのこだわりのお部屋にしてオンリーワンの部屋でゆったりと寛ごう。
「どういう家具を置こうかな」とわくわくする。自分好みのこだわりのお部屋にしてオンリーワンの部屋でゆったりと寛ごう。
「どういう家具を置こうかな」とわくわくする。自分好みのこだわりのお部屋にしてオンリーワンの部屋でゆったりと寛ごう。
思わず大きく深呼吸したくなるバルコニーは空を青く、近く、広く感じる。周囲には高い建物のないエリアだから、広く見渡せる。解放感を求めている方にはピッタリの物件かも知れない。
思わず大きく深呼吸したくなるバルコニーは空を青く、近く、広く感じる。周囲には高い建物のないエリアだから、広く見渡せる。解放感を求めている方にはピッタリの物件かも知れない。
ユニットバスはゆったりとくつろげる1坪タイプ。足までしっかりと伸ばせる浴槽は、心身ともにしっかりと疲れを癒してくれます。お子様と一緒の入浴でも充分な広さです。
ユニットバスはゆったりとくつろげる1坪タイプ。足までしっかりと伸ばせる浴槽は、心身ともにしっかりと疲れを癒してくれます。お子様と一緒の入浴でも充分な広さです。
鏡の裏に収納棚を確保した三面鏡を採用。化粧品や歯ブラシなどを機能的に収納。便利な床下収納付き。
鏡の裏に収納棚を確保した三面鏡を採用。化粧品や歯ブラシなどを機能的に収納。便利な床下収納付き。
洗浄機能付き便座を標準装備。便座保温機能もあるので寒い季節も安心。
洗浄機能付き便座を標準装備。便座保温機能もあるので寒い季節も安心。

この物件のココがオススメ!

複数路線が乗り入れる「戸塚」・「大船」駅利用。全室2面採光なので、明るく通風良好なお住まいです。LDKは対面キッチン。食洗機・浴室乾燥機・ペアガラス他設備充実。

こだわりポイント

  • 食器洗い洗浄乾燥機
  • 浴室換気乾燥暖房機
  • 急行電車でスピード通勤
  • 始発で座ってゆったり通勤
  • 2沿線利用であんしん通勤
  • LDKは1階に
  • 2階建て住宅限定
  • シューズインクローク
  • リビングイン階段
  • LDK20帖以上
  • 広々バルコニー
  • 対面キッチン
  • 浴室1坪以上
  • 小学校10分以内
  • スーパー10分以内
  • コンビニ10分以内
  • 保育園10分以内
  • 公園10分以内
  • 都市ガス
  • フラット35利用可
  • カースペース2台

お気軽にどうぞ!

資料請求 現地見学 電話でお問い合わせ
0120-046-690

地図

申し訳ありません
こちらは会員限定機能です

会員登録で利用できる6つの便利機能

詳しく見る

お気軽にどうぞ!

資料請求 現地見学 電話でお問い合わせ
0120-046-690

頭金0万円・金利0.495%の場合

ボーナス時(年2回)お支払額

0

この物件の月々のお支払額

134,402

年収に対する返済比率

54

  • ※会員登録し、詳細情報を記入されますと、全ての物件で自動的に金額が表示され、大変便利です。
  • ※まだ会員登録をされていない方は、下記チェック欄をご記入ください。
  • ※上記計算は物件価格4,799万円+諸経費 8%込みの金額による結果となります。
  • ※返済金額はあくまでも目安です。

お客様の条件からシミュレーションするには?

会員登録
マイページから登録

金利

直接入力する

ボーナス払い(年2回)

返済年数

頭金

直接入力する

 万円(半角数字)

年収

 万円(半角数字)
価格 4,799万円
物件種別 新築一戸建て
間取り 4LDK
所在地 横浜市戸塚区 原宿5丁目
交通
  • 東海道本線「戸塚」駅 バス停「原宿」まで 徒歩 6 分 バス利用 15分
  • 横須賀線「大船」駅 バス停「原宿四ツ角」まで 徒歩 2 分 バス利用 14分
土地面積 140.77㎡
建物面積 107.64㎡
学区 小雀小学校、大正中学校
用途地域 第一種低層住居専用
建ぺい率 50%
容積率 80%
地目 宅地
駐車場 有り カースペース
接道 東4.5m
権利 所有権
私道面積 有 135.00㎡ 1/5
セットバック 無し
建物構造 木造
建物階数 2階
築年月 2026年01月
入居日 即時
都市計画 市街化区域
取引態様 仲介
物件番号 48014-5
設備 公営水道、公共下水、防犯シャッター、駐車場2台以上、緑豊かな住宅地、閑静な住宅地、スーパーが近い(10分以内)、始発駅、2沿線以上利用可、小学校徒歩10分以内、中学校徒歩10分以内、システムキッチン、ガス3口、カウンタキッチン、食器洗い機付き、I型キッチン、ユニットバス、追い焚き、浴室乾燥機、ウォシュレット、トイレ2ヶ所、浴室1坪以上、浴室に窓、暖房便座、浴室暖房、バルコニー、ワイドバルコニー、南面バルコニー、2階建、LDK20畳以上、採光3面、全室2面採光、フローリング、リビング階段、クローゼット、収納、床下収納、下駄箱、全居室収納、シャンプドレッサー付き、フラット35Sに対応、モニタ付きインターフォン、24時間換気システム
建築確認番号 -
特記事項 不整形地 宅地造成工事規制区域 高度地区 日影制限 敷地面積最低限度 建物高さ10m以下建築基準法第22条による区域 横浜市建築基準条例第3条による制限有 建物建築・再建築の際、深基礎、基礎杭、擁壁の補修・再構築、外壁後退等の対策が必要となる場合有。 その他持分1.91平米×1/5有 不整形地:有/宅地造成工事規制区域:有/高度地区:有/日影制限:有/敷地面積最低限度:有/高さ限度:有/建築基準法第22条による区域 横浜市建築基準条例第3条による制限有 建物建築・再建築の際、深基礎、基礎杭、擁壁の補修・再構築、外壁後退等の対策が必要となる場合有。 その他持分1.91平米×1/5有。 /
備考 複数路線が乗り入れる「戸塚」・「大船」駅利用。全室2面採光なので、明るく通風良好なお住まいです。LDKは対面キッチン。食洗機・浴室乾燥機・ペアガラス他設備充実。

お気軽にどうぞ!

資料請求 現地見学 電話でお問い合わせ
0120-046-690

このエリアでお探しの方へ

稲城市平尾2丁目 中古一戸建 4499万円

小田急多摩線「五月台」駅 徒歩 14 分

小田急線「新百合ヶ丘」駅 徒歩 21 分

稲城市 平尾2丁目

4,499万円

2LDK

今週末内覧会開催中!「根岸」駅徒歩11分 中古一戸建て R8年5月リフォーム完成予定

根岸線「根岸」駅 徒歩 11 分

根岸線「山手」駅 徒歩 19 分

横浜市中区 根岸町3丁目

4,499万円

3SLDK

横浜市緑区東本郷4丁目 中古一戸建 4499万円

横浜線「鴨居」駅 徒歩 19 分

ブルーライン「新横浜」駅 バス停「ひまわり団地前」まで 徒歩 13 分 バス利用 20分

横浜市緑区 東本郷4丁目

4,499万円

4LDK

横浜市鶴見区上の宮2丁目 中古一戸建 4499万円

横浜線「菊名」駅 徒歩 15 分

東急東横線「大倉山」駅 徒歩 18 分

横浜市鶴見区 上の宮2丁目

4,499万円

4LDK

建物完成しました!今週末内覧会開催中!「茅ヶ崎」駅利用 新築一戸建て完成

東海道本線「茅ヶ崎」駅 バス停「松林中学校前」まで 徒歩 5 分 バス利用 5分

湘南新宿高「辻堂」駅 バス停「松林二丁目」まで 徒歩 5 分 バス利用 10分

茅ヶ崎市 本村3丁目

4,549万円

2LDK+2S

値下げしました!「鶴ケ峰」駅利用 新築一戸建て(1) カースペース2台

相模鉄道線「鶴ヶ峰」駅 徒歩 18 分

横浜線「中山」駅 バス停「代官前」まで 徒歩 6 分 バス利用 24分

横浜市旭区 白根6丁目

4,550万円

3SLDK

今週末モデルハウス見学会開催中!「能見台」駅徒歩9分 新築一戸建て(A) 対面キッチン

京浜急行本線「能見台」駅 徒歩 9 分

根岸線「磯子」駅 バス停「谷津坂」まで 徒歩 6 分 バス利用 17分

横浜市金沢区 長浜1丁目

4,580万円

2LDK+2S

値下げしました! 「大船」駅利用 新築一戸建て(A) 全7棟 ゆとりの4LDK

東海道本線「大船」駅 バス停「常勝寺」まで 徒歩 6 分 バス利用 7分

横須賀線「戸塚」駅 バス停「田谷」まで 徒歩 12 分 バス利用 17分

横浜市戸塚区 小雀町

4,580万円

4LDK

今週末モデルハウス見学会開催中!「瀬谷」駅利用 新築一戸建て 閑静な住宅地

相模鉄道線「瀬谷」駅 バス停「八幡神社前」まで 徒歩 5 分 バス利用 8分

江ノ島線「鶴間」駅 バス停「八幡神社前」まで 徒歩 5 分 バス利用 8分

横浜市瀬谷区 上瀬谷町

4,580万円

4LDK

今週末モデルハウス見学会開催中!「桜ケ丘」「瀬谷」駅利用 新築一戸建て(22) カースペース2台

江ノ島線「桜ヶ丘」駅 徒歩 18 分

相模鉄道線「瀬谷」駅 徒歩 26 分

横浜市瀬谷区 北新

4,580万円

4LDK

今週末モデルハウス見学会開催中!「桜ケ丘」駅利用 新築一戸建て 閑静な住宅地

江ノ島線「桜ヶ丘」駅 徒歩 19 分

相模鉄道線「大和」駅 バス停「郵便局前」まで 徒歩 3 分 バス利用 7分

横浜市瀬谷区 下瀬谷3丁目

4,580万円

4LDK

川崎市麻生区細山4丁目 新築一戸建 4580万円 1号棟

小田急線「読売ランド前」駅 徒歩 21 分

京王相模原線「京王よみうりランド」駅 バス停「細山」まで 徒歩 4 分 バス利用 21分

川崎市麻生区 細山4丁目

4,580万円

4LDK

お気軽にどうぞ!

資料請求 現地見学 電話でお問い合わせ
0120-046-690
来店予約