1. トップページ
  2. 今週末内覧会開催中!「二俣川」駅徒歩13分 中古一戸建て 全室6帖以上

今週末内覧会開催中!「二俣川」駅徒歩13分 中古一戸建て 全室6帖以上

価格
2,980万円
物件種別
中古一戸建て
間取り
4LDK
所在地
横浜市旭区 本村町
交通
  • 相模鉄道線「二俣川」駅 徒歩 13 分
  • 相模鉄道線「二俣川」駅 バス停「高地」まで 徒歩 6 分 バス利用 1分
土地面積
123.59㎡
建物面積
101.70㎡
  • 前回情報更新日 2025.12.08
  • 次回情報更新予定日 2025.12.22
資料請求 現地見学 電話でお問い合わせ
0120-046-690
外観:明るい南向きリビングが魅力の2階建フルリノベーション再生住宅。鮮やかな青い外観と人工芝の庭が心地よい空間を演出します。室内外ともに手入れが行き届いた住まいです。
外観:明るい南向きリビングが魅力の2階建フルリノベーション再生住宅。鮮やかな青い外観と人工芝の庭が心地よい空間を演出します。室内外ともに手入れが行き届いた住まいです。
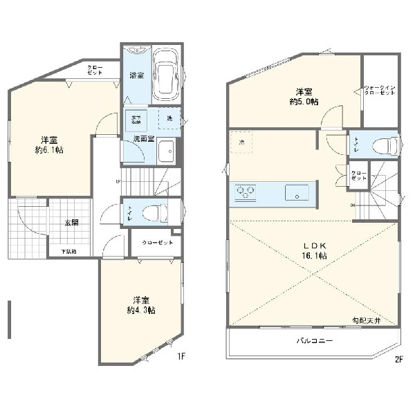
間取図
間取図
家族と過ごす時間を大切にする方にピッタリのゆとりの住空間です。(本画像はCGで作成しており、実際に現地に家具・家電はおかれておりません。また価格に家具・家電は含まれておりません)
家族と過ごす時間を大切にする方にピッタリのゆとりの住空間です。(本画像はCGで作成しており、実際に現地に家具・家電はおかれておりません。また価格に家具・家電は含まれておりません)
外観:白を基調とした空間に木目のアクセントが映えるデザイン玄関。柔らかな光が広がり、帰宅のたびに気分が上がる上質なエントランスです。
外観:白を基調とした空間に木目のアクセントが映えるデザイン玄関。柔らかな光が広がり、帰宅のたびに気分が上がる上質なエントランスです。
光が取り込みやすい2面採光の居室。(本画像はCGで作成しており、実際に現地に家具・家電はおかれておりません。また価格には含まれておりません)
光が取り込みやすい2面採光の居室。(本画像はCGで作成しており、実際に現地に家具・家電はおかれておりません。また価格には含まれておりません)
広々とした動線が魅力の対面キッチン。落ち着いたカラーの扉が上質な雰囲気を演出し、家事をしながら家族と会話を楽しめる明るい空間です。
広々とした動線が魅力の対面キッチン。落ち着いたカラーの扉が上質な雰囲気を演出し、家事をしながら家族と会話を楽しめる明るい空間です。
家族との会話が弾む対面キッチン。ゆとりある通路幅で調理や配膳もスムーズに。設備も揃っており、毎日の家事が快適になる住空間です。
家族との会話が弾む対面キッチン。ゆとりある通路幅で調理や配膳もスムーズに。設備も揃っており、毎日の家事が快適になる住空間です。
白基調の明るいLDKは、ワイドな開放感が魅力。石目調のアクセントが空間に上質さを添え、2面採光で一日中心地よく過ごせる住まいです。
白基調の明るいLDKは、ワイドな開放感が魅力。石目調のアクセントが空間に上質さを添え、2面採光で一日中心地よく過ごせる住まいです。
白く明るいLDKは家族で過ごすのにぴったり。石目調のアクセントがやさしく空間を引き締め、隣室への行き来もスムーズな住みやすい間取りです。
白く明るいLDKは家族で過ごすのにぴったり。石目調のアクセントがやさしく空間を引き締め、隣室への行き来もスムーズな住みやすい間取りです。
広々LDKは家族みんなが自然と集まる心地よい空間。大きな窓で明るさもたっぷり、キッチンとの距離感も使いやすい間取りです。
広々LDKは家族みんなが自然と集まる心地よい空間。大きな窓で明るさもたっぷり、キッチンとの距離感も使いやすい間取りです。
ソファを置いてゆったり寛げる広さのリビングは、ご家族の憩いの場にぴったり!ダイニングテーブルやソファー、ローテーブル等の家具もしっかりと配置できます。
ソファを置いてゆったり寛げる広さのリビングは、ご家族の憩いの場にぴったり!ダイニングテーブルやソファー、ローテーブル等の家具もしっかりと配置できます。
明るい日差しが入る洋室は、子ども部屋にも寝室にも使いやすい間取り。クローゼット付きで片付けがしやすく、生活が整うお部屋です。
明るい日差しが入る洋室は、子ども部屋にも寝室にも使いやすい間取り。クローゼット付きで片付けがしやすく、生活が整うお部屋です。
白い床と大きな窓が明るさを引き立てる洋室。バルコニーにつながる開放感と、ワイドクローゼットの収納力が魅力の上質な空間です。
白い床と大きな窓が明るさを引き立てる洋室。バルコニーにつながる開放感と、ワイドクローゼットの収納力が魅力の上質な空間です。
広めのクローゼットを備えた使いやすい洋室。明るい室内で、寝室・書斎・ワークスペースなど多用途に活用できます。
広めのクローゼットを備えた使いやすい洋室。明るい室内で、寝室・書斎・ワークスペースなど多用途に活用できます。
居室には収納クローゼットを完備!普段使いのお洋服や小物はもちろん、季節物のお洋服などもしっかりと整理整頓おしまい頂けます。居室空間をより広く隅々までお使いいただけますね。
居室には収納クローゼットを完備!普段使いのお洋服や小物はもちろん、季節物のお洋服などもしっかりと整理整頓おしまい頂けます。居室空間をより広く隅々までお使いいただけますね。
遊びも!勉強も!兄弟仲良く、家族の会話が増える間取りです。居室内はいつも明るい印象で、気持ちの良い朝を迎えられそう。毎日の生活も自然と明るくなりますね。
遊びも!勉強も!兄弟仲良く、家族の会話が増える間取りです。居室内はいつも明るい印象で、気持ちの良い朝を迎えられそう。毎日の生活も自然と明るくなりますね。
遊びも!勉強も!兄弟仲良く、家族の会話が増える間取りです。居室内はいつも明るい印象で、気持ちの良い朝を迎えられそう。毎日の生活も自然と明るくなりますね。
遊びも!勉強も!兄弟仲良く、家族の会話が増える間取りです。居室内はいつも明るい印象で、気持ちの良い朝を迎えられそう。毎日の生活も自然と明るくなりますね。
三面鏡収納やコンセント位置など、細かな使いやすさに配慮した洗面空間。木目パネルが落ち着いた雰囲気を演出し、毎日の身支度が快適に。
三面鏡収納やコンセント位置など、細かな使いやすさに配慮した洗面空間。木目パネルが落ち着いた雰囲気を演出し、毎日の身支度が快適に。
周辺環境:四季美台第二公園(四季美台第二公園まで500m)
周辺環境:四季美台第二公園(四季美台第二公園まで500m)
周辺環境:今川公園(今川公園まで800m)
周辺環境:今川公園(今川公園まで800m)
周辺環境:ジョイナステラス二俣川
周辺環境:ジョイナステラス二俣川
周辺環境:そうてつローゼン二俣川店
周辺環境:そうてつローゼン二俣川店
周辺環境:西友二俣川店
周辺環境:西友二俣川店
周辺環境:二俣川幼稚園
周辺環境:二俣川幼稚園
周辺環境:横浜四季の森フォレオ
周辺環境:横浜四季の森フォレオ
周辺環境:横浜市立二俣川小学校
周辺環境:横浜市立二俣川小学校
周辺環境:横浜市立万騎が原中学校
周辺環境:横浜市立万騎が原中学校

この物件のココがオススメ!

相鉄線「二俣川」駅から徒歩13分。2024年10月リフォーム完了済(システムキッチン・トイレ・ユニットバス交換、フローリング・クロス貼替、ハウスクリーニング他)

こだわりポイント

  • カースペース無し
  • プロパンガス
  • 敷地延長(旗竿地)
  • 急行電車でスピード通勤
  • 大人の二人暮らし
  • LDKは1階に
  • 2階建て住宅限定
  • LDK15帖以上
  • 広々バルコニー
  • 対面キッチン
  • 幼稚園10分以内
  • 公園10分以内
  • 道路広々(5m以上)

お気軽にどうぞ!

資料請求 現地見学 電話でお問い合わせ
0120-046-690

地図

申し訳ありません
こちらは会員限定機能です

会員登録で利用できる6つの便利機能

詳しく見る

お気軽にどうぞ!

資料請求 現地見学 電話でお問い合わせ
0120-046-690

頭金0万円・金利0.495%の場合

ボーナス時(年2回)お支払額

0

この物件の月々のお支払額

83,463

年収に対する返済比率

33

  • ※会員登録し、詳細情報を記入されますと、全ての物件で自動的に金額が表示され、大変便利です。
  • ※まだ会員登録をされていない方は、下記チェック欄をご記入ください。
  • ※上記計算は物件価格2,980万円+諸経費 8%込みの金額による結果となります。
  • ※返済金額はあくまでも目安です。

お客様の条件からシミュレーションするには?

会員登録
マイページから登録

金利

直接入力する

ボーナス払い(年2回)

返済年数

頭金

直接入力する

 万円(半角数字)

年収

 万円(半角数字)

約500m

公園

周辺環境:四季美台第二公園(四季美台第二公園まで500m)

公園

約500m

約800m

公園

周辺環境:今川公園(今川公園まで800m)

公園

約800m

約1,400m

ショッピングセンター

周辺環境:ジョイナステラス二俣川

ショッピングセンター

約1,400m

約1,000m

スーパー

周辺環境:そうてつローゼン二俣川店

スーパー

約1,000m

約1,200m

スーパー

周辺環境:西友二俣川店

スーパー

約1,200m

約800m

幼稚園・保育園

周辺環境:二俣川幼稚園

幼稚園・保育園

約800m

約4,300m

ショッピングセンター

周辺環境:横浜四季の森フォレオ

ショッピングセンター

約4,300m

約1,300m

小学校

周辺環境:横浜市立二俣川小学校

小学校

約1,300m

約1,800m

中学校

周辺環境:横浜市立万騎が原中学校

中学校

約1,800m

価格 2,980万円
物件種別 中古一戸建て
間取り 4LDK
所在地 横浜市旭区 本村町
交通
  • 相模鉄道線「二俣川」駅 徒歩 13 分
  • 相模鉄道線「二俣川」駅 バス停「高地」まで 徒歩 6 分 バス利用 1分
土地面積 123.59㎡
建物面積 101.70㎡
学区 二俣川小学校、万騎が原中学校
用途地域 第一種住居
建ぺい率 60%
容積率 200%
地目 宅地
駐車場 無し
接道 北東10.7m
権利 所有権
私道面積 無し
セットバック 無し
建物構造 軽量鉄骨
建物階数 2階
築年月 1980年09月
入居日 相談
都市計画 市街化区域
取引態様 仲介
物件番号 47956
設備 個別LPG、公営水道、公共下水、緑豊かな住宅地、閑静な住宅地、前道6m以上、2沿線以上利用可、システムキッチン、ガス3口、I型キッチン、アイランドキッチン、ユニットバス、浴室に窓、バルコニー、ワイドバルコニー、南面バルコニー、リノベーション、2階建、LDK15畳以上、全居室6畳以上、和室、全室2面採光、フローリング、クローゼット、収納、下駄箱、全居室収納、南庭、庭、モニタ付きインターフォン
建築確認番号 -
特記事項 不整形地 宅地造成工事規制区域 高度地区 準防火地域 日影制限 建築基準法第22条区域 横浜市建築基準条例第3条による制限有 ※建物建築・再建築の際、深基礎、基礎杭、擁壁の補修・再構築、外壁後退等の対策が必要となる場合があります 建物建築・再建築の際、防護壁の設置、高基礎、外壁後退等の対策が必要となる場合があります 構造:一部木造 不整形地:有/宅地造成工事規制区域:有/高度地区:有/準防火地域:有/日影制限:有/建築基準法第22条区域 横浜市建築基準条例第3条による制限有 ※建物建築・再建築の際、深基礎、基礎杭、擁壁の補修・再構築、外壁後退等の対策が必要となる場合があります 建物建築・再建築の際、防護壁の設置、高基礎、外壁後退等の対策が必要となる場合があります 構造:一部木造。 /
備考 相鉄線「二俣川」駅から徒歩13分。2024年10月リフォーム完了済(システムキッチン・トイレ・ユニットバス交換、フローリング・クロス貼替、ハウスクリーニング他)

お気軽にどうぞ!

資料請求 現地見学 電話でお問い合わせ
0120-046-690

このエリアでお探しの方へ

今週末内覧会開催中!「三ツ境」駅利用 中古一戸建て R7.12月リフォーム完成予定

相模鉄道線「三ッ境」駅 バス停「青葉台」まで 徒歩 6 分 バス利用 11分

横浜線「十日市場」駅 バス停「若葉台近隣公園前」まで 徒歩 7 分 バス利用 24分

横浜市旭区 上川井町

2,999万円

4LDK

今週末モデルハウス見学会開催中!「鶴ケ峰」駅利用 新築一戸建て エコジョーズ

相模鉄道線「鶴ヶ峰」駅 徒歩 17 分

いずみ野線「二俣川」駅 徒歩 21 分

横浜市旭区 川島町

3,480万円

2LDK

値下げしました!「南万騎が原」駅徒歩12分 新築一戸建て(2) エコジョーズ

いずみ野線「南万騎が原」駅 徒歩 12 分

相模鉄道線「二俣川」駅 徒歩 17 分

横浜市旭区 さちが丘

3,980万円

4LDK

建物完成しました! 今週末内覧会開催中!「二俣川」駅利用 新築一戸建て 全室2面採光

相模鉄道線「二俣川」駅 徒歩 18 分

横須賀線「東戸塚」駅 バス停「南本宿交差点」まで 徒歩 4 分 バス利用 35分

横浜市旭区 南本宿町

4,380万円

3LDK

建物完成しました! 今週末内覧会開催中!「希望ケ丘」駅徒歩11分 新築一戸建て(1) 対面キッチン

相模鉄道線「希望ヶ丘」駅 徒歩 11 分

相模鉄道線「二俣川」駅 徒歩 19 分

横浜市旭区 中尾1丁目

4,580万円

3LDK

値下げしました! 「二俣川」駅利用 新築一戸建て(3) パントリー完備

相模鉄道線「二俣川」駅 徒歩 19 分

いずみ野線「南万騎が原」駅 徒歩 18 分

横浜市旭区 南本宿町

4,980万円

3LDK

建物完成しました! 今週末内覧会開催中!「二俣川」駅利用 新築一戸建て 吹抜け WIC

相模鉄道線「二俣川」駅 バス停「左近山第2」まで 徒歩 7 分 バス利用 15分

相模鉄道線「鶴ヶ峰」駅 徒歩 23 分

横浜市旭区 小高町

4,990万円

4LDK

値下げしました! 「二俣川」駅利用 新築一戸建て(5)WIC パントリー完備

相模鉄道線「二俣川」駅 徒歩 19 分

いずみ野線「南万騎が原」駅 徒歩 18 分

横浜市旭区 南本宿町

5,080万円

3LDK

値下げしました!今週末見学会開催中!「二俣川」駅利用 新築一戸建て(12) カースペース2台

相模鉄道線「二俣川」駅 徒歩 25 分

相模鉄道線「二俣川」駅 バス停「ニュータウン第5」まで 徒歩 4 分 バス利用 15分

横浜市旭区 今宿2丁目

5,180万円

4LDK

建物完成しました! 今週末内覧会開催中!「三ツ境」駅利用 新築一戸建て WIC完備

相模鉄道線「三ッ境」駅 徒歩 18 分

いずみ野線「二俣川」駅 バス停「ニュータウン第7」まで 徒歩 6 分 バス利用 9分

横浜市旭区 金が谷1丁目

5,180万円

4LDK

値下げしました!「二俣川」駅徒歩15分 新築一戸建て 食洗器付き対面キッチン

相模鉄道線「二俣川」駅 徒歩 15 分

相模鉄道線「鶴ヶ峰」駅 徒歩 20 分

横浜市旭区 四季美台

5,380万円

4LDK

値下げしました!今週末見学会開催中!「二俣川」駅利用 新築一戸建て(14) カースペース2台 角地

相模鉄道線「二俣川」駅 徒歩 25 分

相模鉄道線「二俣川」駅 バス停「ニュータウン第5」まで 徒歩 4 分 バス利用 15分

横浜市旭区 今宿2丁目

5,380万円

4LDK

お気軽にどうぞ!

資料請求 現地見学 電話でお問い合わせ
0120-046-690