1. トップページ
  2. 値下げしました! 「三ツ境」駅利用 新築一戸建て 角地

値下げしました! 「三ツ境」駅利用 新築一戸建て 角地

価格
2,580万円
物件種別
新築一戸建て
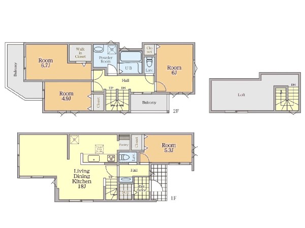
間取り
2LDK
所在地
横浜市旭区 金が谷2丁目
交通
  • 相模鉄道線「三ッ境」駅 バス停「岸本」まで 徒歩 7 分 バス利用 10分
  • いずみ野線「二俣川」駅 バス停「ニュータウン第7」まで 徒歩 3 分 バス利用 9分
土地面積
73.09㎡
建物面積
58.31㎡
  • 前回情報更新日 2025.10.30
  • 次回情報更新予定日 2025.11.13
資料請求 現地見学 電話でお問い合わせ
0120-046-690
間取図
間取図

この物件のココがオススメ!

相鉄線「三ツ境」駅利用。角地の為、解放感ある立地。全室2面採光なので、明るく通風良好。プライバシーに配慮した2階LDKは、ご家族との会話が弾む対面キッチン。

こだわりポイント

  • 急行電車でスピード通勤
  • 大人の二人暮らし
  • 2階建て住宅限定
  • LDKは2階に
  • 広々バルコニー
  • 対面キッチン
  • 小学校10分以内
  • コンビニ10分以内
  • 保育園10分以内
  • 公園10分以内
  • 都市ガス
  • カースペース2台
  • 隣家との間隔たっぷり
  • 角地限定
  • 日当たり良好
  • 南道路限定

お気軽にどうぞ!

資料請求 現地見学 電話でお問い合わせ
0120-046-690

地図

申し訳ありません
こちらは会員限定機能です

会員登録で利用できる6つの便利機能

詳しく見る

お気軽にどうぞ!

資料請求 現地見学 電話でお問い合わせ
0120-046-690

頭金0万円・金利0.495%の場合

ボーナス時(年2回)お支払額

0

この物件の月々のお支払額

72,258

年収に対する返済比率

29

  • ※会員登録し、詳細情報を記入されますと、全ての物件で自動的に金額が表示され、大変便利です。
  • ※まだ会員登録をされていない方は、下記チェック欄をご記入ください。
  • ※上記計算は物件価格2,580万円+諸経費 8%込みの金額による結果となります。
  • ※返済金額はあくまでも目安です。

お客様の条件からシミュレーションするには?

会員登録
マイページから登録

金利

直接入力する

ボーナス払い(年2回)

返済年数

頭金

直接入力する

 万円(半角数字)

年収

 万円(半角数字)
価格 2,580万円
物件種別 新築一戸建て
間取り 2LDK
所在地 横浜市旭区 金が谷2丁目
交通
  • 相模鉄道線「三ッ境」駅 バス停「岸本」まで 徒歩 7 分 バス利用 10分
  • いずみ野線「二俣川」駅 バス停「ニュータウン第7」まで 徒歩 3 分 バス利用 9分
土地面積 73.09㎡
建物面積 58.31㎡
学区 笹野台小学校、希望が丘中学校
用途地域 第一種低層住居専用
建ぺい率 50%
容積率 80%
地目 宅地
駐車場 有り カースペース
接道 南4.8m、東5m
権利 所有権
私道面積 無し
セットバック 無し
建物構造 木造
建物階数 2階
築年月 2025年06月
入居日 即時
都市計画 市街化区域
取引態様 仲介
物件番号 47569
設備 公営水道、公共下水、駐車場2台以上、緑豊かな住宅地、閑静な住宅地、角地、南側道路面す、隣家との間隔が大きい、小学校徒歩10分以内、保育施設・幼稚園5分以内、公園5分以内、システムキッチン、ガス3口、I型キッチン、ユニットバス、追い焚き、ウォシュレット、トイレ2ヶ所、浴室に窓、暖房便座、バルコニー、ワイドバルコニー、南面バルコニー、2階建、全室2面採光、クローゼット、収納、床下収納、下駄箱、全居室収納、シャンプドレッサー付き、モニタ付きインターフォン、24時間換気システム、建物10年保証
建築確認番号 -
特記事項 不整形地 隅切り 宅地造成工事規制区域高度地区 特別用途制限地域 日影制限 敷地面積最低限度 建物高さ10m以下 建築基準法第22条による区域 不整形地:有/隅切り:有/宅地造成工事規制区域:有/高度地区:有/特別用途制限地域:有/日影制限:有/敷地面積最低限度:有/高さ限度:有/建築基準法第22条による区域 過少宅地。 /
備考 相鉄線「三ツ境」駅利用。角地の為、解放感ある立地。全室2面採光なので、明るく通風良好。プライバシーに配慮した2階LDKは、ご家族との会話が弾む対面キッチン。

お気軽にどうぞ!

資料請求 現地見学 電話でお問い合わせ
0120-046-690

このエリアでお探しの方へ

今週末モデルハウス見学会開催中!「鶴ケ峰」駅利用 新築一戸建て エコジョーズ

相模鉄道線「鶴ヶ峰」駅 徒歩 17 分

いずみ野線「二俣川」駅 徒歩 21 分

横浜市旭区 川島町

3,480万円

2LDK

値下げしました!「南万騎が原」駅徒歩12分 新築一戸建て(2) エコジョーズ

いずみ野線「南万騎が原」駅 徒歩 12 分

相模鉄道線「二俣川」駅 徒歩 17 分

横浜市旭区 さちが丘

3,980万円

4LDK

建物完成しました! 今週末内覧会開催中!「二俣川」駅利用 新築一戸建て 全室2面採光

相模鉄道線「二俣川」駅 徒歩 18 分

横須賀線「東戸塚」駅 バス停「南本宿交差点」まで 徒歩 4 分 バス利用 35分

横浜市旭区 南本宿町

4,380万円

3LDK

建物完成しました! 今週末内覧会開催中!「希望ケ丘」駅徒歩11分 新築一戸建て(1) 対面キッチン

相模鉄道線「希望ヶ丘」駅 徒歩 11 分

相模鉄道線「二俣川」駅 徒歩 19 分

横浜市旭区 中尾1丁目

4,580万円

3LDK

値下げしました! 今週末内覧会開催中!「三ツ境」駅利用 新築一戸建て(A) ロフト完備

相模鉄道線「三ッ境」駅 徒歩 15 分

いずみ野線「二俣川」駅 バス停「ニュータウン第7」まで 徒歩 7 分 バス利用 9分

横浜市旭区 金が谷1丁目

4,780万円

4LDK

値下げしました! 「二俣川」駅利用 新築一戸建て(3) パントリー完備

相模鉄道線「二俣川」駅 徒歩 19 分

いずみ野線「南万騎が原」駅 徒歩 18 分

横浜市旭区 南本宿町

4,980万円

3LDK

建物完成しました! 今週末内覧会開催中!「希望ケ丘」駅徒歩11分 新築一戸建て(2) 対面キッチン

相模鉄道線「希望ヶ丘」駅 徒歩 11 分

相模鉄道線「二俣川」駅 徒歩 19 分

横浜市旭区 中尾1丁目

4,980万円

4LDK

今週末モデルハウス見学会開催中!「二俣川」駅利用 新築一戸建て 吹抜け WIC

相模鉄道線「二俣川」駅 バス停「左近山第2」まで 徒歩 7 分 バス利用 15分

相模鉄道線「鶴ヶ峰」駅 徒歩 23 分

横浜市旭区 小高町

4,990万円

4LDK

値下げしました! 「二俣川」駅利用 新築一戸建て(5)WIC パントリー完備

相模鉄道線「二俣川」駅 徒歩 19 分

いずみ野線「南万騎が原」駅 徒歩 18 分

横浜市旭区 南本宿町

5,080万円

3LDK

値下げしました!今週末見学会開催中!「二俣川」駅利用 新築一戸建て(12) カースペース2台

相模鉄道線「二俣川」駅 徒歩 25 分

相模鉄道線「二俣川」駅 バス停「ニュータウン第5」まで 徒歩 4 分 バス利用 15分

横浜市旭区 今宿2丁目

5,180万円

4LDK

値下げしました!「二俣川」駅徒歩15分 新築一戸建て 食洗器付き対面キッチン

相模鉄道線「二俣川」駅 徒歩 15 分

相模鉄道線「鶴ヶ峰」駅 徒歩 20 分

横浜市旭区 四季美台

5,380万円

4LDK

値下げしました!今週末見学会開催中!「二俣川」駅利用 新築一戸建て(14) カースペース2台 角地

相模鉄道線「二俣川」駅 徒歩 25 分

相模鉄道線「二俣川」駅 バス停「ニュータウン第5」まで 徒歩 4 分 バス利用 15分

横浜市旭区 今宿2丁目

5,380万円

4LDK

お気軽にどうぞ!

資料請求 現地見学 電話でお問い合わせ
0120-046-690