1. トップページ
  2. 値下げしました! 「南町田グランベリーパーク」駅利用 新築一戸建て 床暖房付

値下げしました! 「南町田グランベリーパーク」駅利用 新築一戸建て 床暖房付

価格
4,180万円
物件種別
新築一戸建て
間取り
3SLDK
所在地
横浜市瀬谷区 五貫目町
交通
  • 田園都市線「南町田グランベリーP」駅 徒歩 24 分
  • 相模鉄道線「瀬谷」駅 バス停「上瀬谷住宅前」まで 徒歩 7 分 バス利用 11分
土地面積
109.88㎡
建物面積
93.57㎡
  • 前回情報更新日 2025.12.04
  • 次回情報更新予定日 2025.12.18
資料請求 現地見学 電話でお問い合わせ
0120-046-690
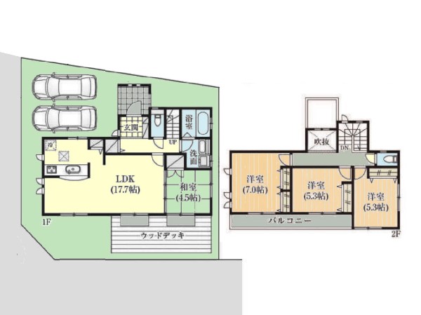
間取図
間取図

この物件のココがオススメ!

東急田園都市線「南町田グランベリーパーク」駅利用。床暖房付きの2階リビング隣接に和室有り。ペアガラス他、設備充実。納戸もお部屋としてご利用いただけます。

こだわりポイント

  • 床暖房
  • 食器洗い洗浄乾燥機
  • 浴室換気乾燥暖房機
  • 大人の二人暮らし
  • 2階建て住宅限定
  • LDKは2階に
  • 和室有り
  • 対面キッチン
  • 有料道路インター2キロ以内

お気軽にどうぞ!

資料請求 現地見学 電話でお問い合わせ
0120-046-690

地図

申し訳ありません
こちらは会員限定機能です

会員登録で利用できる6つの便利機能

詳しく見る

お気軽にどうぞ!

資料請求 現地見学 電話でお問い合わせ
0120-046-690

頭金0万円・金利0.495%の場合

ボーナス時(年2回)お支払額

0

この物件の月々のお支払額

117,077

年収に対する返済比率

47

  • ※会員登録し、詳細情報を記入されますと、全ての物件で自動的に金額が表示され、大変便利です。
  • ※まだ会員登録をされていない方は、下記チェック欄をご記入ください。
  • ※上記計算は物件価格4,180万円+諸経費 8%込みの金額による結果となります。
  • ※返済金額はあくまでも目安です。

お客様の条件からシミュレーションするには?

会員登録
マイページから登録

金利

直接入力する

ボーナス払い(年2回)

返済年数

頭金

直接入力する

 万円(半角数字)

年収

 万円(半角数字)
価格 4,180万円
物件種別 新築一戸建て
間取り 3SLDK
所在地 横浜市瀬谷区 五貫目町
交通
  • 田園都市線「南町田グランベリーP」駅 徒歩 24 分
  • 相模鉄道線「瀬谷」駅 バス停「上瀬谷住宅前」まで 徒歩 7 分 バス利用 11分
土地面積 109.88㎡
建物面積 93.57㎡
学区 上瀬谷小学校、瀬谷中学校
用途地域 工業
建ぺい率 60%
容積率 200%
地目 宅地
駐車場 有り カースペース
接道 東4.5m
権利 所有権
私道面積 有 235.00㎡ 1/22
セットバック 無し
建物構造 木造
建物階数 2階
築年月 2025年08月
入居日 即時
都市計画 市街化区域
取引態様 仲介
物件番号 47377
設備 個別LPG、公営水道、公共下水、駐車場1台、2沿線以上利用可、システムキッチン、ガス3口、食器洗い機付き、浄水器、I型キッチン、ユニットバス、追い焚き、浴室乾燥機、ウォシュレット、トイレ2ヶ所、浴室に窓、暖房便座、浴室暖房、バルコニー、2階建、LDK15畳以上、和室、採光2面、フローリング、クローゼット、収納、床下収納、下駄箱、全居室収納、シャンプドレッサー付き、フラット35Sに対応、モニタ付きインターフォン、24時間換気システム、建物10年保証
建築確認番号 -
特記事項 不整形地 宅地造成工事規制区域 高度地区建築基準法第22条区域  不整形地:有/宅地造成工事規制区域:有/高度地区:有/建築基準法第22条区域 別途私道持分有り(157平米×1/7)。 /
備考 東急田園都市線「南町田グランベリーパーク」駅利用。床暖房付きの2階リビング隣接に和室有り。ペアガラス他、設備充実。納戸もお部屋としてご利用いただけます。

お気軽にどうぞ!

資料請求 現地見学 電話でお問い合わせ
0120-046-690

このエリアでお探しの方へ

今週末モデルハウス見学会開催中!「瀬谷」駅利用 新築一戸建て(1) 対面キッチン・リビングイン階段

相模鉄道線「瀬谷」駅 徒歩 26 分

相模鉄道線「三ッ境」駅 バス停「南台B会場」まで 徒歩 5 分 バス利用 7分

横浜市瀬谷区 宮沢2丁目

3,880万円

2SLDK

値下げしました!今週末見学会開催中! 「瀬谷」駅徒歩13分 新築一戸建て(2) 和室

相模鉄道線「瀬谷」駅 徒歩 13 分

相模鉄道線「大和」駅 徒歩 16 分

横浜市瀬谷区 本郷1丁目

4,480万円

4LDK

建物完成しました! 今週末内覧会開催中!「三ツ境」駅利用 新築一戸建て(A) 閑静な住宅地

相模鉄道線「三ッ境」駅 バス停「向原」まで 徒歩 4 分 バス利用 9分

東海道本線「戸塚」駅 バス停「谷戸阿久和」まで 徒歩 11 分 バス利用 30分

横浜市瀬谷区 阿久和西3丁目

4,190万円

3LDK

建物完成しました! 今週末内覧会開催中!「三ツ境」駅利用 新築一戸建て(B) 閑静な住宅地

相模鉄道線「三ッ境」駅 バス停「向原」まで 徒歩 4 分 バス利用 9分

東海道本線「戸塚」駅 バス停「谷戸阿久和」まで 徒歩 11 分 バス利用 30分

横浜市瀬谷区 阿久和西3丁目

4,190万円

3LDK

値下げしました!今週末内覧会開催中!「三ツ境」駅利用 新築一戸建て 長期優良住宅

相模鉄道線「三ッ境」駅 バス停「原中学校前」まで 徒歩 4 分 バス利用 7分

いずみ野線「いずみ野」駅 バス停「原中学校前」まで 徒歩 4 分 バス利用 13分

横浜市瀬谷区 阿久和西3丁目

4,290万円

3LDK

値下げしました!「三ツ境」駅利用 新築一戸建て(2) カースペース3台

相模鉄道線「三ッ境」駅 バス停「宗川寺前」まで 徒歩 3 分 バス利用 6分

江ノ島線「桜ヶ丘」駅 徒歩 19 分

横浜市瀬谷区 下瀬谷3丁目

4,380万円

3SLDK

値下げしました!「三ツ境」駅利用 新築一戸建て(3) カースペース3台

相模鉄道線「三ッ境」駅 バス停「宗川寺前」まで 徒歩 3 分 バス利用 6分

江ノ島線「桜ヶ丘」駅 徒歩 19 分

横浜市瀬谷区 下瀬谷3丁目

4,380万円

4LDK

今週末内覧会開催中!「三ツ境」駅利用 中古一戸建て 南西角地

相模鉄道線「三ッ境」駅 徒歩 20 分

いずみ野線「いずみ野」駅 バス停「原中学校前」まで 徒歩 3 分 バス利用 13分

横浜市瀬谷区 阿久和西2丁目

4,380万円

4LDK

建物完成しました! 今週末内覧会開催中!「瀬谷」駅徒歩9分 新築一戸建て リビング階段 対面キッチン

相模鉄道線「瀬谷」駅 徒歩 9 分

相模鉄道線「三ッ境」駅 徒歩 19 分

横浜市瀬谷区 瀬谷2丁目

3,480万円

2LDK

今週末モデルハウス見学会開催中!「瀬谷」駅利用 新築一戸建て(2) 対面キッチン・リビングイン階段

相模鉄道線「瀬谷」駅 徒歩 26 分

相模鉄道線「三ッ境」駅 バス停「南台B会場」まで 徒歩 5 分 バス利用 7分

横浜市瀬谷区 宮沢2丁目

3,580万円

3LDK

値下げしました!今週末内覧会開催中!「瀬谷」駅徒歩15分 中古一戸建て オール電化 全居室6帖以上

相模鉄道線「瀬谷」駅 徒歩 15 分

江ノ島線「大和」駅 徒歩 22 分

横浜市瀬谷区 橋戸3丁目

4,680万円

4LDK

建物完成しました! 今週末内覧会開催中!「瀬谷」駅徒歩15分 新築一戸建て(1) 閑静な住宅地

相模鉄道線「瀬谷」駅 徒歩 15 分

相模鉄道線「三ッ境」駅 徒歩 18 分

横浜市瀬谷区 二ツ橋町

4,680万円

4LDK

お気軽にどうぞ!

資料請求 現地見学 電話でお問い合わせ
0120-046-690