1. トップページ
  2. 値下げしました!今週末内覧会開催中!「羽沢横浜国大」駅徒歩13分 新築一戸建て(3) 閑静な住宅地

値下げしました!今週末内覧会開催中!「羽沢横浜国大」駅徒歩13分 新築一戸建て(3) 閑静な住宅地

価格
4,800万円
物件種別
新築一戸建て
間取り
4LDK
所在地
横浜市保土ケ谷区 常盤台
交通
  • 相鉄新横浜線「羽沢横浜国大」駅 徒歩 13 分
  • 東海道本線「横浜」駅 バス停「ひじりが丘」まで 徒歩 2 分 バス利用 14分
土地面積
101.06㎡
建物面積
104.56㎡
  • 前回情報更新日 2025.11.27
  • 次回情報更新予定日 2025.12.11
資料請求 現地見学 電話でお問い合わせ
0120-046-690
外観:開放感のある現地で、前面道路よりも少し高くなっておりますので、プライベート感も保たれます!高くなっている分、日当りや風通しも良く快適な生活が待っています!
外観:開放感のある現地で、前面道路よりも少し高くなっておりますので、プライベート感も保たれます!高くなっている分、日当りや風通しも良く快適な生活が待っています!
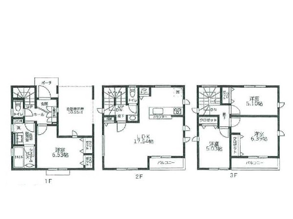
間取図
間取図
家族だんらんのリビング。家具の配置がしやすい広さを確保しつつ、窓が多い設計は沢山の光が取り込める拘りの間取りです。明るいリビングで寛ぐ新しい生活をスタートさせてみませんか。
家族だんらんのリビング。家具の配置がしやすい広さを確保しつつ、窓が多い設計は沢山の光が取り込める拘りの間取りです。明るいリビングで寛ぐ新しい生活をスタートさせてみませんか。
外観:良好な住環境が保たれたエリア。低層の一戸建を中心とした街並みが整然と続き周辺は高い建物が建っておらず、採光や開放性に恵まれ、空が広く緑の多い閑静な趣を感じる環境です。
外観:良好な住環境が保たれたエリア。低層の一戸建を中心とした街並みが整然と続き周辺は高い建物が建っておらず、採光や開放性に恵まれ、空が広く緑の多い閑静な趣を感じる環境です。
開放的なバルコニーは太陽の温かな温もりをめいっぱい受け止めてくれます。太陽の光と爽やかな風を受けたお洗濯物はあっという間に乾き、取りこむ時には太陽の匂いを感じられそうですね。
開放的なバルコニーは太陽の温かな温もりをめいっぱい受け止めてくれます。太陽の光と爽やかな風を受けたお洗濯物はあっという間に乾き、取りこむ時には太陽の匂いを感じられそうですね。
外観:清潔感のあるカラーで爽やかな中にもあたたかみを感じさせるデザイン。青空を背景に凛と立つスタイリッシュな外観が、住まう人に誇りを与えてくれます。
外観:清潔感のあるカラーで爽やかな中にもあたたかみを感じさせるデザイン。青空を背景に凛と立つスタイリッシュな外観が、住まう人に誇りを与えてくれます。
家族と過ごす時間を大切にする方にピッタリのゆとりの住空間です。お子様が元気に走り回っても安心して見守れます。家族の笑い声が今にも目に浮かびそうですね。
家族と過ごす時間を大切にする方にピッタリのゆとりの住空間です。お子様が元気に走り回っても安心して見守れます。家族の笑い声が今にも目に浮かびそうですね。
外観:柔らかな風と豊かな緑に包まれた落ち着きある閑静な住宅街に、5棟の邸宅が誕生です。
外観:柔らかな風と豊かな緑に包まれた落ち着きある閑静な住宅街に、5棟の邸宅が誕生です。
オープンでのびやかな空間を生み出す、こだわりの広がりとゆとり。家族と過ごす時間を大切にしたい方にぴったりの明るくゆとりある住空間です。窓からの日差しがリビングの隅々までしっかりと届きます!
オープンでのびやかな空間を生み出す、こだわりの広がりとゆとり。家族と過ごす時間を大切にしたい方にぴったりの明るくゆとりある住空間です。窓からの日差しがリビングの隅々までしっかりと届きます!
外観:四季の移り変わりを感じられる贅沢な環境。緑に恵まれたエリアで、毎日のお散歩も気持ちよさそうです。自然に包まれた穏やかな暮らしができる住環境が整っています。
外観:四季の移り変わりを感じられる贅沢な環境。緑に恵まれたエリアで、毎日のお散歩も気持ちよさそうです。自然に包まれた穏やかな暮らしができる住環境が整っています。
大切なご家族が集まるLDKはこだわりたいですね!休日はおひさまの光をたっぷりと取りこめるリビングでゆったりと過ごしませんか?子供たちが元気に笑いながら走り回っている姿が目に浮かぶ空間です。
大切なご家族が集まるLDKはこだわりたいですね!休日はおひさまの光をたっぷりと取りこめるリビングでゆったりと過ごしませんか?子供たちが元気に笑いながら走り回っている姿が目に浮かぶ空間です。
外観:前面は分譲地専用に通した4.5メートル幅の道路。通り抜けが出来なくなっておりますので、他の車は進入してきません。運転が苦手な方でも落ち着いて車庫入れ可能です。
外観:前面は分譲地専用に通した4.5メートル幅の道路。通り抜けが出来なくなっておりますので、他の車は進入してきません。運転が苦手な方でも落ち着いて車庫入れ可能です。
対面式のカウンターキッチンは、出来上がったお料理をカウンターに並べてお子様が運ぶなど、お手伝いの時間も増えそうですね!家族と会話をしながら料理を楽しめ一体感を感じられるキッチン。
対面式のカウンターキッチンは、出来上がったお料理をカウンターに並べてお子様が運ぶなど、お手伝いの時間も増えそうですね!家族と会話をしながら料理を楽しめ一体感を感じられるキッチン。
居室には収納クローゼットを完備!普段使いのお洋服や小物はもちろん、季節物のお洋服などもしっかりと整理整頓おしまい頂けます。居室空間をより広く隅々までお使いいただけますね。
居室には収納クローゼットを完備!普段使いのお洋服や小物はもちろん、季節物のお洋服などもしっかりと整理整頓おしまい頂けます。居室空間をより広く隅々までお使いいただけますね。
光が沢山取り込める大きな窓。日差しを長時間受ける事が出来る暖かいお部屋です。もちろんペアガラスなので、遮音性に優れ、結露も発生しにくい構造。サッシ周りのカビが発生しにくくなりますね。
光が沢山取り込める大きな窓。日差しを長時間受ける事が出来る暖かいお部屋です。もちろんペアガラスなので、遮音性に優れ、結露も発生しにくい構造。サッシ周りのカビが発生しにくくなりますね。
光が取り込みやすい2面採光の居室。日当たり良好です。クローゼットを完備し、収納スペースも十分。初めてのお子様にとっての「自分の部屋」。学習デスクやベッドの配置もラクラクです。
光が取り込みやすい2面採光の居室。日当たり良好です。クローゼットを完備し、収納スペースも十分。初めてのお子様にとっての「自分の部屋」。学習デスクやベッドの配置もラクラクです。
収納力が豊富な大型クローゼット。普段着やスーツはもちろん、コート類などもしっかり掛けられます。奥行きもあるので、収納ボックスをそのままクローゼットの中へ。部屋にものが出ずスッキリしますね。
収納力が豊富な大型クローゼット。普段着やスーツはもちろん、コート類などもしっかり掛けられます。奥行きもあるので、収納ボックスをそのままクローゼットの中へ。部屋にものが出ずスッキリしますね。
ゆとりのある洗面スペースで、朝の身支度やお掃除・片付けも快適スムーズです。3面鏡で髪のセットやお化粧もストレスなくこなせ、朝から気分良く通勤通学に向かえそうですね!
ゆとりのある洗面スペースで、朝の身支度やお掃除・片付けも快適スムーズです。3面鏡で髪のセットやお化粧もストレスなくこなせ、朝から気分良く通勤通学に向かえそうですね!
ゆったりとした大き目の浴槽が嬉しい。毎日の疲れを取る癒しの場所だからこそこだわった空間です。リラックスできるよう優しいカラーをチョイスしました。時を忘れるほどのんびりできる空間に。
ゆったりとした大き目の浴槽が嬉しい。毎日の疲れを取る癒しの場所だからこそこだわった空間です。リラックスできるよう優しいカラーをチョイスしました。時を忘れるほどのんびりできる空間に。
スッキリとしたデザインのトイレは明かり取りの窓からも光が取り込まれ日中は電気を消していてもご使用いただける明るさとなっております。
スッキリとしたデザインのトイレは明かり取りの窓からも光が取り込まれ日中は電気を消していてもご使用いただける明るさとなっております。
周辺環境:横浜市立常盤台小学校(横浜市立常盤台小学校まで1000m)
周辺環境:横浜市立常盤台小学校(横浜市立常盤台小学校まで1000m)
周辺環境:横浜市立保土ヶ谷中学校(横浜市立保土ヶ谷中学校まで1300m)
周辺環境:横浜市立保土ヶ谷中学校(横浜市立保土ヶ谷中学校まで1300m)
周辺環境:羽沢長谷第三公園(羽沢長谷第三公園まで800m)
周辺環境:羽沢長谷第三公園(羽沢長谷第三公園まで800m)
周辺環境:育和幼稚園(育和幼稚園まで400m)
周辺環境:育和幼稚園(育和幼稚園まで400m)
周辺環境:そうてつローゼン上星川店(そうてつローゼン上星川店まで1600m)
周辺環境:そうてつローゼン上星川店(そうてつローゼン上星川店まで1600m)
周辺環境:常盤公園(常盤公園まで1600m)
周辺環境:常盤公園(常盤公園まで1600m)
周辺環境:和田愛児園(和田愛児園まで1400m)
周辺環境:和田愛児園(和田愛児園まで1400m)
周辺環境:ユーコープ片倉店(ユーコープ片倉店まで2200m)
周辺環境:ユーコープ片倉店(ユーコープ片倉店まで2200m)
周辺環境:保土ヶ谷病院(保土ヶ谷病院まで800m)
周辺環境:保土ヶ谷病院(保土ヶ谷病院まで800m)

この物件のココがオススメ!

相鉄新横浜線「羽沢横浜国大」駅徒歩13分。4LDKのゆとりの間取り、全居室収納付。19帖LDKは、対面式キッチン・リビングイン階段で、ご家族での会話が弾みます。

こだわりポイント

  • 浴室換気乾燥暖房機
  • 子供の多い街に住む
  • LDKは1階に
  • 2階建て住宅限定
  • リビングイン階段
  • LDK18帖以上
  • 広々バルコニー
  • 対面キッチン
  • 有料道路インター2キロ以内
  • コンビニ10分以内
  • 総合病院10分以内
  • 小児科医院10分以内
  • 保育園10分以内
  • 幼稚園10分以内
  • 公園10分以内
  • 都市ガス
  • フラット35利用可
  • 屋根付きカースペース
  • 5棟以上の分譲地

お気軽にどうぞ!

資料請求 現地見学 電話でお問い合わせ
0120-046-690

地図

申し訳ありません
こちらは会員限定機能です

会員登録で利用できる6つの便利機能

詳しく見る

お気軽にどうぞ!

資料請求 現地見学 電話でお問い合わせ
0120-046-690

頭金0万円・金利0.495%の場合

ボーナス時(年2回)お支払額

0

この物件の月々のお支払額

134,454

年収に対する返済比率

54

  • ※会員登録し、詳細情報を記入されますと、全ての物件で自動的に金額が表示され、大変便利です。
  • ※まだ会員登録をされていない方は、下記チェック欄をご記入ください。
  • ※上記計算は物件価格4,800万円+諸経費 8%込みの金額による結果となります。
  • ※返済金額はあくまでも目安です。

お客様の条件からシミュレーションするには?

会員登録
マイページから登録

金利

直接入力する

ボーナス払い(年2回)

返済年数

頭金

直接入力する

 万円(半角数字)

年収

 万円(半角数字)

約1,000m

小学校

周辺環境:横浜市立常盤台小学校(横浜市立常盤台小学校まで1000m)

小学校

約1,000m

約1,300m

中学校

周辺環境:横浜市立保土ヶ谷中学校(横浜市立保土ヶ谷中学校まで1300m)

中学校

約1,300m

約800m

公園

周辺環境:羽沢長谷第三公園(羽沢長谷第三公園まで800m)

公園

約800m

約400m

幼稚園・保育園

周辺環境:育和幼稚園(育和幼稚園まで400m)

幼稚園・保育園

約400m

約1,600m

スーパー

周辺環境:そうてつローゼン上星川店(そうてつローゼン上星川店まで1600m)

スーパー

約1,600m

約1,600m

公園

周辺環境:常盤公園(常盤公園まで1600m)

公園

約1,600m

約1,400m

幼稚園・保育園

周辺環境:和田愛児園(和田愛児園まで1400m)

幼稚園・保育園

約1,400m

約2,200m

スーパー

周辺環境:ユーコープ片倉店(ユーコープ片倉店まで2200m)

スーパー

約2,200m

約800m

病院

周辺環境:保土ヶ谷病院(保土ヶ谷病院まで800m)

病院

約800m

価格 4,800万円
物件種別 新築一戸建て
間取り 4LDK
所在地 横浜市保土ケ谷区 常盤台
交通
  • 相鉄新横浜線「羽沢横浜国大」駅 徒歩 13 分
  • 東海道本線「横浜」駅 バス停「ひじりが丘」まで 徒歩 2 分 バス利用 14分
土地面積 101.06㎡
建物面積 104.56㎡
学区 常盤台小学校、保土ケ谷中学校
用途地域 第一種中高層住居専用
建ぺい率 60%
容積率 150%
地目 宅地
駐車場 有り 地下車庫 駐車場面積:21.94㎡
接道 南西4.5m
権利 所有権
私道面積 有 137.00㎡ 1/7
セットバック 無し
建物構造 木造
建物階数 2階
築年月 2025年05月
入居日 即時
都市計画 市街化区域
取引態様 仲介
物件番号 46025-3
設備 公営水道、公共下水、駐車場1台、高台に立地、緑豊かな住宅地、閑静な住宅地、都市近郊、開発分譲地内、市街地が近い、2沿線以上利用可、総合病院徒歩10分以内、保育施設・幼稚園5分以内、システムキッチン、ガス3口、I型キッチン、ユニットバス、追い焚き、浴室乾燥機、ウォシュレット、トイレ2ヶ所、浴室に窓、暖房便座、浴室暖房、バルコニー、ワイドバルコニー、南面バルコニー、2階建、LDK18畳以上、省エネ給湯器、人感照明センサー、採光2面、南向き、全室2面採光、フローリング、全室フローリング、リビング階段、クローゼット、収納、床下収納、下駄箱、全居室収納、シャンプドレッサー付き、南庭、庭、フラット35Sに対応、モニタ付きインターフォン、インターフォン、複層ガラス、全居室複層ガラスか複層サッシ、通風良好、陽当り良好、24時間換気システム、建物10年保証
建築確認番号 -
特記事項 不整形地 宅地造成工事規制区域 高度地区 準防火地域 日影制限 敷地内段差 建築基準法第22条区域 横浜市建築基準条例第3条による制限有 建物建築・再建築の際、深基礎、基礎杭、擁壁の補修・再構築、外壁後退等の対策が必要となる場合があります 建物建築・再建築の際、防護壁の設置、高基礎、外壁後退等の対策が必要となる場合があります 傾斜地有 建物面積に車庫部分21.94平米含 敷地面積に別途私道持分29平米×1/14有 不整形地:有/宅地造成工事規制区域:有/高度地区:有/準防火地域:有/日影制限:有/敷地内段差:有/建築基準法第22条区域 横浜市建築基準条例第3条による制限有 建物建築・再建築の際、深基礎、基礎杭、擁壁の補修・再構築、外壁後退等の対策が必要となる場合があります 建物建築・再建築の際、防護壁の設置、高基礎、外壁後退等の対策が必要となる場合が
備考 相鉄新横浜線「羽沢横浜国大」駅徒歩13分。4LDKのゆとりの間取り、全居室収納付。19帖LDKは、対面式キッチン・リビングイン階段で、ご家族での会話が弾みます。

お気軽にどうぞ!

資料請求 現地見学 電話でお問い合わせ
0120-046-690

このエリアでお探しの方へ

建物完成しました!今週末内覧会開催中!「藤沢本町」駅利用 新築一戸建て(2)

江ノ島線「藤沢本町」駅 徒歩 18 分

東海道本線「辻堂」駅 徒歩 29 分

藤沢市 羽鳥4丁目

4,530万円

3LDK

川崎市宮前区南野川2丁目 新築一戸建 4530万円 3号棟

田園都市線「鷺沼」駅 バス停「和田八幡宮下」まで 徒歩 1 分 バス利用 15分

グリーンライン「東山田」駅 徒歩 22 分

川崎市宮前区 南野川2丁目

4,530万円

4LDK

値下げしました! 「上大岡」駅徒歩10分 新築一戸建て(1)WIC完備

京浜急行本線「上大岡」駅 徒歩 10 分

ブルーライン「港南中央」駅 徒歩 9 分

横浜市港南区 港南1丁目

4,540万円

3LDK

値下げしました!「鶴ケ峰」駅利用 新築一戸建て(1) カースペース2台

相模鉄道線「鶴ヶ峰」駅 徒歩 18 分

横浜線「中山」駅 バス停「代官前」まで 徒歩 6 分 バス利用 24分

横浜市旭区 白根6丁目

4,550万円

3SLDK

今週末モデルハウス見学会開催中!「能見台」駅徒歩9分 新築一戸建て(A) 対面キッチン

京浜急行本線「能見台」駅 徒歩 9 分

根岸線「磯子」駅 バス停「谷津坂」まで 徒歩 6 分 バス利用 17分

横浜市金沢区 長浜1丁目

4,580万円

2LDK+2S

値下げしました! 「大船」駅利用 新築一戸建て(A) 全7棟 ゆとりの4LDK

東海道本線「大船」駅 バス停「常勝寺」まで 徒歩 6 分 バス利用 7分

横須賀線「戸塚」駅 バス停「田谷」まで 徒歩 12 分 バス利用 17分

横浜市戸塚区 小雀町

4,580万円

4LDK

値下げしました!今週末見学会開催中!「港南中央」駅徒歩9分 新築一戸建て(1) ルーフバルコニー

ブルーライン「港南中央」駅 徒歩 9 分

京浜急行本線「上大岡」駅 徒歩 12 分

横浜市港南区 港南1丁目

4,580万円

3LDK

川崎市宮前区南野川2丁目 新築一戸建 4580万円 2号棟

田園都市線「鷺沼」駅 バス停「和田八幡宮下」まで 徒歩 1 分 バス利用 15分

グリーンライン「東山田」駅 徒歩 22 分

川崎市宮前区 南野川2丁目

4,580万円

4LDK

今週末モデルハウス見学会開催中!「鶴ケ峰」駅利用 新築一戸建て(2) エコジョーズ

相模鉄道線「鶴ヶ峰」駅 徒歩 18 分

相鉄新横浜線「西谷」駅 バス停「金草沢」まで 徒歩 13 分 バス利用 7分

横浜市旭区 白根6丁目

4,580万円

2LDK+2S

今週末モデルハウス見学会開催中!「鶴ケ峰」駅利用 新築一戸建て(1) エコジョーズ

相模鉄道線「鶴ヶ峰」駅 徒歩 18 分

相鉄新横浜線「西谷」駅 バス停「金草沢」まで 徒歩 13 分 バス利用 7分

横浜市旭区 白根6丁目

4,580万円

3LDK

川崎市宮前区神木本町2丁目 新築一戸建 4580万円

田園都市線「溝の口」駅 バス停「神木本町」まで 徒歩 5 分 バス利用 13分

南武線「武蔵溝ノ口」駅 バス停「神木本町」まで 徒歩 5 分 バス利用 13分

川崎市宮前区 神木本町2丁目

4,580万円

4LDK

今週末モデルハウス見学会開催中!「善行」駅徒歩15分 新築一戸建て(2)

江ノ島線「善行」駅 徒歩 15 分

江ノ島線「六会日大前」駅 徒歩 26 分

藤沢市 亀井野

4,580万円

3LDK

お気軽にどうぞ!

資料請求 現地見学 電話でお問い合わせ
0120-046-690