1. トップページ
  2. 値下げしました!建物完成しました!「南太田」駅徒歩9分 新築一戸建て(C)ビルトイン車庫

値下げしました!建物完成しました!「南太田」駅徒歩9分 新築一戸建て(C)ビルトイン車庫

価格
4,480万円
物件種別
新築一戸建て
間取り
4LDK
所在地
横浜市南区 三春台
交通
  • 京浜急行本線「南太田」駅 徒歩 9 分
  • 東海道本線「横浜」駅 バス停「久保山」まで 徒歩 7 分 バス利用 14分
土地面積
90.56㎡
建物面積
109.08㎡
  • 前回情報更新日 2025.11.27
  • 次回情報更新予定日 2025.12.11
資料請求 現地見学 電話でお問い合わせ
0120-046-690
外観:閑静な住宅地に馴染む落ち着いた色合いの外観。長く愛着を持って頂きたいからこそ飽きのこないシンプルな色目に仕上げました。外壁には耐久性・防汚性に優れたサイディング材を使用しております!
外観:閑静な住宅地に馴染む落ち着いた色合いの外観。長く愛着を持って頂きたいからこそ飽きのこないシンプルな色目に仕上げました。外壁には耐久性・防汚性に優れたサイディング材を使用しております!
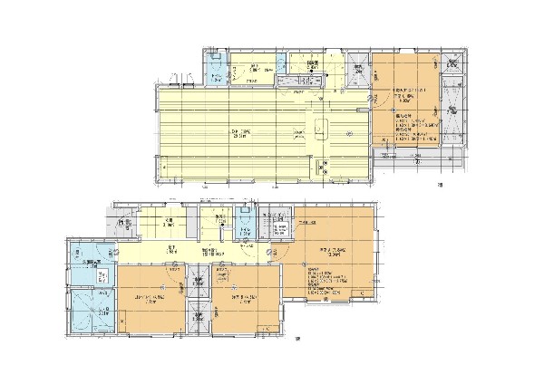
間取り:C号棟間取図
間取り:C号棟間取図
区画図
区画図
お洗濯物を干すだけのスペースではもったいない多用途にご利用いただける大型バルコニーです。天気の良い日にはテーブルとイスを並べて外でお食事なども楽しめ、ご家族憩いの場としてもご利用いただけます。
お洗濯物を干すだけのスペースではもったいない多用途にご利用いただける大型バルコニーです。天気の良い日にはテーブルとイスを並べて外でお食事なども楽しめ、ご家族憩いの場としてもご利用いただけます。
外観:白を基調に落ち着いたトーンのアクセントカラーで個性を演出、爽やかな中にもあたたかみを感じさせるデザイン。青空を背景に凛と立つスタイリッシュな外観が、住まう人に誇りを与えてくれます。
外観:白を基調に落ち着いたトーンのアクセントカラーで個性を演出、爽やかな中にもあたたかみを感じさせるデザイン。青空を背景に凛と立つスタイリッシュな外観が、住まう人に誇りを与えてくれます。
都会の喧騒を忘れさせる、開放感あふれるスカイバルコニー。視界いっぱいに広がるパノラマビューは、日々の疲れを癒し、心にゆとりをもたらします。青空の下、風を感じながら特別な時間を過ごしませんか。
都会の喧騒を忘れさせる、開放感あふれるスカイバルコニー。視界いっぱいに広がるパノラマビューは、日々の疲れを癒し、心にゆとりをもたらします。青空の下、風を感じながら特別な時間を過ごしませんか。
外観:気持ちの良い一日の始まりは笑顔でスタートしたいですよね。玄関ホールがスッキリ広々としていると帰る時も出ていく時も気持ちが良いものです!
外観:気持ちの良い一日の始まりは笑顔でスタートしたいですよね。玄関ホールがスッキリ広々としていると帰る時も出ていく時も気持ちが良いものです!
オープンでのびやかな空間を生み出す、こだわりの広がりとゆとり。家族と過ごす時間を大切にしたい方にぴったりの明るくゆとりある住空間です。窓からの日差しがリビングの隅々までしっかりと届きます!
オープンでのびやかな空間を生み出す、こだわりの広がりとゆとり。家族と過ごす時間を大切にしたい方にぴったりの明るくゆとりある住空間です。窓からの日差しがリビングの隅々までしっかりと届きます!
家族と過ごす時間を大切にする方にピッタリのゆとりの住空間です。お子様が元気に走り回っても安心して見守れます。家族の笑い声が今にも目に浮かびそうですね。
家族と過ごす時間を大切にする方にピッタリのゆとりの住空間です。お子様が元気に走り回っても安心して見守れます。家族の笑い声が今にも目に浮かびそうですね。
使い勝手の良いL型キッチン。料理の作業スペースが広くとれるだけでなく、収納スペースもしっかり確保。シンクとコンロの距離も近いので作業効率が上がります。心地よい使い勝手をご堪能ください。
使い勝手の良いL型キッチン。料理の作業スペースが広くとれるだけでなく、収納スペースもしっかり確保。シンクとコンロの距離も近いので作業効率が上がります。心地よい使い勝手をご堪能ください。
ゆったりとくつろげる広々バス。足までしっかりと伸ばせる浴槽は、心身ともにしっかりと疲れを癒してくれます。お子様とも一緒に浸かれ、ご家族みんなで一緒にバスタイムを楽しめますね♪
ゆったりとくつろげる広々バス。足までしっかりと伸ばせる浴槽は、心身ともにしっかりと疲れを癒してくれます。お子様とも一緒に浸かれ、ご家族みんなで一緒にバスタイムを楽しめますね♪
ゆとりのある洗面スペースで、朝の身支度やお掃除・片付けも快適スムーズです。3面鏡で髪のセットやお化粧もストレスなくこなせ、朝から気分良く通勤通学に向かえそうですね!
ゆとりのある洗面スペースで、朝の身支度やお掃除・片付けも快適スムーズです。3面鏡で髪のセットやお化粧もストレスなくこなせ、朝から気分良く通勤通学に向かえそうですね!
リビングを見渡せるカウンターキッチンでお子様の様子を伺いながら食事の支度が出来ます。家族の気配を感じられる、そんな空間を演出できるキッチンです。
リビングを見渡せるカウンターキッチンでお子様の様子を伺いながら食事の支度が出来ます。家族の気配を感じられる、そんな空間を演出できるキッチンです。
ご家族が集まるからこそLDKは拘りたいですよね!日光をたっぷりと取りこめるリビングでゆったりと過ごしませんか?子供たちが元気に笑いながら走り回っている姿が目に浮かぶ空間です。
ご家族が集まるからこそLDKは拘りたいですよね!日光をたっぷりと取りこめるリビングでゆったりと過ごしませんか?子供たちが元気に笑いながら走り回っている姿が目に浮かぶ空間です。
新しいキッチンは食事の支度が捗りますね!お子様と一緒に準備や片付けが出来るキッチンは、ご家族のコミュニケーションを育む場として活躍します。何気ない時間ですが、大切にしたいですね!
新しいキッチンは食事の支度が捗りますね!お子様と一緒に準備や片付けが出来るキッチンは、ご家族のコミュニケーションを育む場として活躍します。何気ない時間ですが、大切にしたいですね!
光が取り込みやすい2面採光の居室。日当たり良好です。クローゼットを完備し、収納スペースも十分。初めてのお子様にとっての「自分の部屋」。学習デスクやベッドの配置もラクラクです。
光が取り込みやすい2面採光の居室。日当たり良好です。クローゼットを完備し、収納スペースも十分。初めてのお子様にとっての「自分の部屋」。学習デスクやベッドの配置もラクラクです。
居室には収納クローゼットを完備!普段使いのお洋服や小物はもちろん、季節物のお洋服などもしっかりと整理整頓おしまい頂けます。居室空間をより広く隅々までお使いいただけますね。
居室には収納クローゼットを完備!普段使いのお洋服や小物はもちろん、季節物のお洋服などもしっかりと整理整頓おしまい頂けます。居室空間をより広く隅々までお使いいただけますね。
大切なご家族が集まるLDKはこだわりたいですね!休日はおひさまの光をたっぷりと取りこめるリビングでゆったりと過ごしませんか?子供たちが元気に笑いながら走り回っている姿が目に浮かぶ空間です。
大切なご家族が集まるLDKはこだわりたいですね!休日はおひさまの光をたっぷりと取りこめるリビングでゆったりと過ごしませんか?子供たちが元気に笑いながら走り回っている姿が目に浮かぶ空間です。
対面式のカウンターキッチンは、出来上がったお料理をカウンターに並べてお子様が運ぶなど、お手伝いの時間も増えそうですね!家族と会話をしながら料理を楽しめ一体感を感じられるキッチン。
対面式のカウンターキッチンは、出来上がったお料理をカウンターに並べてお子様が運ぶなど、お手伝いの時間も増えそうですね!家族と会話をしながら料理を楽しめ一体感を感じられるキッチン。
2面採光でお部屋の隅々まで明るい居室。おひさまの光を、爽やかな風をたっぷりと取り込めます。居室内はいつも明るい印象ですので、気持ちの良い朝を迎えられそう。毎日の生活も自然と明るくなりますね。
2面採光でお部屋の隅々まで明るい居室。おひさまの光を、爽やかな風をたっぷりと取り込めます。居室内はいつも明るい印象ですので、気持ちの良い朝を迎えられそう。毎日の生活も自然と明るくなりますね。
周辺環境:横浜市立太田小学校(横浜市立太田小学校まで400m)
周辺環境:横浜市立太田小学校(横浜市立太田小学校まで400m)
周辺環境:横浜市立共進中学校(横浜市立共進中学校まで1300m)
周辺環境:横浜市立共進中学校(横浜市立共進中学校まで1300m)
周辺環境:スーパーマルヤマ三春台店(スーパーマルヤマ三春台店まで400m)
周辺環境:スーパーマルヤマ三春台店(スーパーマルヤマ三春台店まで400m)
周辺環境:業務ス-パ-黄金町店(業務ス-パ-黄金町店まで750m)
周辺環境:業務ス-パ-黄金町店(業務ス-パ-黄金町店まで750m)
周辺環境:三春台公園(三春台公園まで200m)
周辺環境:三春台公園(三春台公園まで200m)
周辺環境:横浜れんげ幼稚園
周辺環境:横浜れんげ幼稚園
周辺環境:京浜急行電鉄南太田駅
周辺環境:京浜急行電鉄南太田駅
周辺環境:三春台保育園
周辺環境:三春台保育園
周辺環境:青木小児科医院
周辺環境:青木小児科医院

この物件のココがオススメ!

京急本線「南太田」駅から徒歩9分。日差しあふれるルーフバルコニー付き。足元から暖かい床暖房・ペアガラス他、設備充実。

こだわりポイント

  • 前面道路急坂
  • 道路狭い(4メートル未満)
  • 断熱に配慮された建物
  • 省エネに配慮された建物
  • 床暖房
  • 食器洗い洗浄乾燥機
  • 急行電車でスピード通勤
  • 始発で座ってゆったり通勤
  • 2沿線利用であんしん通勤
  • リビングイン階段
  • LDKは2階に
  • LDK15帖以上
  • 対面キッチン
  • 小学校10分以内
  • スーパー10分以内
  • コンビニ10分以内
  • 小児科医院10分以内
  • 保育園10分以内
  • 幼稚園10分以内
  • 公園10分以内
  • 都市ガス
  • 屋根付きカースペース

お気軽にどうぞ!

資料請求 現地見学 電話でお問い合わせ
0120-046-690

地図

申し訳ありません
こちらは会員限定機能です

会員登録で利用できる6つの便利機能

詳しく見る

お気軽にどうぞ!

資料請求 現地見学 電話でお問い合わせ
0120-046-690

頭金0万円・金利0.495%の場合

ボーナス時(年2回)お支払額

0

この物件の月々のお支払額

125,480

年収に対する返済比率

50

  • ※会員登録し、詳細情報を記入されますと、全ての物件で自動的に金額が表示され、大変便利です。
  • ※まだ会員登録をされていない方は、下記チェック欄をご記入ください。
  • ※上記計算は物件価格4,480万円+諸経費 8%込みの金額による結果となります。
  • ※返済金額はあくまでも目安です。

お客様の条件からシミュレーションするには?

会員登録
マイページから登録

金利

直接入力する

ボーナス払い(年2回)

返済年数

頭金

直接入力する

 万円(半角数字)

年収

 万円(半角数字)

約400m

小学校

周辺環境:横浜市立太田小学校(横浜市立太田小学校まで400m)

小学校

約400m

約1,300m

中学校

周辺環境:横浜市立共進中学校(横浜市立共進中学校まで1300m)

中学校

約1,300m

約400m

スーパー

周辺環境:スーパーマルヤマ三春台店(スーパーマルヤマ三春台店まで400m)

スーパー

約400m

約750m

スーパー

周辺環境:業務ス-パ-黄金町店(業務ス-パ-黄金町店まで750m)

スーパー

約750m

約200m

公園

周辺環境:三春台公園(三春台公園まで200m)

公園

約200m

約500m

幼稚園・保育園

周辺環境:横浜れんげ幼稚園

幼稚園・保育園

約500m

約650m

周辺環境:京浜急行電鉄南太田駅

約650m

約160m

幼稚園・保育園

周辺環境:三春台保育園

幼稚園・保育園

約160m

約500m

病院

周辺環境:青木小児科医院

病院

約500m

価格 4,480万円
物件種別 新築一戸建て
間取り 4LDK
所在地 横浜市南区 三春台
交通
  • 京浜急行本線「南太田」駅 徒歩 9 分
  • 東海道本線「横浜」駅 バス停「久保山」まで 徒歩 7 分 バス利用 14分
土地面積 90.56㎡
建物面積 109.08㎡
学区 太田小学校、共進中学校
用途地域 第一種住居
建ぺい率 60%
容積率 160%
地目 宅地
駐車場 有り ビルトイン車庫 駐車場面積:9.31㎡
接道 東1.9m
権利 所有権
私道面積 有 6.11㎡
セットバック 無し
建物構造 木造
建物階数 3階
築年月 2025年02月
入居日 即時
都市計画 市街化区域
取引態様 仲介
物件番号 45934-C
設備 公営水道、公共下水、省エネルギー対策、ビルトインガレージ、駐車場1台、緑豊かな住宅地、閑静な住宅地、都市近郊、市街地が近い、スーパーが近い(10分以内)、2沿線以上利用可、小学校徒歩10分以内、保育施設・幼稚園5分以内、公園5分以内、システムキッチン、ガス3口、L型キッチン、食器洗い機付き、浄水器、ユニットバス、追い焚き、浴室乾燥機、ウォシュレット、オートバス付き、トイレ2ヶ所、浴室1坪以上、浴室に窓、暖房便座、浴室暖房、バルコニー、バルコニー2面、ルーフバルコニー、南面バルコニー、3階建以上、LDK15畳以上、省エネ給湯器、全室2面採光、全室フローリング、リビング階段、クローゼット、収納、下駄箱、全居室収納、シャンプドレッサー付き、フラット35Sに対応、モニタ付きインターフォン、複層ガラス、全居室複層ガラスか複層サッシ、通風良好、陽当り良好、24時間換気システム、建物10年保証
建築確認番号 第24UDI1K建00949号
特記事項 崖下につき建築制限 崖上につき建築制限 高度地区 準防火地域 日影制限: 建築基準法第22条区域 建物建築・再建築の際、深基礎、基礎杭、擁壁の補修・再構築、外壁後退等の対策が必要となる場合有。建物建築・再建築の際、防護壁の設置、高基礎、外壁後退等の対策が必要となる場合有。三春の丘まちづくり協議会防災まちづくり計画 不燃化推進地域 建物面積に車庫面積9.31平米、ペントハウス面積11.17平米含  崖下につき建築制限:有/崖上につき建築制限:有/高度地区:有/準防火地域:有/日影制限:有/建築基準法第22条区域 建物建築・再建築の際、深基礎、基礎杭、擁壁の補修・再構築、外壁後退等の対策が必要となる場合有。建物建築・再建築の際、防護壁の設置、高基礎、外壁後退等の対策が必要となる場合有。三春の丘まちづくり協議会防災まちづくり計画 不燃化推進地域 建物面積に
備考 京急本線「南太田」駅から徒歩9分。日差しあふれるルーフバルコニー付き。足元から暖かい床暖房・ペアガラス他、設備充実。

お気軽にどうぞ!

資料請求 現地見学 電話でお問い合わせ
0120-046-690

このエリアでお探しの方へ

値下げしました!今週末内覧会開催中!「保土ケ谷」駅徒歩13分 中古一戸建て 閑静な住宅地

横須賀線「保土ヶ谷」駅 徒歩 13 分

京浜急行本線「南太田」駅 徒歩 19 分

横浜市南区 清水ケ丘

4,180万円

4LDK

今週末モデルハウス見学会開催中!ブルーライン「弘明寺」駅徒歩14分 新築一戸建て エコジョーズ

ブルーライン「弘明寺」駅 徒歩 14 分

京浜急行本線「上大岡」駅 徒歩 22 分

横浜市南区 大岡3丁目

4,180万円

3SLDK

値下げしました!モデルハウス見学会開催中!京急「弘明寺」駅利用 新築一戸建て(B) カースペース2台

京浜急行本線「弘明寺」駅 バス停「こども医療センター」まで 徒歩 4 分 バス利用 8分

横須賀線「東戸塚」駅 バス停「こども医療センター」まで 徒歩 4 分 バス利用 16分

横浜市南区 六ツ川2丁目

4,290万円

4LDK

今週末モデルハウス見学会開催中!京急「弘明寺」駅徒歩13分 新築一戸建て(2) 全室2面採光

京浜急行本線「弘明寺」駅 徒歩 13 分

ブルーライン「弘明寺」駅 徒歩 17 分

横浜市南区 中里4丁目

4,390万円

4LDK

今週末モデルハウス見学会開催中!京急「弘明寺」駅徒歩13分 新築一戸建て(1) 全室2面採光

京浜急行本線「弘明寺」駅 徒歩 13 分

ブルーライン「弘明寺」駅 徒歩 17 分

横浜市南区 中里4丁目

4,390万円

4LDK

今週末モデルハウス見学会開催中!「蒔田」駅徒歩12分 新築一戸建て 浴室乾燥機有

ブルーライン「蒔田」駅 徒歩 12 分

根岸線「桜木町」駅 バス停「蒔田駅前」まで 徒歩 12 分 バス利用 20分

横浜市南区 堀ノ内町2丁目

4,480万円

2SLDK

今週末内覧会開催中!京急「弘明寺」駅徒歩4分 中古一戸建て プライバシーに配慮した2階リビング

京浜急行本線「弘明寺」駅 徒歩 4 分

ブルーライン「弘明寺」駅 徒歩 5 分

横浜市南区 弘明寺町

4,499万円

3SLDK

今週末モデルハウス見学会開催中!京急「弘明寺」駅利用 新築一戸建て(2) 閑静な住宅地

京浜急行本線「弘明寺」駅 バス停「別所小学校入口」まで 徒歩 2 分 バス利用 5分

東海道本線「戸塚」駅 バス停「こども医療センター」まで 徒歩 10 分 バス利用 23分

横浜市南区 別所6丁目

4,680万円

3SLDK

値下げしました!今週末モデルハウス見学会開催中!「上大岡」駅利用 新築一戸建て(9) 長期優良住宅

京浜急行本線「上大岡」駅 徒歩 26 分

京浜急行本線「弘明寺」駅 徒歩 26 分

横浜市南区 別所中里台

4,680万円

4LDK

値下げしました!今週末モデルハウス見学会開催中!「上大岡」駅利用 新築一戸建て(7) 長期優良住宅

京浜急行本線「上大岡」駅 徒歩 26 分

京浜急行本線「弘明寺」駅 徒歩 26 分

横浜市南区 別所中里台

4,680万円

4LDK

値下げしました!今週末モデルハウス見学会開催中!「上大岡」駅利用 新築一戸建て(8) 長期優良住宅

京浜急行本線「上大岡」駅 徒歩 26 分

京浜急行本線「弘明寺」駅 徒歩 26 分

横浜市南区 別所中里台

4,680万円

3SLDK

値下げしました!今週末モデルハウス見学会開催中!「蒔田」駅徒歩9分 新築一戸建て(B) 閑静な住宅地

ブルーライン「蒔田」駅 徒歩 9 分

京浜急行本線「南太田」駅 徒歩 16 分

横浜市南区 堀ノ内町1丁目

2,780万円

2SLDK

お気軽にどうぞ!

資料請求 現地見学 電話でお問い合わせ
0120-046-690